Two New Restaurant Spaces Proposed in the Funk Zone

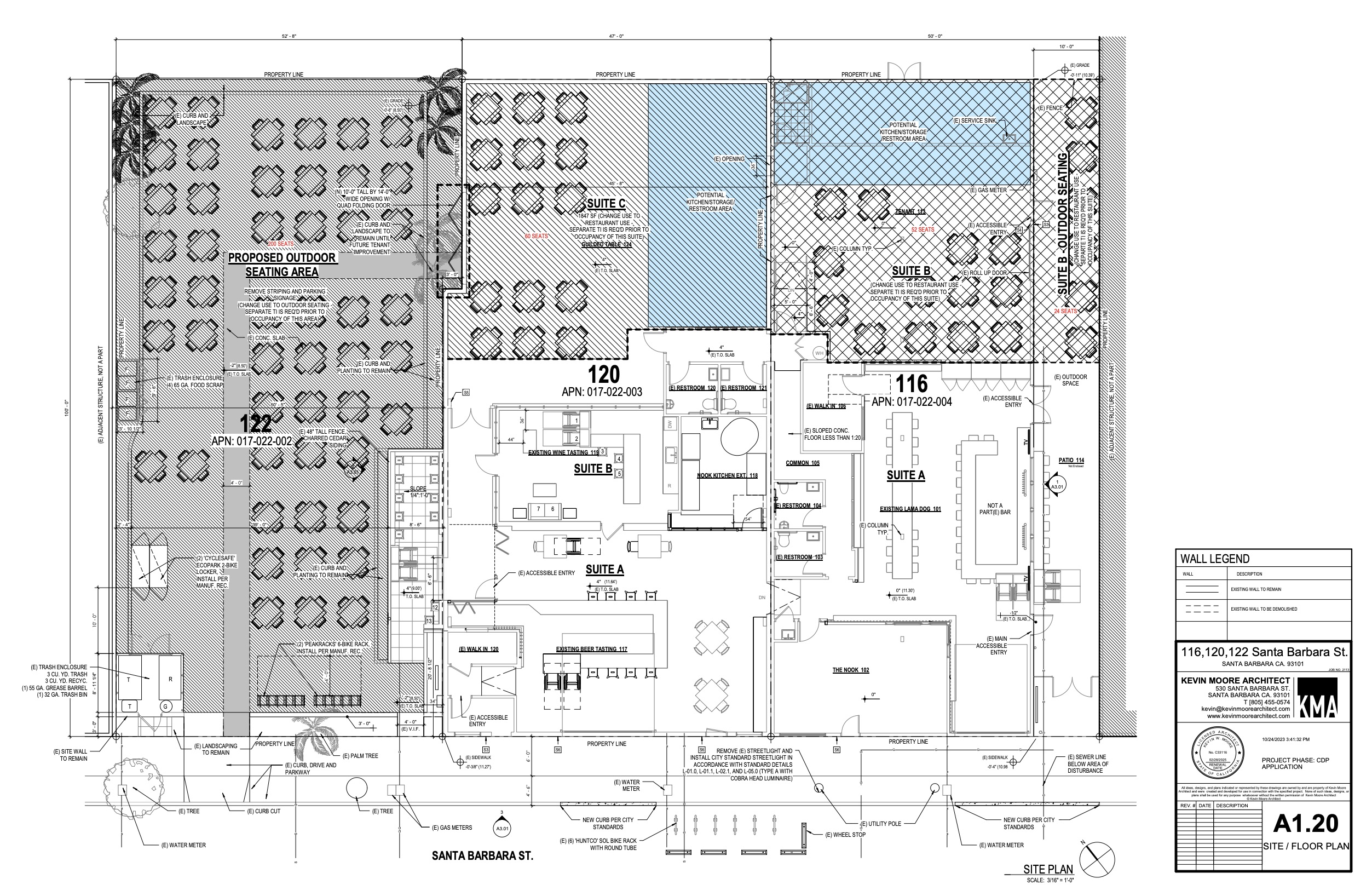
••• The Architectural Board of Review’s December 11 consent agenda includes an expansion of the capacity at the multi-tenant Waterline complex (home to Lama Dog, Topa Topa, the Nook, et al) in the Funk Zone: “Change the use of two existing industrial tenant spaces within the two existing nonresidential buildings to be occupied by future restaurant tenants and convert the existing parking lot [below] to outdoor patio seating for customers. […] The project would eliminate all onsite parking with the conversion of the parking lot to outdoor dining. Onsite automobile parking is no longer required for commercial uses on the property pursuant to State Assembly Bill 2097.” (That law, explains L.A. City Planning, “prohibits public agencies or cities from imposing a minimum automobile parking requirement on most development projects located within a half-mile radius of a major transit stop.”) The floor plan submitted to the ABR shows an additional 336 seats. Good thing most of those customers will be taking the bus or train….

••• Stella Mare’s announced that its lease has been extended for at least another year.

••• Uptown Lounge on upper State Street, which closed without warning or explanation in September, says it will reopen later this month. The space underwent some remodeling and the name will be the same.

••• Finney’s Crafthouse is taking over the former Hollister Brewing Company space at the Camino Real Marketplace in Goleta. It’s aiming for the end of 2024.

••• “Best BBQ is coming to 716 State Street [Ortega/De La Guerra], the former home of Mokutan and Choppa Poke. The eatery’s flagship location is at 915 E. Harvard Boulevard in Santa Paula.” —Restaurant Guy

••• And a Restaurant Guy reader says he heard that something called Buddy’s, possibly serving barbecue, is opening in the W. Victoria space next to the Public Market. That runs counter to what was announced—that it would be an event space—when the building sold.

••• Speaking of the Public Market, Sunstone Winery opened a “winter pop-up bar” there.

••• “Do you know of any local bakeries that make Jewish baked goods for Hanukkah?” asked S. Well, through December 14, Hook & Press is making raspberry cardamom jam–filled sufganiyot, and Bettina is serving terrific latkes with either beet “pastrami” and horseradish cream (below) or caviar and crème fraîche. (Not a baked good, but whatever.) Too late for Hanukkah, but surely worth remembering, Merci has chocolate babka with orange blossom syrup on its special-order Christmas menu. Anyone aware of anything else? UPDATE 12/13: Julie says that Bossie’s Kitchen and Eller’s Donut House also have sufganiyot. UPDATE 12/13: “It’s a little late but you might want to add the Jewish Federation as a source of baked goods,” says D. “They can be ordered online and are available every Friday. They are made at a bakery in L.A. on Fairfax by a man who also lives in Santa Barbara.”

················

Sign up for the Siteline email newsletter for the freshest food news in town.

Comment:

16 Comments

Ali

Hook & Press are doing raspberry cardamom sufganiyot (jelly filled doughnuts). Not sure if you have to preorder them.

Reply
Sue Sadler

Brilliant news about Stella Mare. It’s a great restaurant in a lovely building that deserves to stay right where it is.

Reply
Janice

Dear Uptown Lounge Owners,
My Samarkand neighborhood above the park has had a lovely respite from your loud music until 1 am. and hearing drunk people discuss who will drive. We have been able to sleep with our windows open since you closed. In kindness, we ask that you please understand how much your choices affect our lives. We wanted to move but it wasn’t possible. Thank you.

Reply
Margo Kenney

Off the subject, but I heard today that the city is considering a 6 story (SIX!!) on Loma street in the lower riviera. SB city cares not for view easements, so this could be possible. Any info?

Reply
Ruth Ann

Hi Margo, Yes, it is a proposed 6 story apartment (?) building with underground parking actually on Grand Ave. I can tell you more if you want to call me.

Reply
MO

Who is approving all of the ridiculous projects? We need to find out and vote them out of office. I am thoroughly disgusted with my hometown of 60 years!!

Reply
E

The city is out of compliance with a state mandate regarding affordable housing, so projects are able to skirt by certain zoning laws if they meet certain affordable housing targets. The city still has to approve them but has much less power in being able to do so.

Reply
Mb

No!! So upset uptown is reopening. The neighborhood has been so much better without it. Thought it was up for sale..?

Reply
NS

Mb,
I am wondering as to how the neighborhood is better after Uptown closed. Was the music and outdoor seating too noisy?

Reply
John

I will miss Stella Mare for so many reasons (food, service, decor, consistency), but the most important: it’s a quiet restaurant where I can actually have a conversation without yelling. Is it the last ‘adult’ restaurant in town? The feel in some of the smaller rooms are not unlike the old Casa de Sevilla, where quietude, tradition and extraordinary chile con queso appetizers ruled. Is anyone here old enough to remember Talk of the Town? Also a great spot from SB’s past. Dreaming now…

Reply
Rebecca Horrigan

Helena Avenue Bakery’s chocolate cherry babka is the best I’ve ever had!

Reply