••• Finch & Fork at the Kimpton Canary hotel reopened yesterday, with updated decor and menus. Above: fried chicken “oysters” with potato puree and hot honey sauce. UPDATE 5/15: Christine noticed something about the menu that I didn’t—everything is $10! (Not really; the prices are on the online version.)
••• Opening next week at 231 W. Montecito Street, between the Brewhouse and the Neighborhood: Rodeo Room, “brought to you by Grace Austin, who for years ran the recently-closed Little Kitchen on West Ortega Street, Colton Krueger, and Dudley Michael, founder of The Shop restaurant on Milpas Street. […] The Rodeo Room, which has a custom-built old-world interior, offers a menu where everything is made from scratch, including Grilled Little Germ [sic] Caesar Salad, Street Tacos, Salmon Poke Tacos, Egg Rolls, Burgers, Wings, and more.” —Restaurant Guy
••• The former Juice N Things space in Carpinteria is being turned into Carp Moon Cafe; the owner is the same. —Restaurant Guy (Update: It’s apparently open.)
••• Field + Fort has added even more outdoor space, although there’s only one table as of now.
••• Mariscos Santa Barbara has opened on Hollister Avenue in Old Town Goleta. —Restaurant Guy
••• If you like Middle Eastern food as much as I do, check out Tamar at Third Window Brewing (Monday through Wednesday, noon to 4 p.m.). I thought the chicken shawarma and amba aioli were excellent.
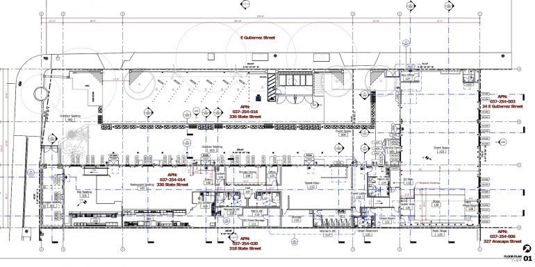
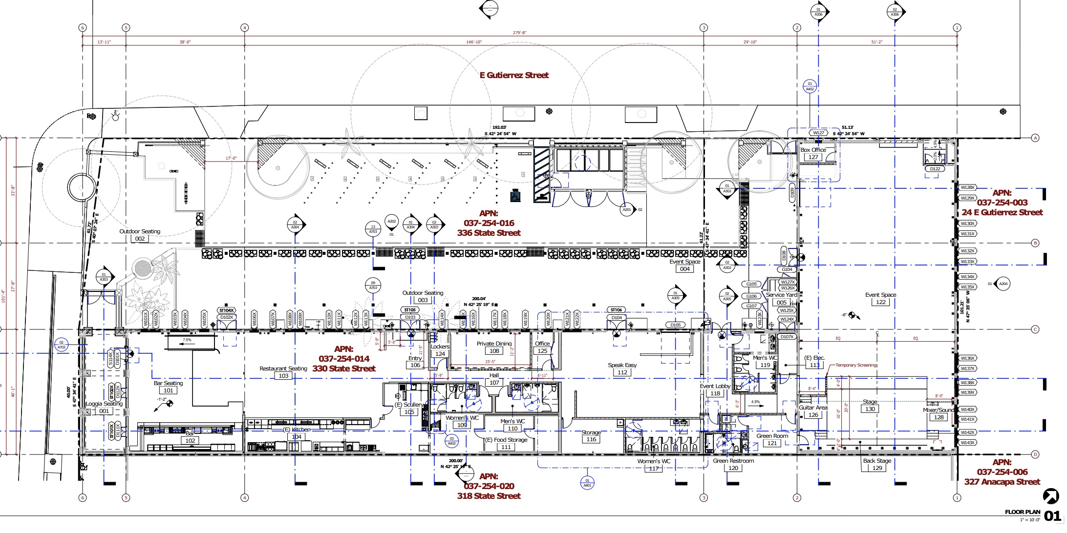
••• The plan has changed a bit for 330 State Street (at Gutierrez): Last time it went before a city board, in March 2021, the layout included a bar; a kitchen; spaces labeled “food vendors, “bakery/coffee/dessert,” and “wine”; 3,400 square feet of seating area; a “lounge”; an outdoor “event area”; and a 900-square-foot “display space.” Now, in the plans submitted in advance of the May 11 meeting of the Historic Landmarks Commission, there’s a restaurant and bar, a “speakeasy,” and an event space with green room, box office, and “guitar area.” (The renderings at the bottom are from last year, but I’d wager they haven’t changed all that much.) P.S. The agenda says there will be bowling lanes, but a rep for the owner says that’s not the case.
Sign up for the Siteline email newsletter for the freshest food news in town.






















Word on the street is Fairview Gardens is shutting down at the end of the month. I’m told that employees were given very little notice and are still in shock. It’s my understanding that the property can only be used for non-profit purposes. Sounds like the new owners wants to shut down for the near year to work on infrastructure. Can you please confirm?
The name Rodeo doesn’t do much for me but I’m so glad something has gone in here. It’s been dead for years.
Between the $10 pork chop or NY strip steak, I’m not sure what to order at Finch & Fork! Everything on that menu is $10, must have gotten out before it was proofread.
Maybe I should head to the Rodeo Room for some Germs on my salad.
I really hope these places pay more attention to detail with their food.