On Wednesday, the city’s Historic Landmarks Commission will discuss architectural changes proposed for 330 State Street (at E. Gutierrez), built in the early 20th century for the Seaside Oil Company and listed on the National Register of Historic Places. The Andalucia Building, as it’s known, is the former home of Casa Blanca and Fit Buddha (and current home of Dawn Patrol and REI, but those parts are not in play). From the agenda:
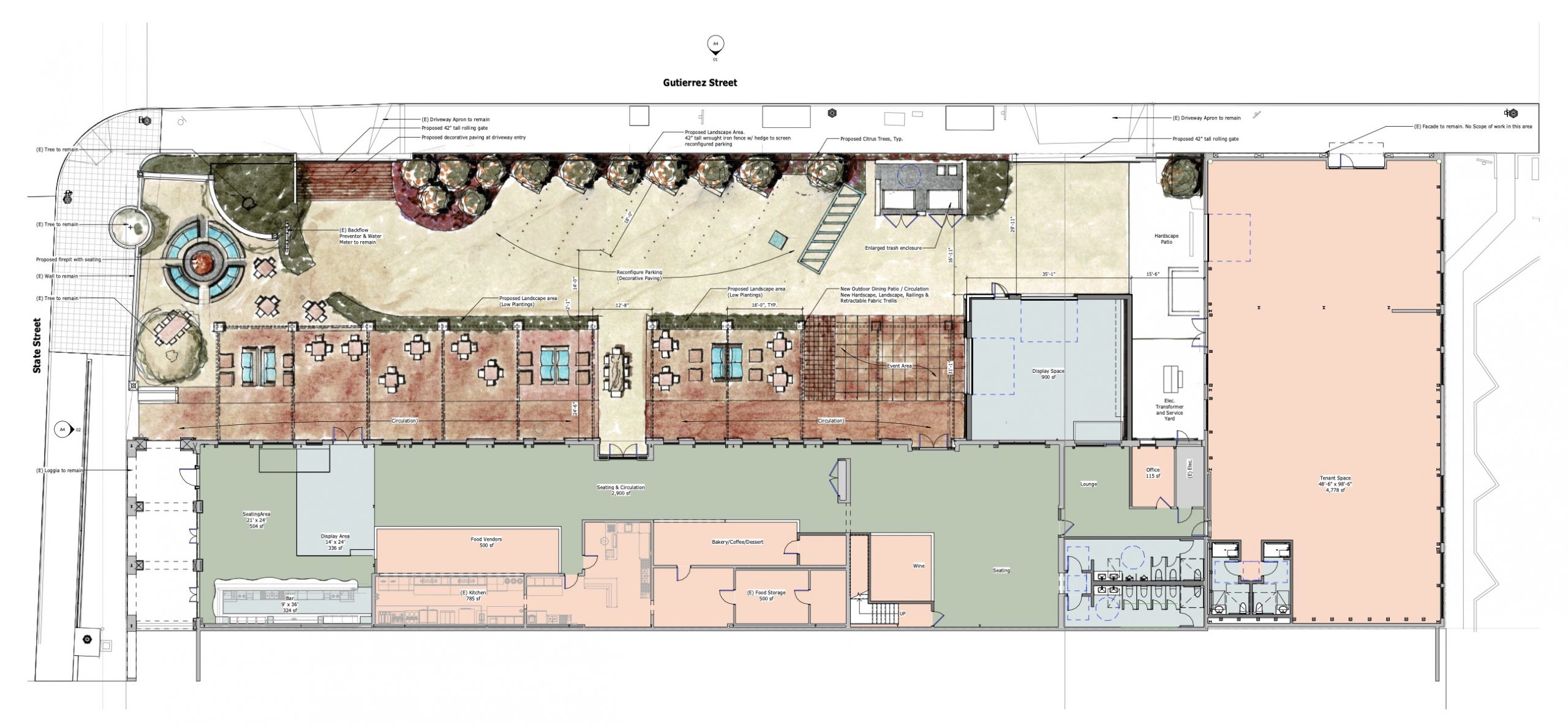
Proposal for adaptive reuse of the existing multi-tenant commercial building on a 28,211-square-foot site. Exterior improvements to the building include a new 900-square-foot garage addition and new HVAC equipment on roof. Site improvements include the conversion of a portion of the parking lot to a covered outdoor dining area, alterations to the landscaping and site screening, and a new trash enclosure and path of travel to meet ADA requirements.
According to the site plan included in the submission, half of the parking lot will get turned into trellised outdoor seating—very 2020!—and interior spaces will include a bar; a kitchen; spaces labeled “food vendors, “bakery/coffee/dessert,” and “wine”; 3,400 square feet of seating area; a “lounge”; an outdoor “event area”; and a 900-square-foot “display space,” which is the garage mentioned in the agenda. If I had to guess, I’d wager that this will be a wine-tasting complex and/or event space, with a display garage for reasons that remain mysterious. The owner is listed as Bryan Maroun, who was most recently the general manager of Sunstone Winery (which appears to be opening at the Funk Zone, with a striking rooftop bar). A liquor-license application has yet to show up in the state’s online database.
The renderings by DMHA and Henry Lenny Design Studio show how dramatic the transformation of the north side could be.
Unfortunately, the exterior of the Casa Blanca space will be stripped of its Jeff Shelton details—and right when his distinctive stamp is about to be applied to the adjacent State Street undercrossing. That sconce would look all wrong at my house, but I want it anyway….
Sign up for the Siteline email newsletter and you’ll never miss a post.





















Appreciate all the updates. Curious whether plan details mention any impact to the SB Rock Gym?
This project appears to only use the north side of the building, which would leave the Santa Barbara Rock Gym unaffected.
That sconce is left over from Left at Albuquerque.
Parking is already an issue – so turning half the parking lot into outdoor dining sounds fine until you have to find a parking place – I guess you could ride your bike but most of the people I’ve polled are from out it town.