Last month, the city’s Architectural Board of Review discussed the plan for a roof deck and parking structure at 11 Anacapa, the old Funk Zone building under rehabilitation. There must have been pushback, because the project is going in front of the ABR again on Monday, February 22.
The description is the same as last time: “The project [or at least the part that’s up for discussion] involves converting 1,643 square feet of warehouse floor area to a wine-tasting business, including a new 1,962-square-foot, 45-seat, roof deck, a second-story storage area and bar. Second-story and roof access would be provided with a new exterior stair and elevator. Additional parking would be provided with a 22-space mechanical parking lift structure replacing 9 surface parking spaces for a total of 45 parking spaces.” The 15B Anacapa Street space in the northwest corner is SB Biergarten, from the folks behind Copenhagen Sausage Garden in Solvang. The wine tasting room in 20 Helena Avenue, in the northeast corner, appears to be Sunstone Winery, as the relevant plans are all labeled “Sunstone.”
But the design, by DMHA, has been substantially revised. The first stab at the roof deck (below) was aggressively contemporary….
…but the redesign is more integrated with the existing building, and more contextually appropriate.
And the parking structure went from a black box…
…to something much, well, funkier. It’s a straight-up homage to the art studios slated to be demolished as part of the full-block project between Yanonali, Santa Barbara, Mason, and Gray. (This round of renderings has certainly been given a hazy retro glow, no doubt in an effort to assuage board members’ fear of the new.)
The plans also included a couple renderings of the interior of the tasting room space, where apparently only white people will gather.
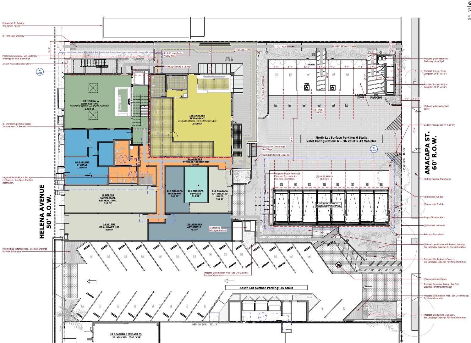
The full plans are here, if you care to take a look.
················
Sign up for the Siteline email newsletter and you’ll never miss a post.


















You must be blind. There is not only a black man in the photos but a lesbian couple as well.
How on earth were you able to publish this? “Where apparently only white people will gather”?? Blatant attack and inappropriate. You should be ashamed.
Heard of the first amendment? Who is this attacking? Ashamed of pointing out the obvious?
Please clarify
You should speak with the board of old WHITE MEN who approve or deny all of the buildings that go up in this town and control the “look” of Santa Barbara.
“where apparently only white people will gather.” This made me laugh out loud, this observation unfortunately is very on point and represents what I believe to be some of the bigger issues involved with these developments. Slightly encouraged by the revisions but still have my personal reservations.
I laughed aloud, too! It was a hilarious way of pointing out a real issue and I for one appreciate pithy and entertaining commentary like this. And on the same page with regards to the revisions. It’s better. I feel comfortable saying that. But I’m far from in love.
A little too cold and uninviting for my tastes. Not a fan of the “spider” looking lamps hanging from the ceiling. Your observation on visitors is a bit spot on, unfortunately.