The status quo long reigned in Montecito, for better and for worse. Then the pandemic inspired an influx of affluent new residents, and now an extraordinary amount of change is following in their wake.
How sleepy has Montecito been? The last time a restaurant opened in the Upper Village, it was Pierre Lafond’s Montecito Wine Bistro in 2011. And the other three restaurants—Via Vai, Pane e Vino, and the Montecito Coffee Shop—debuted in 1994, 1988, and 1984, respectively. Next year, two new establishments are on the horizon: the as-yet-unnamed one that local Graham Duncan is opening in the former Wine Bistro space (it’s still awaiting initial demolition permits), and the one that RH, as Restoration Hardware rebranded itself, is bringing to the Old Firehouse building.
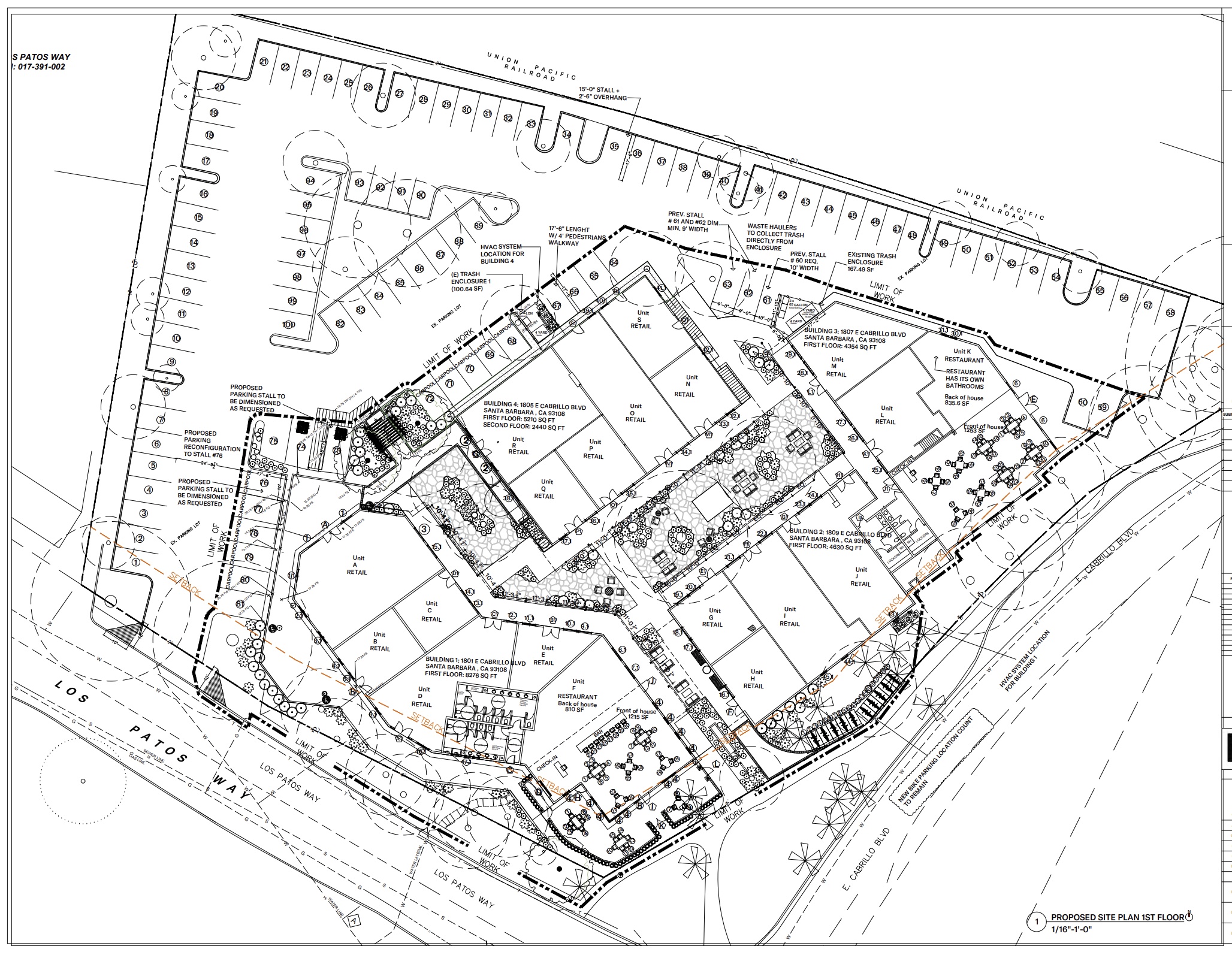
The Lower Village will see a lot of new blood, too. Clark’s, of Austin and Aspen, will be in the former Cava building (which is getting a Jeff Shelton revamp); Lilac Patisserie’s Lilac Montecito spinoff is under construction in the old Mesa Burger space; and Corazón Cocina sister Alma Fonda Fina and Oat Bakery are close to opening at the Montecito Country Mart. Nearby, at The Post—as the reinvented Las Aves complex across from the Andrée Clark Bird Refuge will be known—we can expect two restaurants: Jemma Montecito, a sister to two Jemma restaurants in L.A., and a bakery/café space, tenant unknown.
That’s eight new restaurants. Overshadowing them all is the ninth, Thomas Keller’s takeover of Tydes at the Coral Casino. Conventional wisdom predicts something along the lines of his restaurant at the Surf Club outside Miami Beach, which serves “continental cuisine interpreted for today’s contemporary guests,” rather than the kind of experience you’d expect at the French Laundry or Per Se.
The Coral Casino revamp, due to reopen in January with much higher dues, is just one of the many major projects on owner Ty Warner’s docket. Across the street, we still don’t know what he has in store for the restaurant at the Biltmore, where the dining room has been under construction for a while. Plans show a dozen booths amid a lot of foliage, and an expanded terrace. Other changes at the hotel, which is aiming to reopen next fall, include reducing the number of guest rooms to 192, a lazy river pool in the front yard (below), more shops, and an outsourced spa.
The San Ysidro Ranch is also in flux: Warner just opened a bar called the Speakeasy—replete with servers in flapper dresses—and is creating a “botanical garden” at the north end of the property, which has so far mainly meant stripping it of vegetation (below).
Montecito’s retail scene, meanwhile, is getting 33 new storefronts. Nearly half (17) are at The Post (below)—while technically in Santa Barbara, it geographically fits with Montecito more than anywhere else, and it’ll undoubtedly feel like Montecito when the developer is done with it. The other new shops are at hotels: a dozen at the Rosewood Miramar Beach, in the building proposed for the corner of S. Jameson Lane and Eucalyptus Lane (for a total of 17 at the resort), and four at the Four Seasons Biltmore (for a total of seven). Most, if not all, of these will be high-end—targeting both residents and visitors who need something to do once they realize that the weather isn’t always conducive to hanging out at the beach.
And it seems fair to assume that many will be chains, which may upset some folks, since pearls got clutched enclave-wide when news broke of RH’s Upper Village outpost. Coast Village Road, meanwhile, is getting another chain store: James Perse is either moving from the Montecito Country Mart to the former Angel space or opening something new there. The musical chairs at the Country Mart also include new shops from Orlebar Brown (men’s sportswear) and Emily Joubert (home and garden), along with a much larger Mate Gallery.
Beyond commercial real estate, Montecito will look different in fundamental ways. The Bucket Brigade continues to add dirt sidewalks everywhere it possibly can, and Highway 101 will eventually be enlarged to three lanes in each direction. As part of the freeway widening, the southbound Los Patos Way offramp will be removed, and the Cabrillo interchange will be totally redone. The plan includes reinstating the southbound on-ramp—hallelujah!—and introducing a roundabout (below). When all the work is done, drivers heading from Hot Springs toward the beach will eventually have to contend with three roundabouts in a row. Is there enough Xanax in Montecito?
And then there’s what we don’t know. A massive mystery looms at the eastern end of Montecito, where the University of California has yet to announce a plan for the former QAD campus (below), which it bought in June 2022 for $104 million.
That’s a lot to keep track of! The best way to learn about news first is to subscribe to the Siteline email newsletter, so you’ll never miss a post. As always, tips are appreciated and anonymity guaranteed: email [email protected] or text 917-209-6473.


















“Pearls got clutched.” ????
It is the perfect description of the reaction of all of us when change happens in Montecito. We “clutch our pearls” and say “EEEEK”!!!!!
I’m thrilled Biltmore is reopening
Nothing can compare to it!!!!!!!
Did not see any mention of affordable housing…
Oh brother
You’ll never find it
Move to South Dakota
Don’t worry Lou your virtue is intact and you’ll still be able to find an affordable Gardner…
You won’t see any posts about affordable housing in Montecito!
I am so looking forward to Clarke’s! I checked the menu, and FINALLY someone has the right bun for a lobster roll! They need to have raw sides so they can be toasted on the griddle with butter. not a double sided hot dog bun like all the other places that serve Lobster Rolls. All of them have the wrong bun.. Good grief! Go to Maine or anywhere back east and check the lobster roll buns! Yippee!
Could not agree more, Penelope! Clarke’s is great — and they do a lobster roll right. (Among other great things). I think this will be a wonderful additional to Coast Village!
Clark’s will be an instant hit. it’s incredibly delicious and will fit in well
Hopefully with the new roundabout near The Post, they will landscape the area on E Cabrillo and Channel Rd (it used to look so nice).
If the changes were good there would be few complaints But they are not Turning Montecito into LA North is sad and unappreciated by many longtime residents and natives
Any update on the new construction at the SB Polo Club?
Thank you for keeping us posted