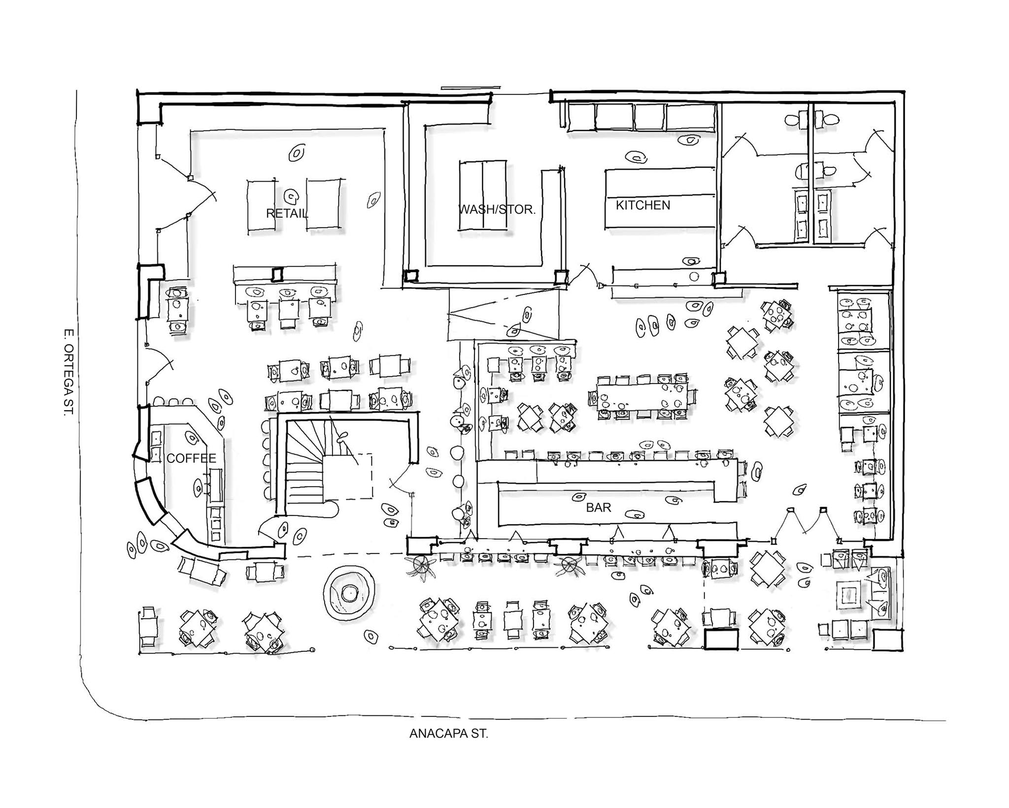
••• I hear that a restaurant is getting built out at 701 Anacapa, a.k.a. Los Arcos. Miramar Group, developers of Kim’s Service Department on State Street (home of Cubaneo, Shaker Mill, Modern Times, etc.) and Waterline in the Funk Zone (home of Topa Topa, the Nook, etc.), have marketed the ground floor as another one of its “unique, open concept, multi-tenant destination comprised of a restaurant, bar, and retail spaces,” so it’s not clear whether someone has taken the entire thing or just the restaurant. The floor plan used for marketing (below) also indicates a coffee bar in the corner, which would seem to be the last thing that area needs, what with Dune and Handlebar nearby.
••• Lab Social, as the bar at Cajé café on E. Haley is known, has blingy new ice.
••• Back in October, L.A. restaurant Little Dom’s said that its Carpinteria outpost, Little Dom’s Seafood, would open in January. I’ve reached out twice to the media rep to see if there’s an update on that. Below: the restaurant in early December. UPDATE: The official word is sometime this spring.
••• I don’t recall seeing Sumos—a large mandarin orange that’s easy to peel, generally seedless, and delicious—at the farmer’s market before. These were at Saturday’s market, but I can’t remember the farm’s name; it’s the nice guy in the middle row who has a lot of melons during the summer.
••• Tyger Tyger has been running a lot of really interesting dinner specials lately—pictured below, pork curry puff with cilantro stem kimchi and oyster aquafaba; beef curry doughnuts; and Forbidden Rice horchata with mango-ginger whipped cream. Am I the only one who would love to see the restaurant turn more ambitious at night? Also, keep an eye out for details on the restaurant’s Chinese New Year party on January 25.


















Comment: