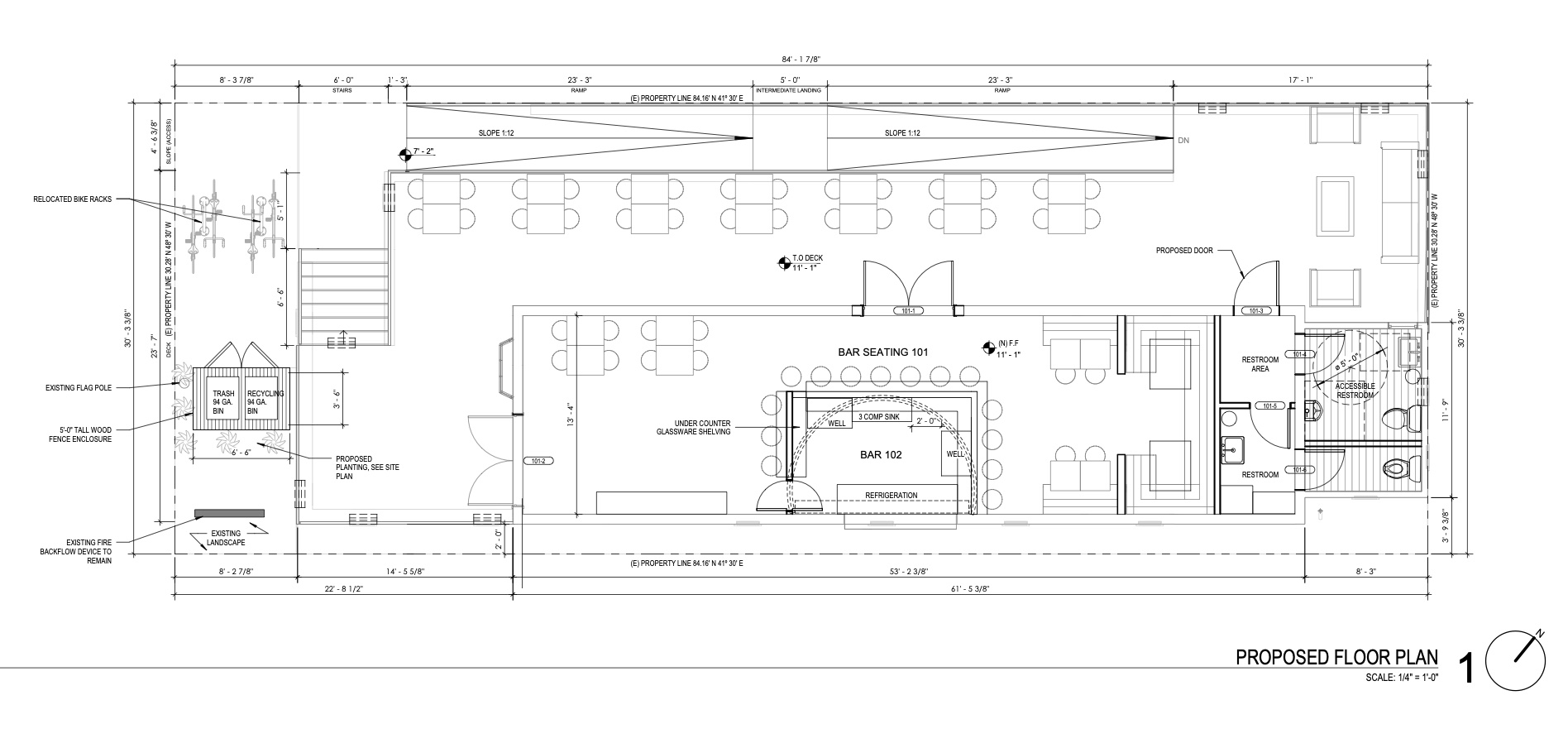
••• There are a few items of note on the Historic Landmarks Commission’s July 12 agenda. First, “a new 27,647 square foot hotel including underground parking” is proposed for 17-21 W. Montecito Street (above), but that’s all we know,* as the agenda item is focused on the two existing buildings. “A Historic Structures/Sites Report […] concluded that the building at 17 W. Montecito Street is not eligible for listing in the California Register of Historic Resources nor as a Structure of Merit and the building at 21 W. Montecito Street is eligible for listing in the California Register of Historic Resource and as a Structure of Merit.” 17 W. Montecito is where the Ducati dealer is; 21 W. Montecito is decrepit to the point of being structurally unsound, but according to the report, it’s significant because of “its association with motorcycle culture in the City of Santa Barbara as Mullaney’s motorcycle shop, and ‘Art’ Mullaney, owner of the shop who was a lifetime Santa Barbara Motorcycle Club member and a prominent member of the community.” (*I’ve reached out to the HLC but I have yet to hear back.) UPDATE: The hotel specifics will depend on what happens with 21 W. Montecito Street.
••• Second, details and a rendering for the former U.S. Army Recruitment center at 3237 State Street, which is being converted into an Indian Health Service clinic: “Proposal includes a 9,739-square-foot, two-story addition, 103 parking spaces, solar panel carports, landscaping, and public improvements.”
••• And third, 320 W. Carrillo Street: “Designated a Structure of Merit, the Bates House was constructed in 1904 in the Queen Anne Free Classic style. Proposal to demolish the existing 3,045-square-foot commercial building [Curtis Carpet] and 576-square-foot garage, rehabilitate and relocate the existing 2,396-square-foot historic two-unit residence to the front of the site, and construct a new 35-unit, four story, 34,905-square-foot residential building.” Perhaps the old house could be moved somewhere else entirely, because if it looks that uncomfortable in the rendering, I can only imagine how it’ll look in real life.
••• Fourth, a public notice has been posted for an HLC discussion about 1915 Chapala Street (Mission/Pedregosa), where the Christian Church of Santa Barbara would like to “convert existing church to hotel use.” I can see how the building could be a neat hotel, but the location is far from ideal. UPDATE 7/9: The church’s pastor says that the property changed hands in June and it has no affiliation with the project, despite what’s stated on the public notice. Instead, he says, the entities behind the project are “1915 Chapala St LLC, and owner Arvand Sabetian.” I’m losing track, but this might be the fourth or fifth hotel project here that Sabetian is involved in.
••• Last we heard about 42 Helena Avenue in the Funk Zone, it was getting converted into a two-room hotel. Now it’s going back in front of the Planning Commission on July 13, and the hotel idea has been scrapped in favor of a bar (or tasting room, I suppose) with indoor and outdoor seating.

••• On the July 10 agenda of the city’s Architectural Board of Review: “Proposal to demolish an existing 9,368 square foot commercial building on a 33,910 square foot site [at 15 S. Hope Avenue] and construct a new four-story mixed-use project consisting of 47 apartments with an average unit size of 720 square feet. Proposal includes one level of subterranean parking.” The building to be demolished is the former site of Aga John Oriental Rugs.
••• There’s a new vintage shop called Dos Vidas at 19 E. Canon Perdido. It wasn’t open when I stopped by, so I took a couple of photos through the windows. And the businesses in the El Centro Building are having a plaza party today from 4 p.m. to 7 p.m.
••• I’m not sure what compelled me to stop and look at this little doodad on the counter of the Montecito post office, but once I did, I turned the dial to read every word, and it got weirder and weirder. I’m sure it has something to do with E.U. regulations, but I think I’d rather just not know why white glasses, Rubik’s Cubes, and blueberry cookies make the cut. UPDATE: K. explains that I missed the part about “item description requirements.” It’s so hard to remain in ignorant bliss these days….
Sign up for the Siteline email newsletter and you’ll never miss a post.






















Is it possible to know the vacancy rate on hotel rooms? Are we really sold out all the time that we need all these new hotels? Maybe we are. If there are going to be all these ugly new buildings it would be comforting to know they were meeting a real local need.
Isn’t this article specifically saying that they’re going to use old buildings for these hotels?
Yes. All the hotels are sold out many weekends out of each year. I’ve worked at 5 places… all are sold out a lot.
For the first proposal of the new medical center, all the neighbors got a notice for the meeting. Now, they are adding a second story and none of us got a notice. This is not ok ! Thank you for the heads up
Really?? Why is a 2nd storey not OK? There is no way this building in this location has any impact on anybody’s home, views or anything else. Geez, some people are just looking for a reason to be outraged.
Agreed! That location is perfect for a 2 or 3 storey buiding. Busy, commercial, no housing nearby. Too bad they are taking an ugly building and making it uglier. Not outraged, just disappointed in their complete and total lack of imagination. It kinda looks like a mausoleum. Not the best look for such a prominent location on Upper State.
Hardly any housing compared to hotels, this needs a hard stop! Why not convert the church to SROs? At least there’s parking.
Why didn’t they put the police department in the army recruitment buildings or the old Sear’s building at La Cumbre Plaza, probably because it makes to much sense…
Or the News Press building.