••• The updated Debris Flow Risk Map, which was to be revealed this week, has been pushed back. It’ll now be the subject of a community meeting at Montecito Union School on December 5.
••• Hand-drawn signs are underrated.
••• At 9 a.m. on November 7, the Santa Barbara County Planning Commission will be discussing Pat Nesbitt’s controversial desire for a helistop on his property. You’ll recall that he thinks people oppose the helistop because they’re envious of his wealth.
••• The agenda for Monday’s meeting of the city’s Board of Architectural Review includes some new buildings:
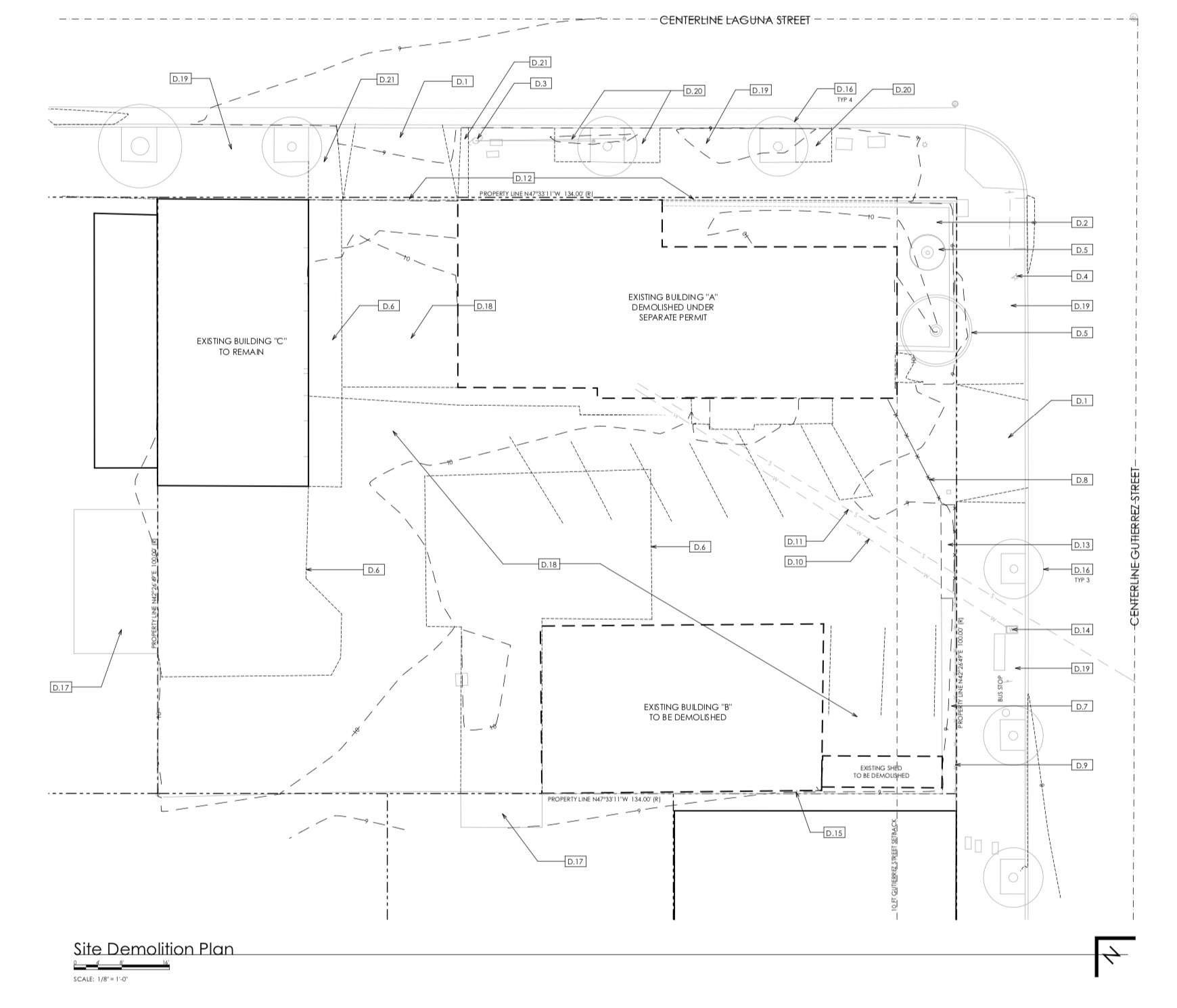
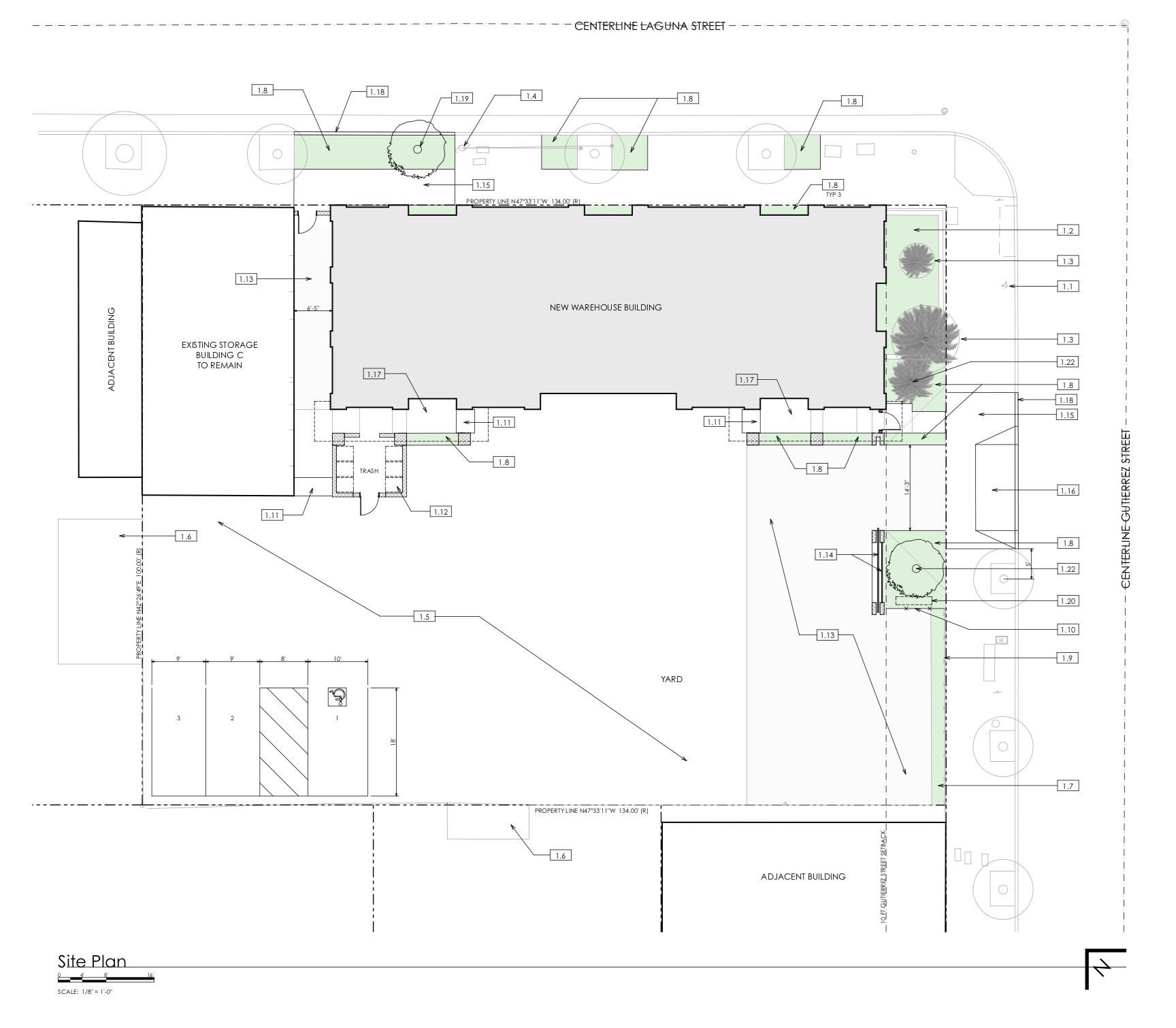
335 E. Gutierrez: Proposal for a new commercial structure. Project consists of the demolition of both an existing 1,914 square foot damaged retail building, and an existing 1,132 square foot storage building, as well as the construction of a new 2,858 square foot warehouse building. An existing 1,125 square storage building is proposed to remain. Three parking spaces are also proposed.
A photo of what’s there now, along with a few of the background materials:
219 E. Haley: Proposal for a new mixed-use development using the Average Unit-Size Density Program. The proposal includes the demolition of seven existing structures housing eight residential units and the construction of a four-story, 35 unit, mixed-use development. Unit mix will include 14 two-bedroom units, 16 one-bedroom units, and 5 studios ranging in size from 412 to 1,011 square feet, with an average unit size of 719 square feet. Also proposed are two commercial spaces totaling 1,816 square feet.
What’s there now, and some background materials:

















Comment: