••• Indian Pink‘s first non-pop-up store has opened at 1307 State Street (Sola/Victoria). It’s a celebration of color, with the signature pillows and a whole lot more—pajamas and other clothing, fabrics, curated furniture and antiques….
••• I guess the Lobster Town USA gallery on Santa Claus Lane was a pop-up, because it has announced a 25% off closing sale just three months after opening. UPDATE 3/9: T. reminds me that we always knew it was temporary, because the space is becoming a cannabis shop.
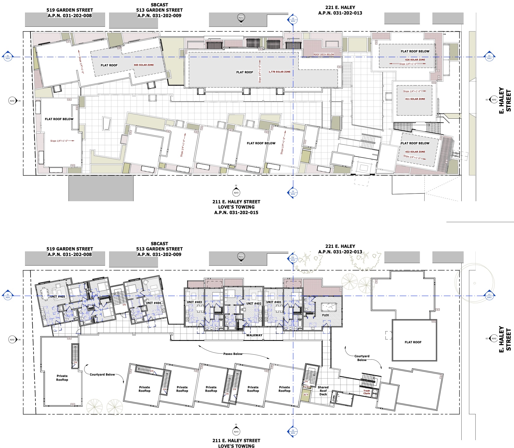
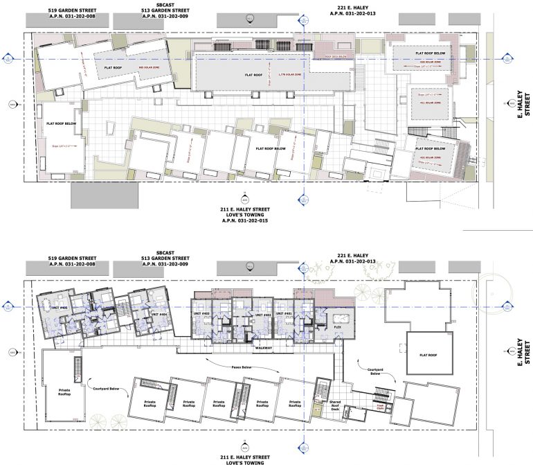
••• 219 E. Haley Street is back in front of the city’s Architectural Board of Review on March 7: “This project received Project Design Approval from ABR in January 2020. The project has been revised to a larger building of 28,070 square feet (vs. 26,835 square feet) with an average unit size of 762 square feet (vs. 725 square feet) and the building is proposed to be 48 feet tall vs. 45 feet tall. Project also added private rooftop decks and access to townhouse units, fenestrations and floor plans.” What I find interesting about the project—“a four-story, 34-unit, mixed-use development […] with two commercial spaces”—is the way some of the buildings are set at an angle.
••• From the city of Santa Barbara: “The City’s new Police Station project is evolving past its conceptual phase. Join the Police Chief & Design Team for a webinar on Mon March 7, to discuss the project status (proposed at 601 Santa Barbara St.) and ask questions.” Register here.
••• Corinne Bailey Rae, famous among crossword constructors (because (“Rae” is a very useful word for crosses), plays the Lobero Theatre on July 13.
••• Truth & Love beauty shop has opened in Paseo Nuevo. Its website touts its wares as “Plastic Free Cruelty Free Organic Eco Friendly,” and the marquee product is shampoo in bar form.
••• All is not well in Montecito, according to a letter that E. forwarded. (I redacted the address.) There aren’t enough free eggs in the world to make me wish I lived within earshot of a rooster….
Sign up for the Siteline email newsletter and you’ll never miss a post.



















Might be worth a neighborly chat if that hasn’t happened yet. It’s difficult to tell gender in chicks. People can end up with a rooster inadvertently. Or they might not have realized just how very noisy it was going to be…all day long. They might not want a rooster themselves but they can’t motivate to do something about it. Knowing it’s bothering others can be the push they need (this from experience).
We had a couple of peacocks in our neighborhood for awhile when I was a kid. They are even worse than roosters with their cacophony.
First world problems.
I am sure a Urkainian would love to have a backyard to laze around in.
It is just a freakin’ rooster. So tired of the privileged griping.
100% agree
I love it! The privileged griping about the privileged. Look in the mirror, people, we are all privileged just living here.
Pretty surprised that one rooster is allowed per property. Seems like something that was out of date about a century ago. I’d certainly vote to change that.
It may be time for you to move. I also live in the neighborhood and I like the rooster. Makes me remember that we all matter.
Roosters aren’t allowed within the Montecito community plan area. Montecito Land Use & Development Code §35.442.040.F.1.f: No rooster or peacock shall be kept or raised on the lot.
We have a neighbor rooster and I love it! <3