Noteworthy new listings….
Painted battleship gray, the 1991 house at 1035 Alston Road ($17.85 million) looks at first like it could almost be industrial. One glimpse through the front door clears things up: the unobstructed views, through floor-to-ceiling sliding glass doors, are jaw-dropping, and the interiors have been recently redone to glamorous effect. (The terrazzo floors are glossy in the living room and dining room and matte elsewhere, including the terraces.) The 2.82-acre lot extends down the slope, where there are flat areas with potential and a long panhandle that almost connects with Golf Road.
From 2014 to 2021, 256 Las Entradas Drive ($16.95 million) in Ennisbrook was on and off the market for as high as $6.9 million and as low as $5.25 million; it finally sold in September 2021 for $6.25 million. Not quite two years later, it’s back for $10 million more. The house itself is a palimpsest—despite a whitening of walls, ceilings, and even many of the floors, the 1991 Tudor-ish stylings remain visible here and there. (A few before shots.) While the footprint hasn’t changed, the seller did add a stunning pool terrace. Overall, the main allure is size: 8,716 square feet, six bedrooms, the grandest his-and-hers primary bathrooms on record (hers includes a shampoo chair), a large gym, and a plush home theater. P.S. The views are tremendous, but they’d be better without the power lines that run along San Leandro Lane.
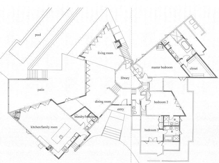
The floor plan is the gating issue at 1038 Ladera Lane ($4.995 million): either you dig the rooms radiating off the entry and all those trapezoidal angles, or you don’t. The location—toward the eastern end of Viola Lane, which winds dramatically along the hillside—has a secret-lair feel; perhaps the interiors should follow suit and be turned spare and cool instead of rustic Mediterranean.
A remarkable floor plan in a totally different style can be seen at 1386 East Valley Road ($4.695 million), a stone’s throw from the Upper Village. If I’ve counted correctly, there are 22 rooms, and unless you’re Snow White looking to put up your posse, the question will be how many of them can be combined. The 1930 house certainly has old Montecito curb appeal, and the lot is a half an acre.
Give 2567 Banner Avenue ($3.45 million) an Eightiesctomy and it could really shine. It’s on a half-acre lot at the end of a Summerland cul-de-sac, with a path that leads down (via someone else’s driveway) to the Field + Fort end of Lillie Avenue. There’s plenty of parking, a nice amount of outdoor space—including a patch of lawn—and small, separate living quarters on the lower level.
For sale by owner: the 1915 one-bedroom cottage—land not included—at 370 Mira Monte Avenue ($549,270). “Please consult with a professional regarding the relocation process and any local regulations that may apply.” P.S. I wonder how the seller came up with that number. UPDATE: The price got cut to $175,000.
And a few others worth checking out:
••• 914 Medio Road ($2.895 million): 1957 Lower Riviera four-bedroom.
••• 3053 Samarkand Drive ($2.895 million): 2008 Mediterranean in Samarkand.
••• 2965 Calle Noguera ($2.8 million): Another one across the street from Peabody Elementary School.
••• 2430 Mesa School Lane ($2.2 million): Two-bedroom, one-bath cottage on a West Mesa flag lot.
••• 3760 Lincoln Road ($3.05 million): Somebody put baby in the corner (below).
••• 5801 W. Camino Cielo ($1.799 million): Somebody put bunny there, too (further below).
Love real estate? Sign up for the Siteline email newsletter.








































































Comment: