An interesting project is up for a pre-application review with the Historic Landmarks Commission on March 1: the conversion of the former Forever 21 building at 901 State Street (Canon Perdido) into a 22-room hotel. The owner is Ray Mahboob; DMHA and Henry Lenny Design Studio are the architects.
From the agenda:
Proposal for adaptive reuse of existing two-story building with basement and mezzanine, and voluntary merger with adjacent lot for new egress stair; remove roof and replace with new two-level occupied roof with pool, spa, restrooms and bar; new stairs on adjacent parcel and two new elevators to access roof deck and basement; expansion of loading area along Canon Perdido. Site is in a 100% zone of benefit in the Central Business district and no parking is existing or proposed.
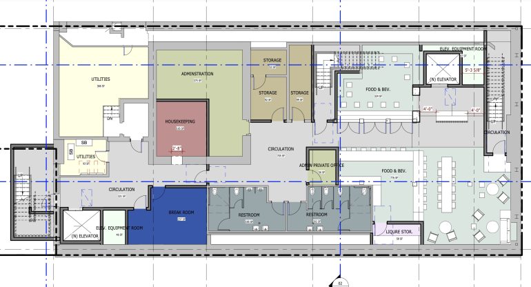
The basement level includes “food & bev,” but it seems to be more of a bar.
On the first floor is more “food & bev,” this time with a kitchen and an office for the chef. There are also three guest rooms.

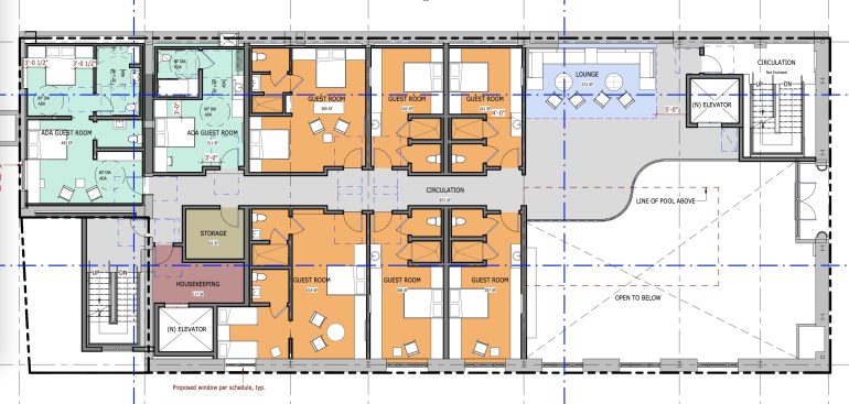
The second floor has eight guest rooms and a small seating area.
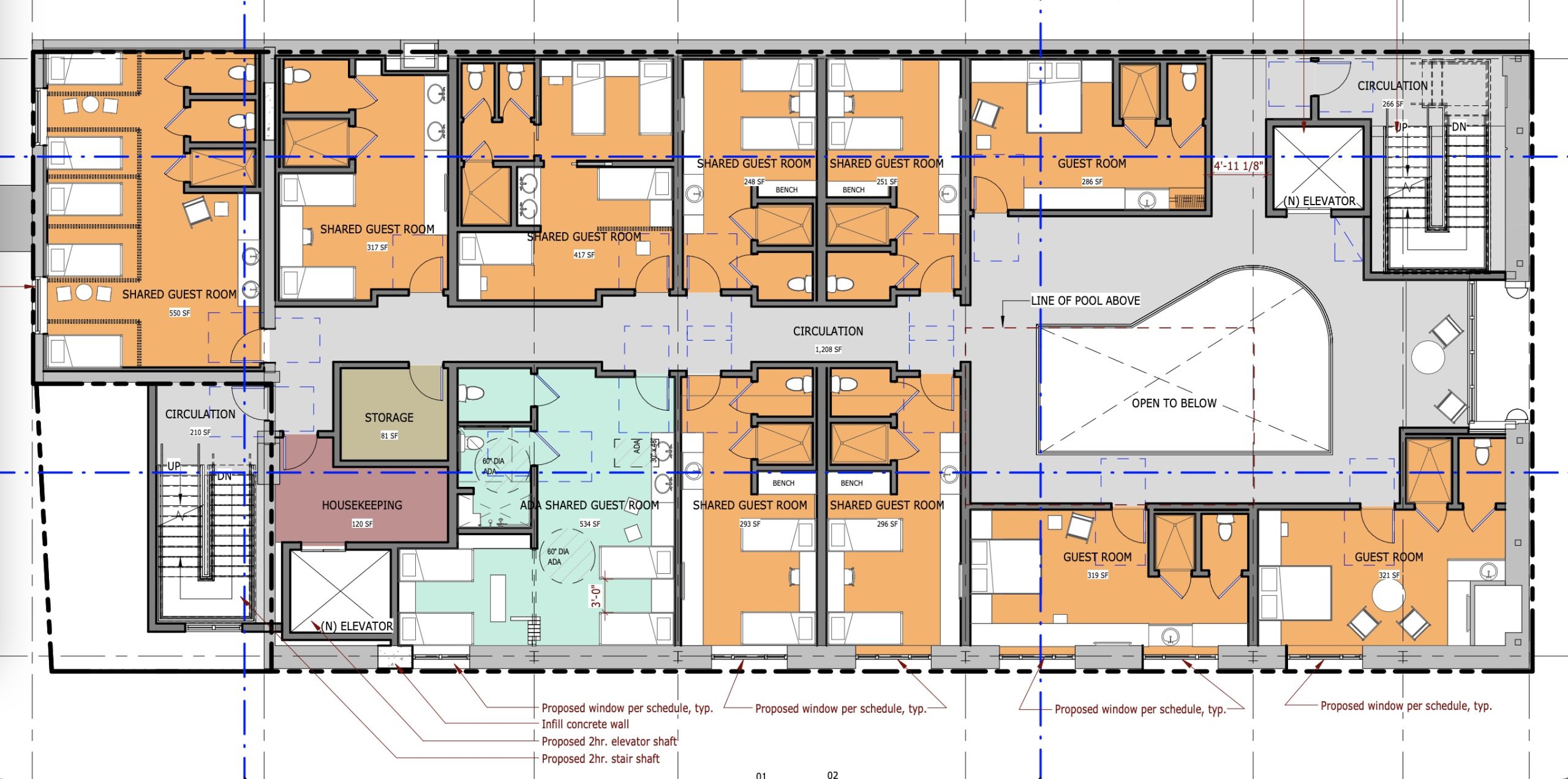
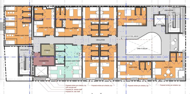
There are 11 more guest rooms on the third floor, some of which are “shared,” which implies that this will not be a particularly high-end hotel. Also, some of the non-shared rooms in the hotel are as small as 250 square feet.
And the roof has a pool with another bar.

The elevations show the exterior being given a bit more grandeur.
The full set of submitted plans can be seen here. It would join two other new hotels on State, the recently opened 45-room Drift and the 66-room one in the works at State and Ortega. The project it resembles most, however, is the abandoned proposal to turn 801 State Street into a 14-room hotel, which also included basement and rooftop bars.
················
Sign up for the Siteline email newsletter and you’ll never miss a post.


















That’s such a great building. I remember when it was revitalized so beautifully for the original SB Anthropologie. It’s been so sad to watch that area fall into decay. While I’d love to have seen some more housing instead of another hotel, at this point I support any coherent and thoughtful reuse of the building. I’m really over watching prime property turn into junky seasonal businesses like a Halloween store (and I love Halloween), or weird flimsy feeling operations like the clothing store operating in the unrenovated former Rite-Aid. That kind of stuff feels shabby and precarious and I’d barely put it one step above blight.
BW, I’ll agree the Anthropology interior was a very major remodel, the United California Bank exterior remodel in the 1980’s was what really made a difference in the outside look of this property
Thanks for the history, Art. I was born in the ‘80s so I don’t quite remember and it seems too young to remember the exterior pre-Anthropologie. Do you recall what business it was prior to Anthropologie going in in what I think was the late ‘90s? It’s a great building.
Is this being converted with the intention of tax-payer funded housing for the homeless at premium rates? And… am I reading it correctly, that there will be no provision for parking– I sure hope I’m wrong on that.
No parking in a shared rooms hotel ? Wake up Santa Barbara before you totally bring down State Street.
There is literally a giant parking lot within spitting distance.
SB needs more small retail store spaces that are affordable like in the past. State street needs less housing. The appeal to state street was the mom & pop store feeling that gave it uniqueness. It attracted people to want to peruse and explore. Hotels and big brand name stores are no different than any other US city. It’s driving people away. I used to love state street, now in my mind it is dead. Bring back what worked, don’t fuel what fails. Bring the charm and character back to state street. Also where will delivery trucks park? And what is a shared room hotel, are we calling this the upper state street hostel?
We can’t “bring back what worked” because what worked were bigger retail spaces that no one wants anymore. As you point out, retailers today want smaller footprints; the existing architecture of State Street makes that very difficult to pull off. I’m also curious about your statement that State Street needs “less housing.” There is a nominal amount of housing on State Street as it stands so I’m curious as to why you think we need less?
SB doesn’t need another hotel with a rooftop pool and bar, what it needs is a good rooftop restaurant open to the public. That would be a unique draw in SB.
I totally agree that we don’t need a bunch more hotels on State St. I think mixed-used buildings would work well to revitalize downtown. Small retail spaces for mom and pop businesses, along with restauants, bars, etc. on lower levels, and some workforce housing on upper levels. A few more town squares that are inviting. Maintain a low-profile with no more that 3 story building heights to keep the city’s charm and mountain views.