••• From the city: “The City of Santa Barbara Parks and Recreation Department is seeking public input for a future project at the site of Franceschi House within Franceschi Park. After multiple attempts to restore the building since 1971, the City Council voted unanimously in 2018 to explore replacing Franceschi House with an open-air structure that would honor the legacy of the building and its previous owners, botanist Francesco Franceschi and philanthropist Alden Freeman, while providing access to the public. The Department aims to learn the priorities and ideas that neighbors and park visitors have for the future of the site through an upcoming community workshop and survey.” The community meeting is February 10 (click the link above for more info); the survey is here.
••• After being closed for years due to storm damage, the Romero Canyon trail has partially reopened: “The Romero Canyon (Singletrack) Trail is open, and the Old Romero Road remains closed!” explains the Montecito Trails Foundation. We went out there with friends and promptly got lost—heading the wrong way, then doubling back, then heading back the same wrong way again (having told ourselves it had to be right), then doubling back before finding the correct trail—but since no one else seemed to have this problem, I think it was just us. And all that extra effort made it easier to justify a post-hike trip to Dang Burger.
••• Lyle Lovett and his Acoustic Band play the Lobero Theatre on March 25.
••• And Natalie Merchant plays the Santa Barbara Bowl on May 23. Amaze me now….
••• Transition House bought the eight-unit apartment building at 712 W. Anapamu Street (west of San Andres Street), so it seems reasonable to infer that the organization plans to use it for housing the homeless.
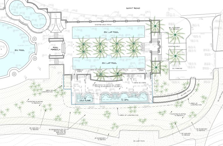
••• The Biltmore resort will be in front of the Montecito Board of Architectural Review next Thursday for a large slate of improvements, many of which appear to have been started (resulting in the recent stop-work order).
Conceptual review of renovations of SB Biltmore Hotel guest rooms, public areas, and back of house facilities of approximately 136,126 total square feet, including the following:
—Remodel and upgrade of the Central Plant (Maintenance Building #2), including demolition of a mezzanine floor area and 1,851 SF of the second story. A ground floor addition of approximately 1,851 SF is proposed to the Central Plant for use as additional housekeeping storage and engineering offices;
—Remodel of guest rooms in Buildings A1, A2, B1, B2, D, T, U, V and W, including exterior door and window changes. Interior changes will result in the reduction of the number of guest rooms to 192, in compliance with 22AMD-OOOOO-00005;
—Remodel of cottage-bungalows (Buildings E, F, G, H, J, K, L, M, N, P and Q), including exterior door and window changes;
—Remodel of existing retail shops in Building A1 and A2. Existing guest rooms are proposed to be converted to additional guest retail space and the La Marina reception room is proposed to be converted to a guest marketplace. Exterior door and window changes are proposed;
—Replacement of the pergola and loggia structures between Buildings A and B;
—Demolition of the existing Guard Shack and construction of a new guard shack closer to the Hill Road entry;
—Conversion of a guest reception room in Building A1 into a guest theater room.
••• And two country clubs are planning some improvements. The Montecito Club is going before the Historic Landmarks Commission today with a proposal to “extend the existing pool deck southerly to accommodate a new spa and cold plunge pool at the existing pool complex.”
••• La Cumbre Country Club will be at the South Board of Architectural Review on Friday for “a renovation and interior remodel existing clubhouse of approximately 9,087 square feet, demolition and replacement of the existing interior bar of approximately 2,525 square feet, new exterior patios of approximately 432 square feet, enlarge existing patios by 3,560 square feet, new interior/exterior fireplace, repair & replacement of doors/windows, grading and lot improvements, and new tennis court.”
••• The nonstructural columns in the State Street undercrossing have been removed, and I have to say (with no disrespect toward the Jeff Shelton ones coming to the space) that it looks kind of neat this way. Also, while walking under the freeway, I realized I should ask whether the palm trees visible in the middle will survive the renovation. Shelton says that his plans include them.
Sign up for the Siteline email newsletter and you’ll never miss a post.




















Thank you for including the survey for Franceschi House. I hope that the private sector could work with the Pearl Chase Foundation to save and restore the house and gardens for public enjoyment. Our City really misses the boat on protecting the special historical elements of this special community that set us apart.
I totally agree! It’s a wonderful historic property and beautiful as is.
The City should not waste any more taxpayer money on this project… much better option would be to sell the property to the highest bidder, who would then quite likely return the property to its original splendor, in an efficient and tasteful manner. The City could then use those much-needed proceeds to repair and improve the rest of the city parks that the residents actually use. Not to mention the current ongoing City costs that would cease (full-time onsite caretaker, repairs and maintenance, etc etc).
Franceschi is a well used park. Living in the neighborhood, I’m there 3x a week and see others starting there day enjoying the sun rise or viewing sunsets , enjoying picnic lunches or using the paths and stairs of the Lower park for Cardio. Visitors are from all parts of the town, young and old. Only recently has there been any weekly maintenance which isn’t much more than emptying trashcans, a 20 min. stop before moving to the other places in town.
We do not need infill of our Historic open spaces.
The underpass has always been horribly noisy, especially when a motorcycle or someone with no muffler passes through. Jeff Shelton will add visual appeal, but let’s hope acoustics will be addressed.
I drove up there this morning. It was surprising to see so little vegetation since we had record rainfall last year. And driving in the parking lot just wasn’t the same. I didn’t bottom out on the speed bumps. In fact there are now concrete curbs driving in, no more succulent hedges. What’s left to save? Also, the homeowner right above has a really loud pool motor going. The park is nothing like it was decades ago. The plants that are now cut to look like balls were once hedges. It was a secret local garden.