The agenda for Monday’s meeting of the city’s Architectural Board of Review includes three new apartment projects with a total of 152 units. While none are even close to approved, and changes are likely, they offer an interesting glimpse at efforts to address the housing crisis in Santa Barbara.
················
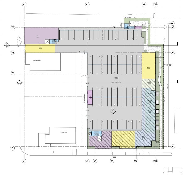
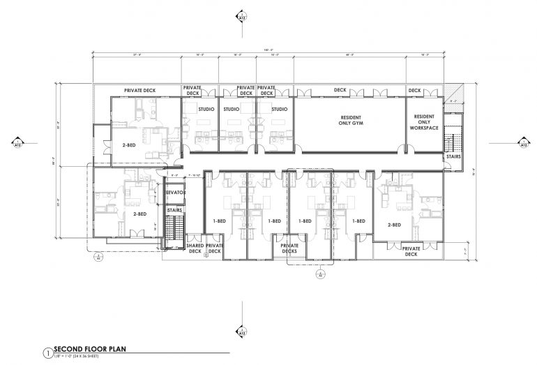
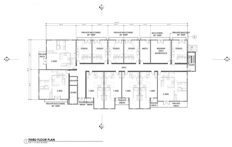
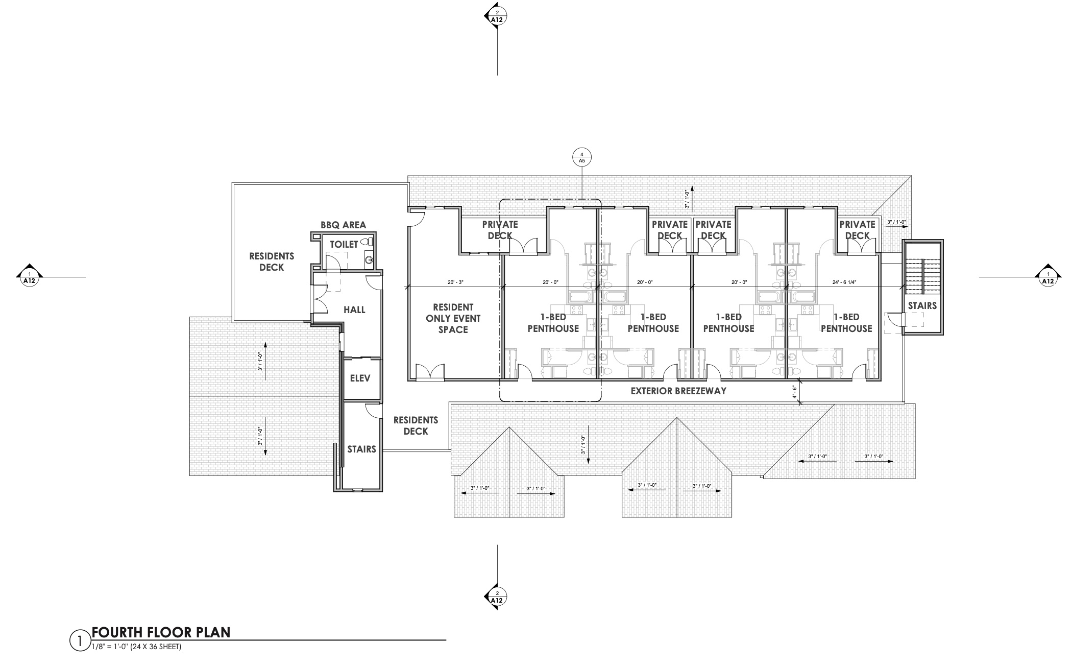
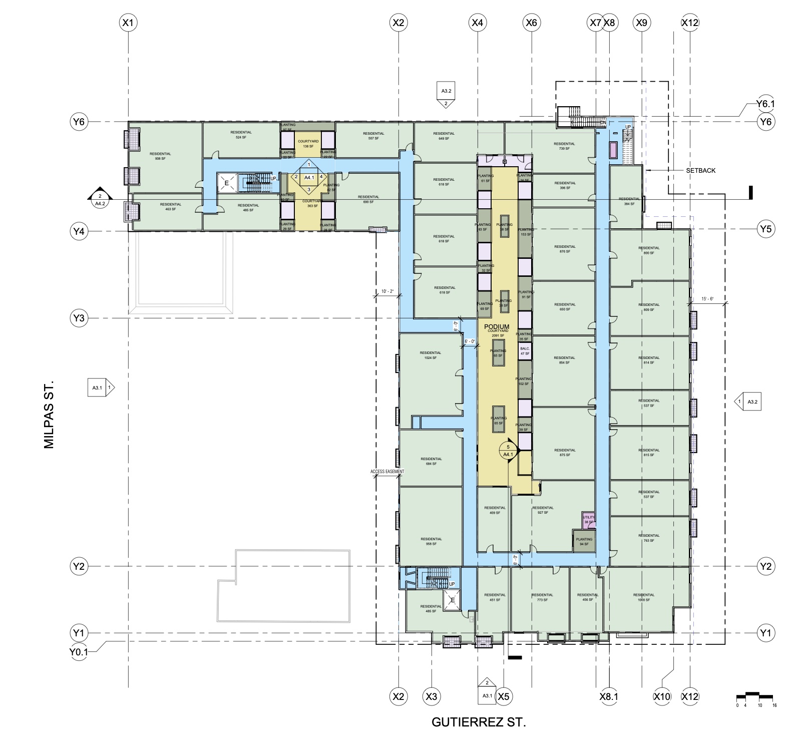
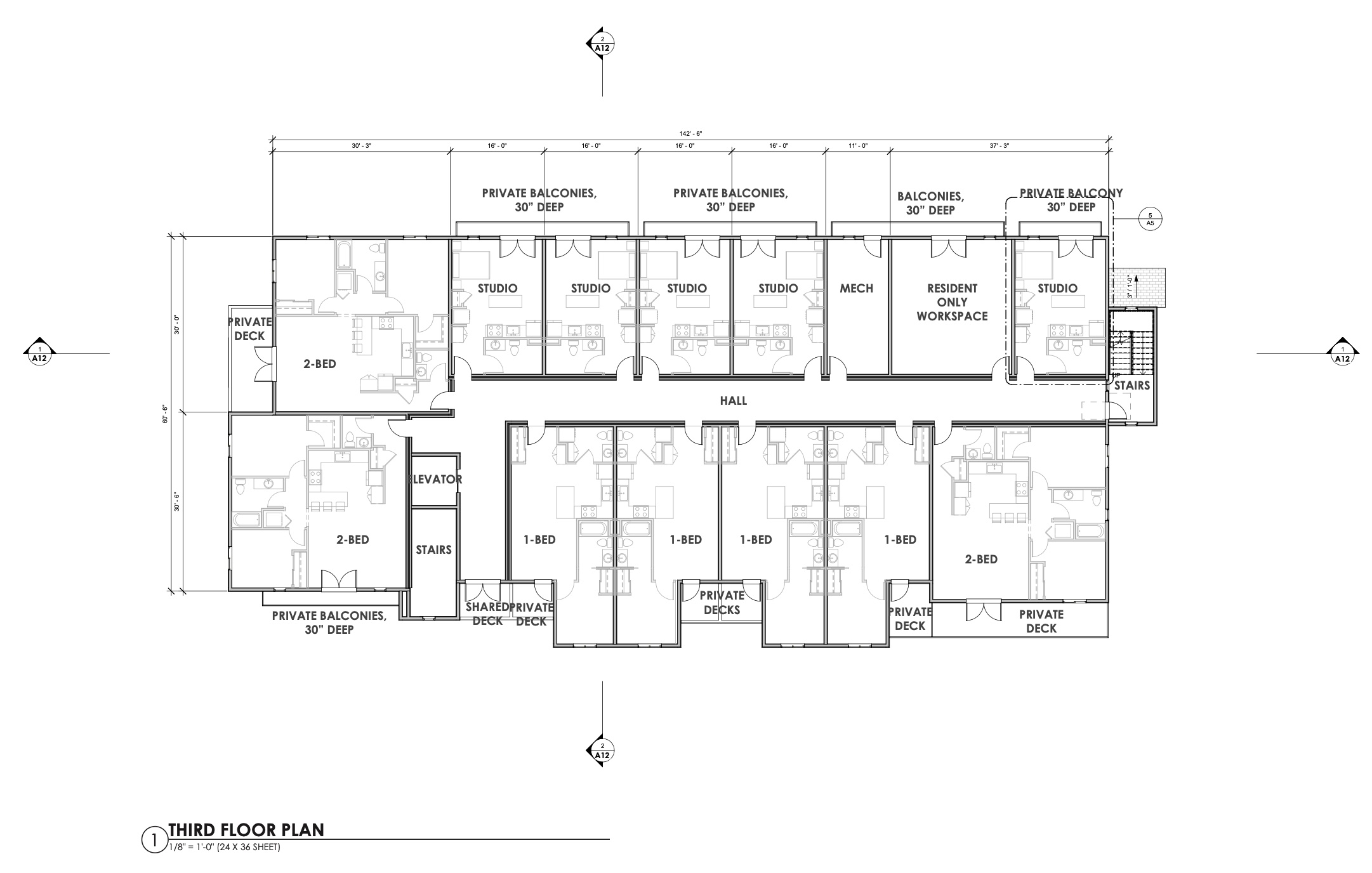
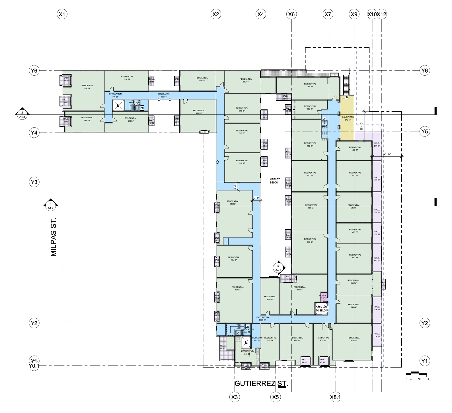
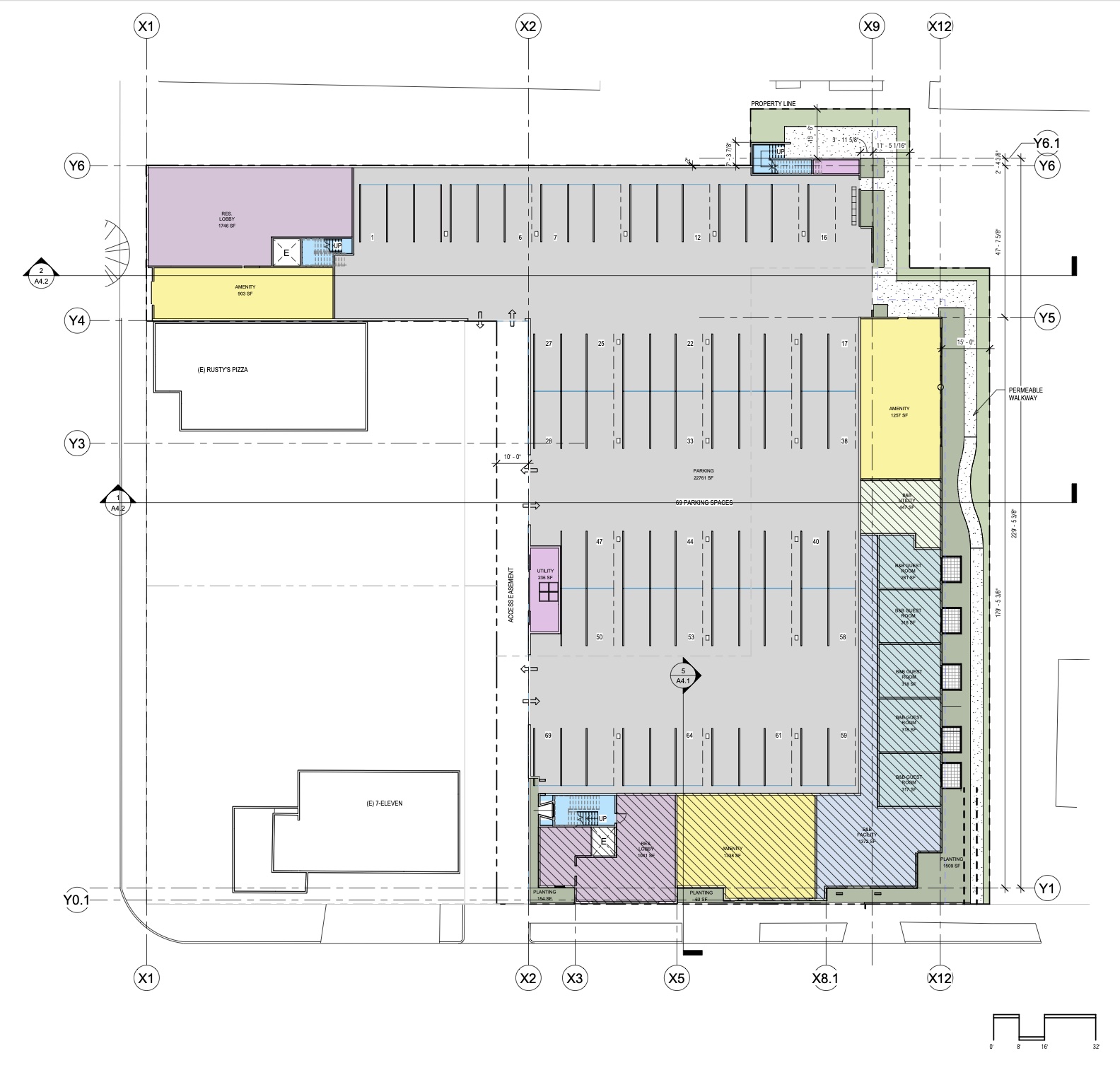
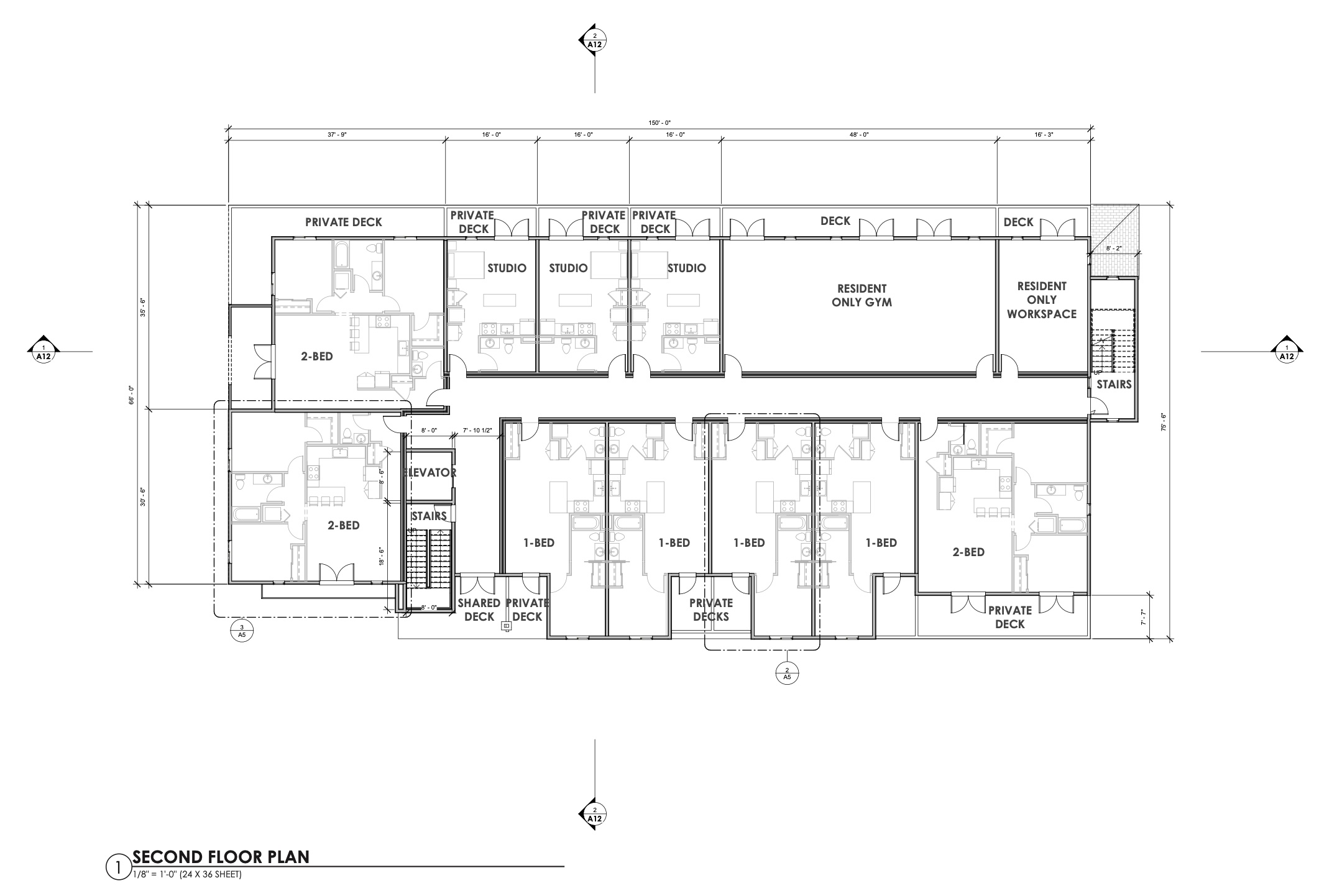
The biggest project is at 418 N. Milpas Street (between Haley and Gutierrez, with more frontage on Gutierrez): “a 101,204-square-foot, four-story, 90-unit mixed-use building, comprised of 34 studio units, 44 one-bedroom units, and 12 two-bedroom units, and 6,118 square feet of commercial/retail space on the ground level for commercial retail (1,557 square feet) and bed & breakfast hotel (4,561 square feet). […] The project will include 9 very low-income units (15% of 90 units). […] The project will also include 6 moderate income units (10% of 60 units) satisfying the City Inclusionary requirement. In total there will be 15 below market units and 75 market units within the 90 total units. The project provides 52 parking spaces for residential units of .5 spaces per bedroom as allowed by the SDB parking incentive for 15% very low-income units. The commercial/retail and bed & breakfast hotel requirements adds 14 additional spaces for a total of 69 spaces.”
It’s being called Milpas Gardens, likely an homage to the nursery at that location for years (decades?). The plans don’t include a very good sense of the architecture—which is by Hochhauser Blatter Associates—but what we do get is very Courtyard by Marriott. Of special note are the five “bed and breakfast” hotel rooms along the eastern edge of the ground floor. (The floor plans below are for first, second, third, fourth floors, respectively.)
················
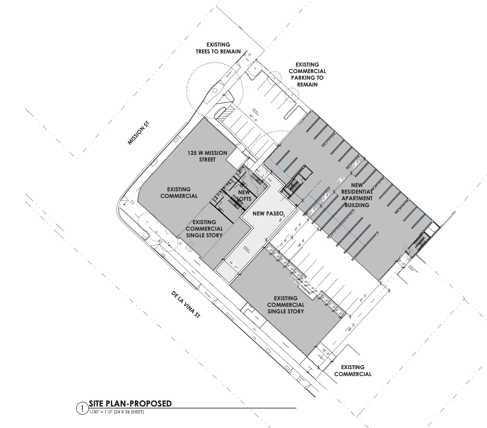
Much more impressive is 1922 De La Vina Street (Mission/Pedregosa), which proposes to: “retain the existing commercial buildings [site of Sheepskin Trading Post, Boom Boom Bike Room, Cat House Hotel, et al] and construct a new 45-foot high residential apartment structure comprised of three stories above the parking podium level (four stories total), containing 26 residential units, of which 10 will be allowed through State Density Bonus provisions. Three additional loft units are proposed in a portion of the existing commercial building fronting the proposed paseo. The total proposed residential units on site total 29. […] The residential units will include 40-100-square-foot private outdoor decks and common outdoor area located on the roof level. The parking structure includes twenty-one residential parking spaces and eleven commercial spaces, 11 surface parking spaces will remain; an outdoor public paseo space is proposed to complement the existing commercial uses. Access will be provided from the existing driveways off Mission Street and De La Vina Street.”
Called Mission Paseo, the project is designed by Bobby Walker Design, based in Tacoma, Washington.
Finally, there’s 425 Garden Street (Haley/Gutierrez), which is not new but is coming back with an improved design. “The project consists of demolition of all on-site structures and construction of a four-story 33-unit residential complex with common rooftop amenities. The project proposes: two moderate-Income rental units, four very low-income rental units, and 30 market-rate rental units. No parking is proposed on-site, consistent with the AUD Ordinance.”
What we can see of the design is better than the grim one submitted to the ABR in November 2021, when the project got a chilly reception. (This one is by Sean Day, based in Nova Scotia.) The lack of parking is likely to be a concern, even though it’s not in the ABR’s purview.
Sign up for the Siteline email newsletter and you’ll never miss a post.










































Pearl Chase is rolling over in her grave.
I count 36 units on the Garden St proposal.
“construction of a four-story 33-unit residential complex”
33 units at 425 Garden and NO parking spaces? Someone needs to do a parking survey. Residents will be walking blocks to their cars. 418 Milpas, 90 units and 52 parking spaces? This is not untypical of all new development. Due to high rent you can guarantee that there will be a minimum of 2 cars per unit. What happened to my Santa Barbara?
It’s in an area much friendlier to walking, biking, and transit. Shopping is literally next door. This enables households to have fewer cars so 2 cars per unit is not necessarily a requirement. I’d still tend to think including one parking space on-site per unit makes sense since this is America and it’s hard for a household to go completely car-free.
The tenants may also be able to rent a long term spot in one of the many parking lots or structures downtown. This could be a win for parking lot utilization since if a tenant commutes to work during the day the spot is free for people to come downtown, but many of these spots go to waste empty at night. Carshare services (like Zipcar) can also work well for people who don’t use a car every day, I’m not sure if these are big in Santa Barbara.
Requiring extensive parking in every new development is one contributor to the very sprawl that makes cars so necessary.
This is one reason why I moved from SB some years ago. Poor planning, and parking should always be included in any housing project. Remember there are people who rely on cars, those who are handicapped, etc. Shame on this city for their continued poor approval process.