Noteworthy new listings….
After years on and off the market, 974 Park Lane ($6.2 million) traded in January 2021 for $3.855 million. It looks like some surface work might have been done, but the big challenge remains: how do you make the property cohere? With that atrium entrance and dated staircase, the main house wants a total redo, but it’s on little usable land; the guest house has more land to work with, but it’s across a ravine. The listing touts “Plans and permits in process,” so perhaps a solution is out there.
Another flip attempt is underway at 1395 Virginia Road ($4.295 million), walkable to Butterfly Beach, which sold for $2.4 million in October 2020. The mini compound includes a 1925 four-bedroom house, two cottages, and “al fresco dining Cabana, climbing wall, surf shack, 2 outdoor showers, spa, sauna and a fireplace lounge.” It seems destined to be a vacation rental.
And there’s a third flip attempt at 2428 Anacapa Street ($4.25 million), which sold for $1.975 million in October 2020. The listing says the four-bedroom house has been renovated, but without interior photos, we can’t know to what extent. (Much expense was spared on the front yard.) The great room is more like a great hallway.
427 Pimiento Lane ($5.5 million) has a juicy location, two parcels (.6 and 1.17 acre) on a flag lot off of one of Montecito’s sweeter streets. The existing house is a teardown.
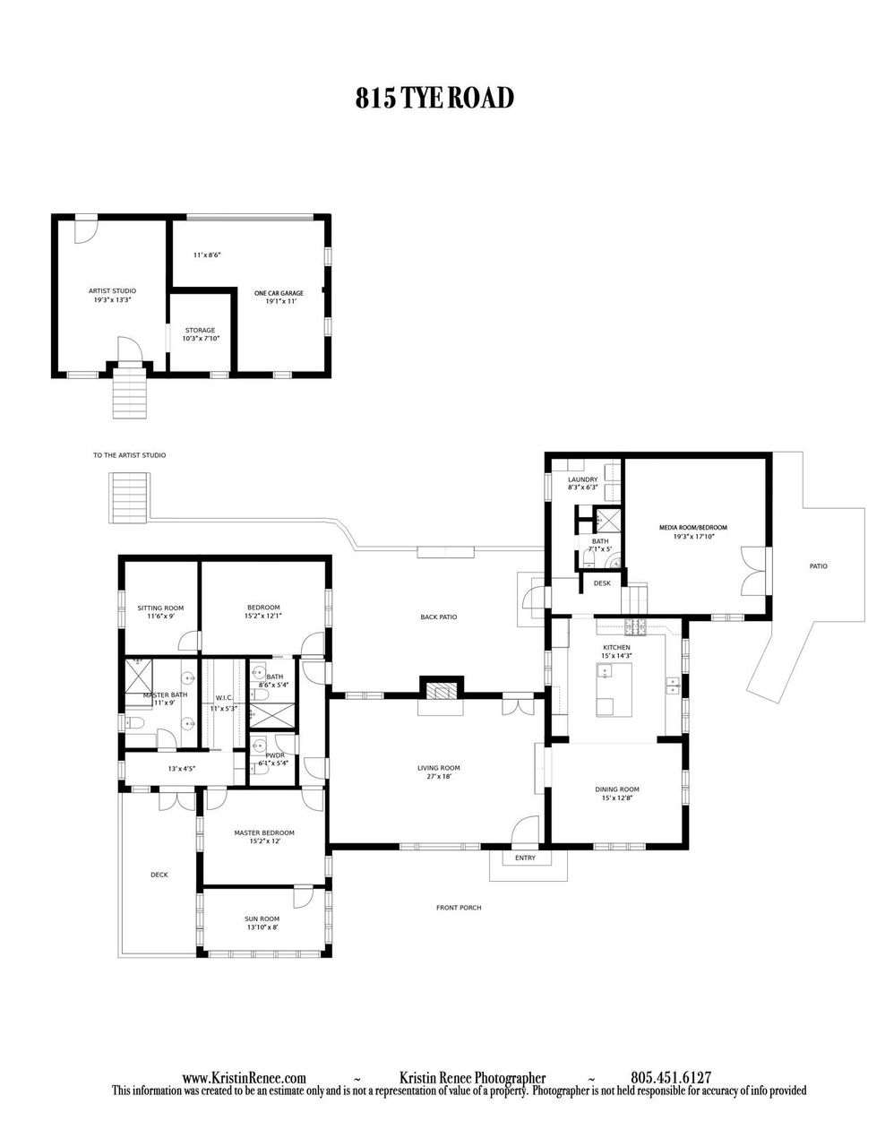
I bet the 1932 three-bedroom at 815 Tye Road ($2.949 million) in Mission Canyon gets snapped up quickly; the charm is evident, even if surfaces could use updating. The curtain around the bed gives me hospital vibes, though….
And a few others worth checking out:
••• 2212 Chapala Street ($2.55 million): 1927 house that got renovated so recently you can still see the seams in the sod; already in escrow.
••• 9 E. Quinto Street ($2.15 million): 1977 three-bedroom at the corner of State Street.
••• 1025 Palomino Road ($1.725 million): Terrific deck but the interiors are a project.
••• 2937 Hermosa Road ($1.495 million): Samarkand two-bedroom with the potential for potential.
••• 610 W. De La Guerra Street ($1.497 million): 1905 Westside house described as Craftsman but I don’t see it; the vaulted ceiling in the bathroom is dramatic.
Love real estate? Sign up for the Siteline email newsletter.






































Hospital vibes, indeed (815 Tye Rd). What is that thing? Lol
RE: 2428 Anacapa, 1) Your headline is a little deceptive. The way it reads, it would appear that the current rendition of the home is its 3rd flip attempt, which is not correct. Your lead-in should have read “In a third flip, this one located at 2428 Anacapa…”. 2) I think that if you actually saw this property on the inside (it was open Thursday), you would have seen that it was totally and beautifully redone, and that the “Great Room”, which flows to the island kitchen and the outdoor entertaining area quite nicely, actually works very well.