Noteworthy new listings….
The $72.5 million price isn’t the only thing that pops the eyes at 2535 Sycamore Canyon Road, a 28-acre Montecito compound with “a newly built main residence and guest house, a remodeled cottage and gate house, and a carriage house and barn.” The Hollywood Regency interiors evoke Auntie Mame on a bender, but surely any buyer at this price point would prefer his/her own decor and scrape with abandon. We’d need to see a floor plan to know whether whims were indulged at the architectural level. UPDATE: The photos have been removed at the request of the listing agent, but of course you can find them on Zillow, Realtor.com, Redfin, Movoto, and many other websites.
················
Designed by Winsor Soule and built in 1917, 1188 Summit Road ($7.25 million) has an innate elegance and curb appeal out the wazoo, as you can see in the photo at top. (The sprawling oak in the middle of the motor court is magical in person, as I discovered on a pre-listing tour.) The place needs updating inside and out, but I see the potential for this to be the crown jewel of the very hot Coast Village neighborhood, and I wouldn’t be surprised if it went for well over ask. P.S. In one of those marvelous old-house touches, the windows in the upstairs sunroom slide down into the wall.
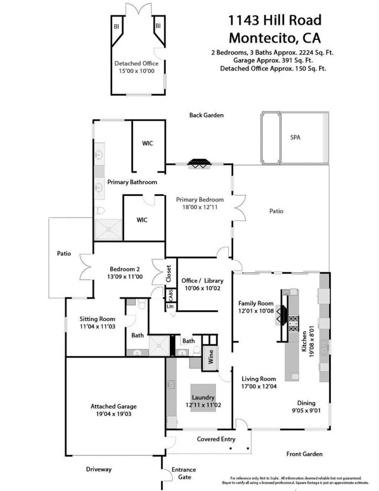
The prime appeal of 1143 Hill Road ($7.295 million) is the proximity to Butterfly Beach (although I’m not sure I understand the point of “Private Gated Access” to the beach when public access is nearby…). The property itself is rather small—a 2,374-square-foot house and a shed of an office on a quarter acre—for a price in the 7s. While there are definitely charming moments, the floor plan is tricky, with the main living spaces clumped in one room and the rest carved into a warren.
In many ways, 4135 Lago Drive ($4.5 million) shows what can be done with a typical midcentury Hope Ranch house, even if some of the color choices are on the wrong side of bold. (And what’s up with the dirt yard?) Love the surfboard shower, though.
Great Riviera views at 1105 Las Alturas Road ($4.375 million), but for a house “rebuilt” in 2010, some of the interiors sure feel dated. If the floors can’t be easily replaced, I’d buy rugs that practically go all the way to the wall.
While you’re renovating 34 Rubio Road ($2.375 million) on the Lower Riviera, you might want to reconfigure the lower level, because five bedrooms and two-and-a-half baths is no recipe for happiness. Still, the upper-level rooms have a terrific view.
The interiors feel just right at the 1930 three-bedroom 3020 Puesta Del Sol ($1.8 million) in San Roque. A little more effort outside could really complete the package.
Nearby 715 N. Hope Avenue ($2.3 million) is a 1918 cottage with neat period details and a kitchen and bathrooms that don’t want to be redone—a rarity at any price point. If it were mine, I’d find space for a dining table; do the residents exclusively eat at the kitchen island?
Rosemary Lane is a sweet little street with storybook Moody Sisters cottages—but 28 Rosemary Lane ($1.595 million) is not one of them. There’s potential, but I don’t know if it’s worth what you’d have to put into it.
And a few others worth checking out:
••• 802 Willowglen Road ($1.825 million): Nicely renovated in upper San Roque.
••• 369 Canon Drive ($1.95 million): Another San Roque house; this one wants new a kitchen and baths.
••• 3860 Sterrett Avenue ($1.795 million): Ditto.
••• 353 Sherwood Drive ($1.725 million): A compelling argument for hiring a professional photographer.
••• 1674 Franceschi Road ($2.55 million): Wants updating across the board (below).
Love real estate? Sign up for the Siteline email newsletter.

























































What’s happening at Mackenzie market