••• It’s like hyperlocal HGTV: “My name is Laura Rice. I was a product development designer and trend analyst for a large corporation. I recently purchased this home in Montecito [above] for 2.675 over FaceTime with no contingencies! Follow along as I flip this house into my dream Mediterranean styled home!”
••• Two items of note from Hayes Commercial Group‘s second-quarter report: “127 W. Canon Perdido Street (previously occupied by a dry cleaner and a gym) was purchased by 19six Architects for its own use.” That’s it pictured at right. And: “Three tech companies have taken steps this year to reduce facilities expenses as they incorporate remote work into their operations: AppFolio, Procore, and Invoca have offered 132,000 square feet combined for sublease.”
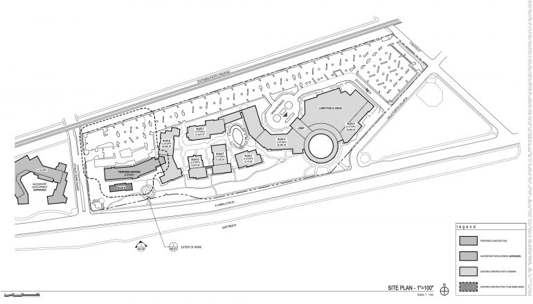
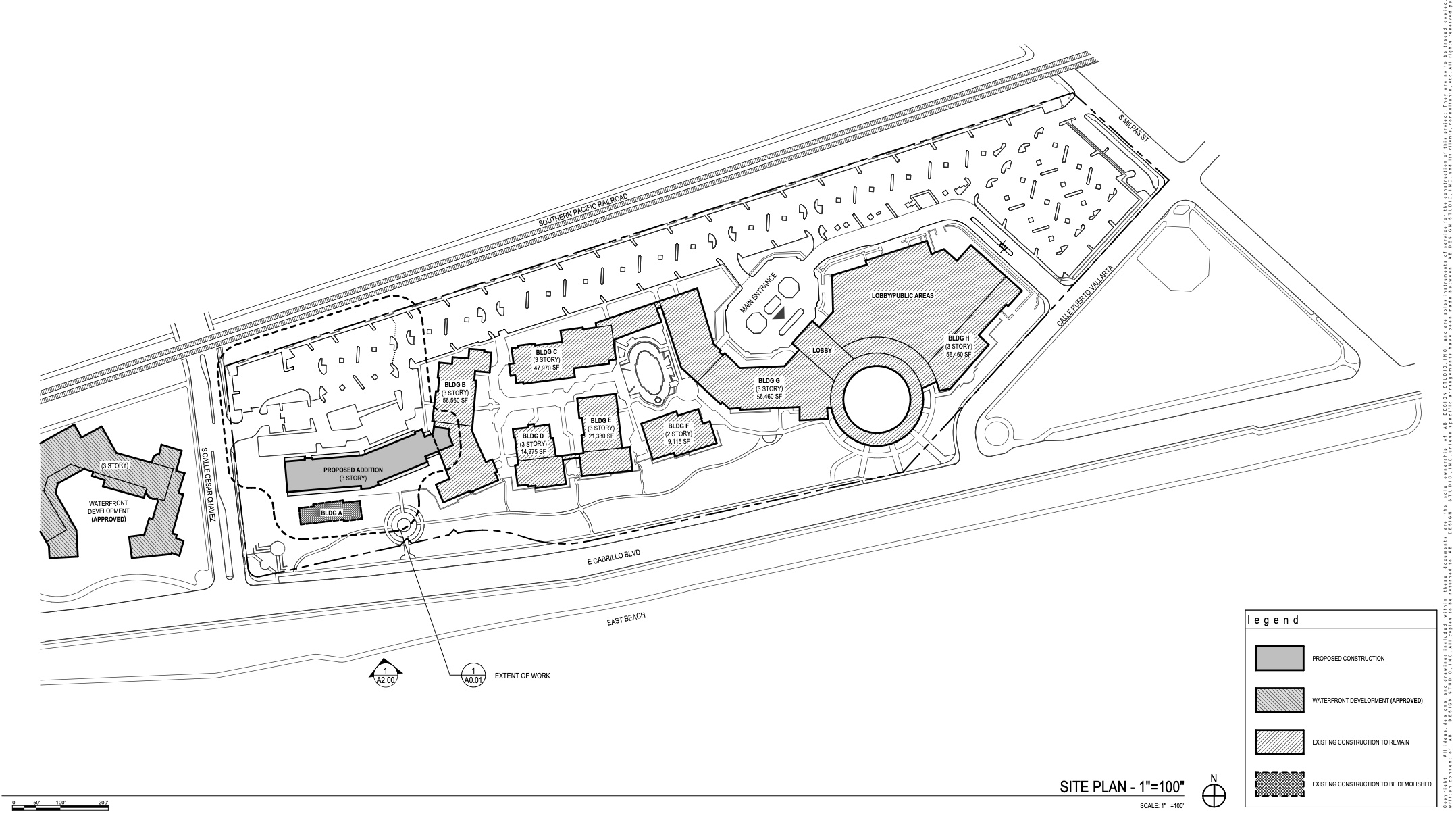
••• The Hilton Santa Barbara will present expansion plans to the Historic Landmarks Commission on Wednesday: “The project consists of a 48,400-square-foot addition to the Hilton Santa Barbara hotel, to allow for 80 additional guest rooms”—the hotel currently has 360 rooms, so that’s an increase of nearly 25 percent—”an adult swimming pool, spa, outdoor fire pit, lounge area and bar. The area of work is proposed to occur in the northwest corner of the parcel, toward South Calle Cesar Chavez and E. Cabrillo Boulevard.” I don’t know if I’d call that the northwest corner.


••• In other hotel news, the hospitality market is so hot that even an unbuilt one got bought: someone paid $7.4 million for 926 Hutash Street, between the 101 and the train tracks, where a 111-room hotel has been in the works. I should point out that neither this nor the Hilton expansion were included in last April’s roundup of new hotels in the works.
••• Local swimwear company Lagoon Designs is opening a shop “two blocks from the beach” in Santa Barbara, which almost certainly means the Funk Zone.
••• From Edhat: Today and tomorrow, Magic Castle Cabaret on Los Patos Way is selling “items you’ll laugh at and others you’ll ooh and ahh over. It’s a case of everything from the ridiculous to the sublime. Owner Arlene Larsen has said she’s pulling out all the stuff from four different storage places and has IRL created a sale with truly, something for everyone. Of special note, she hopes local theatre companies, seamstresses, costumers, restaurants, special events companies, and party planners will come see what’s in stock and be able to get the most use out of the inventory to be found this weekend. Did we mention there’s free popcorn and the bar opens at noon?”
••• Coming to UCSB Arts & Lectures to speak with Pico Iyer: Jennifer Egan (whose latest novel, The Candy House, is dazzling); Tracy Kidder; and the incomparable Isabella Rossellini.
················
Sign up for the Siteline email newsletter and you’ll never miss a post.


















Comment: