Noteworthy new listings….
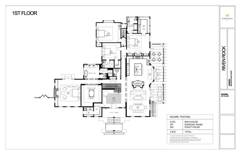
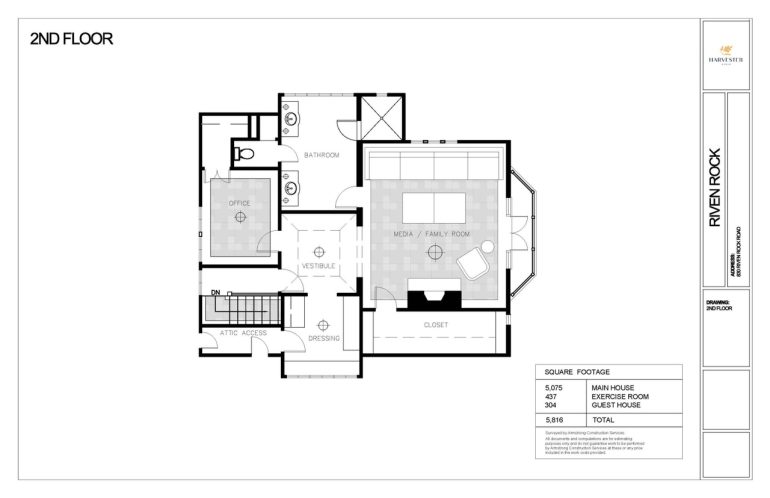
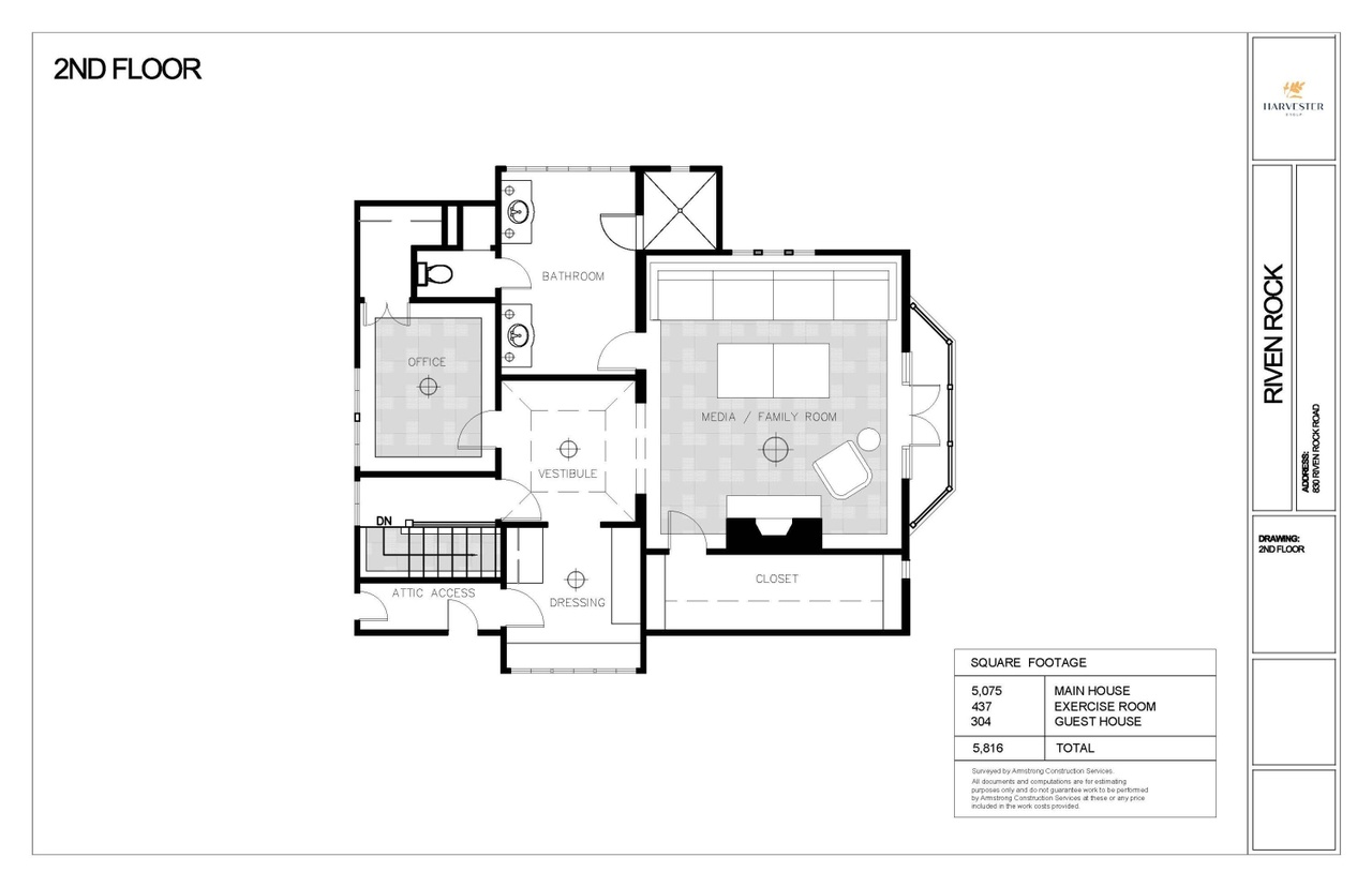
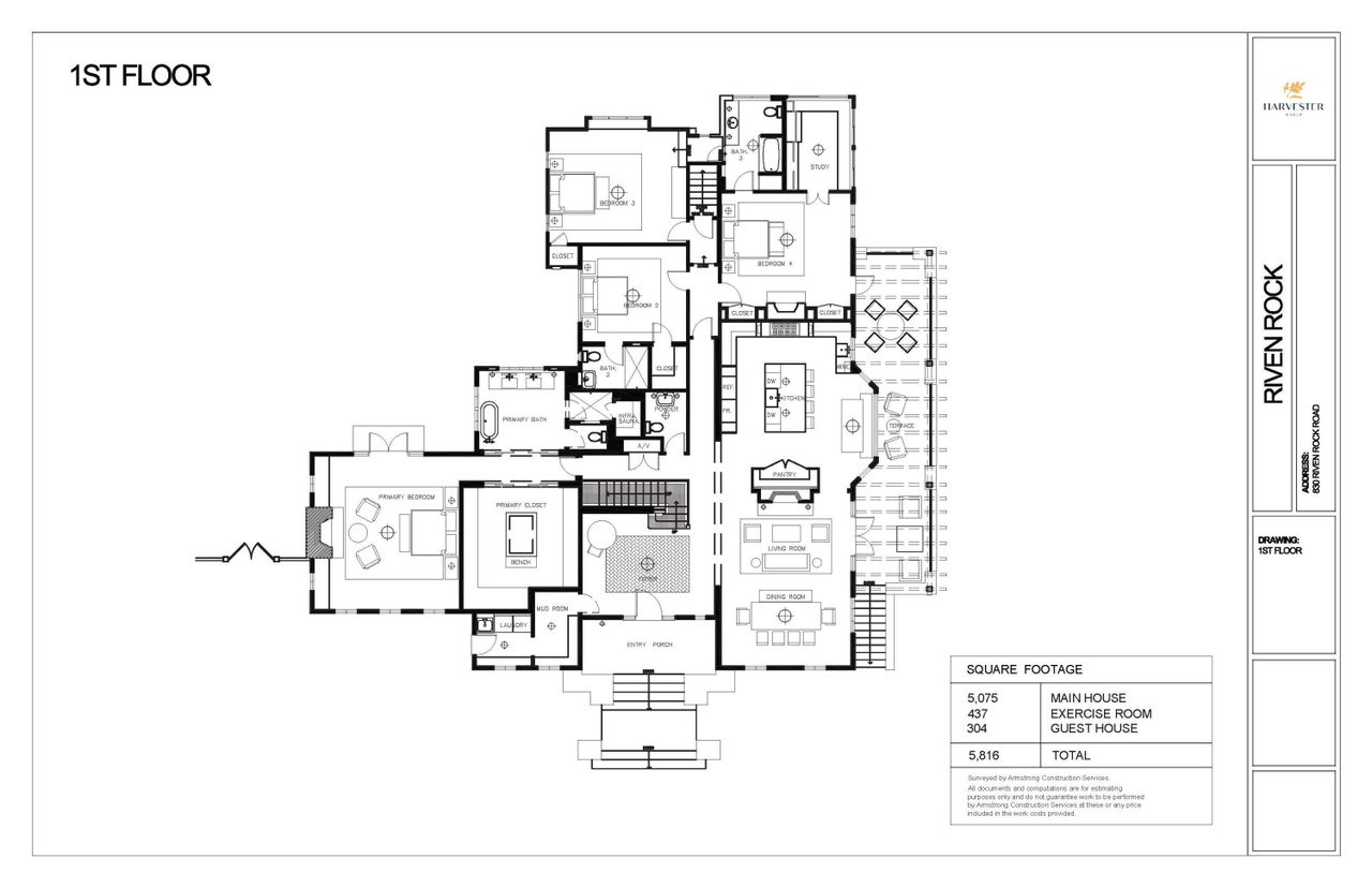
The 1902 house at 830 Riven Rock Road ($14.95 million) was purchased for $7.3 million in April 2021, and now it’s back for an ambitious flip attempt. The interiors look much improved, and I have no bone to pick with the flag-lot location. In order to make room for a big ground-floor primary bedroom, however, the kitchen got squeezed in along with the living/dining room and the family room got moved upstairs—so all communal space on the ground floor is essentially in one large room. The guest house remains as adorable as ever.
················
On nearly two acres on the back of the Riviera, 2010 Las Tunas Road ($4.585 million) is the 1957 house that architect Peter Edwards built for himself. Unlike many midcentury properties that come on the market, it’s just about done with a top-to-bottom renovation, including enclosing a breezeway, so it’s in turnkey condition. I wouldn’t be surprised if it crested the $5 million mark—demand for midcentury architecture has been in strong demand.
On a long lot between E. Mission and E. Pedregosa, 1915 Santa Barbara Street ($3.495 million) is a 1926 gem by Joseph Plunkett. Whitening up the walls would go a long way.
Who knew there was a 1935 Tudor house in the Shepard Mesa part of Carpinteria? With leaded glass windows and marvelous stonework? 6818 Shepard Mesa Road ($8.45 million), 5,171 square feet on 13 acres, certainly boasts room to spread out; that said, the upstairs layout is not exactly how we live today.
WIth a price of $3.15 million, 660 Orchard Avenue is a rarity in Montecito. The house will go faster than you can say “.17 acres.”
1060 Las Alturas Road ($3.149 million) is a 1952 four-bedroom just itching to be restored to its midcentury glory, although the floor plan poses challenges. Not sure I’d want the primary bedroom right next to the front door.
The $3.595 million price being asked for 627 Ricardo Avenue is surprising for Alta Mesa, but the contemporary, monochrome interiors will probably appeal to a lot of people; the property is walkable to Lazy Acres; there are lovely views; and—the biggest justification for the price—only three other Mesa houses are currently on the market.
“Originally envisioned in 1946 as a seven-cottage dude ranch for riders headed to the nearby Skofield property where the Rancheros Visitadores camped, El Rancho Hacienda is now a private 4.59-acre enclave of unique adobe-style cottages held in co-tenancy between owners.” One of the casitas, 493 W. Mountain Drive, is now being offered for $2.295 million. It has three bedrooms, two bathrooms, and perhaps a smidge too much historical charm.
And a few others worth checking out:
••• 4464 Via Alegre ($7.6 million): Wacky Hope Ranch contemporary went into escrow as soon as it hit the market.
••• 312-314 E. Figueroa Street ($4.5 million): Three-bedroom house with three rental units.
••• 800 Rockbridge Road ($3.65 million): 1.52-acre lot in Riven Rock.
••• 3 Saint Francis Way ($2.495 million): Appealing moments but right on N. Ontare Road.
••• 2578 Banner Avenue ($2.725 million): “Freestanding condo home” at the end of a Summerland cul-de-sac.
••• 324 El Monte Drive ($2.45 million): Mesa house wanting an update.
••• 522 E. Sola Street ($1.795 million): 1915 Craftsman bungalow (below).
Love real estate? Sign up for the Siteline email newsletter.





































































For 15 million you get to eat formal meals in your family room? New lows.
I always wonder, when I hear of Riven Rock, if the old McCormick estate is still there or if it was torn down. TC Boyle wrote a book, aptly titled Riven Rock, about that whole saga but it’s been a long time since I read it. Interesting little tid-bit about local history.