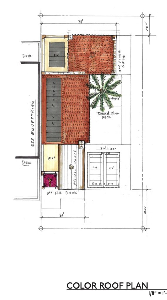
••• The February 1 agenda of the Historic Landmarks Commission includes a new Jeff Shelton building at 225 Equestrian Avenue, the one-block street just north of Anapamu Street, between Santa Barbara Street and Garden Street: “Proposal to demolish all existing onsite structures, and construct a new three-story mixed-use building comprised of a 4,688-square-foot single-unit residence, a 656-square-foot Accessory Dwelling Unit, a 500-square-foot commercial office, and 530-square-foot attached garage.” Don’t let the demolition get you down; what’s there now is pretty drecky.
And you have to love a floor plan that includes a dedicated ping-pong space.
••• The HLC’s consent agenda, meanwhile, includes fencing in the Plaza de Vera Cruz park on E. Haley Street: “Proposal for a safety improvement to add 730 linear feet of perimeter fencing, 5’-9” in height, to secure the park when not in operation. The project includes a new ornamental iron gate, 11 feet in height, with stucco columns, three new pedestrian gates, and one maintenance vehicle gate, with concrete aprons. Existing bollards and chain situated along Plaza Vera Cruz Alley would be removed.”
••• Three new shows at the Santa Barbara Bowl: Billy Currington (May 6), Little Big Town (July 15), and Young the Giant (August 18).
••• Press release from the city: “The Santa Barbara County Public Health Department issued a ‘beach closure’ notice for all recreational water contact at East Beach within one-quarter mile of the Sycamore Creek outfall in response to a spill of untreated sewage reaching ocean waters along this beach shoreline.”
••• “I biked to the recently built Romero Canyon bridge on Bella Vista Drive, and it’s reft of every bit of rebar and concrete,” reports J. “Nothing is left. My question is who is used their engineering degree to dare the great mountain with this feeble attempt at a bridge? And will we have to wait another half decade for replacement?” UPDATE: J. went back to take the photo below, and had this to add: “The concrete and rebar bridge may still be intact, the water just washed out around one side of the bridge.”
••• Coming to 4410 Hollister Avenue (next to European Deli & Market): “Acorn and Oak is a boutique studio and wellness center dedicated to improving your fitness, longevity, performance, and recovery. We offer a range of recovery, longevity and performance services. Our facilities include personal training, Foundation Training, group and private outdoor hybrid saunas, group and private cold plunges, cryotherapy, red-light therapy, a hyperbaric chamber, and private showers.”
••• Opening February 2 at Thomas Reynolds Gallery: “the inaugural exhibition of a new group of [13] Santa Barbara women artists who call themselves Western Edge. It’s a powerhouse creative collective of established artists, many of whom have known each other and collaborated together for years. Now they have joined forces to present a broad spectrum of realist and abstract work, including paintings, assemblage, ceramics and sculpture.” All but one artist is participating in the show. Below: “Efflorescence” by Dorothy Churchill Johnson.
Sign up for the Siteline email newsletter and you’ll never miss a post.



















Wish the City could erect some of that 11ft fencing in certain parts of the Country-you know- to keep it safe during non business hours…..
I had to look up “drecky,” I lived in that neighborhood in the late ’80’s and I love the old buildings. There were others back then it was the coolest half block in town.
YOU are correct Dan O. I love the drecky and cool. I lived and worked downtown near the Arlington in the 80’s and actually sat in that little glass booth selling movie tickets at the theater!! A studio apartment with a Murphy Bed was a bit of heaven and in the best city ever. I am sure in another 100 years someone will be missing a Shelton building as it gives way to the new cool. You still can not get any cooler than the past and we keep losing it little by little. I also lived in the funk zone when it was funky. Warehouse loft, illegally, super cool. I always vote to keep it “drecky”.
Equestrian St. is where they would shoe horses and store carriages bitd. that’s why that pink building is so dated. that street also has a lot of Barry Berkus buildings so it is fitting that Jeff gets one nearby.
It’s also the street where the late, great artist Glenna Hartmann used to live❤️