••• “I’m loving the pianos placed on State Street last week,” emailed D. “People from all walks of life playing morning and night. Wishing they would stay forever.” Every year I’m a little surprised to see how many people who appear to be homeless—it can be hard to tell in Santa Barbara—play the piano well. Related press release: “The third-annual Masq(p)arade! performance progressive will take place on Friday, October 20, with shows every fifteen minutes from 5:30 p.m. to 8 p.m.,” starting at State and Carrillo. “This whimsical progressive-style performance parade showcases a series of dynamic piano-based performances. […] These bite-sized performances engage audience members through innovative presentations involving playful masks and fancifully-painted pianos. The event is free to the public, with a brief intermission between acts to allow participants to progress up State Street to enjoy the entire performance series.”
••• Palma Colectiva, in Victoria Court, is taking over the Domecíl space (once it moves to the Punch shop on State Street): “We will be moving our retail there for a curated wellness and mindful shop with a clean beauty apothecary and pantry, esoteric literature, ritual goods, and ceremonial wear. We will be keeping our current studio for classes and workshops and expanding our services into holistic facials, intuitive healings and massages, Reiki, and wellness circuits.”
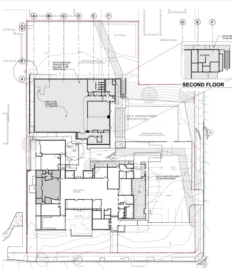
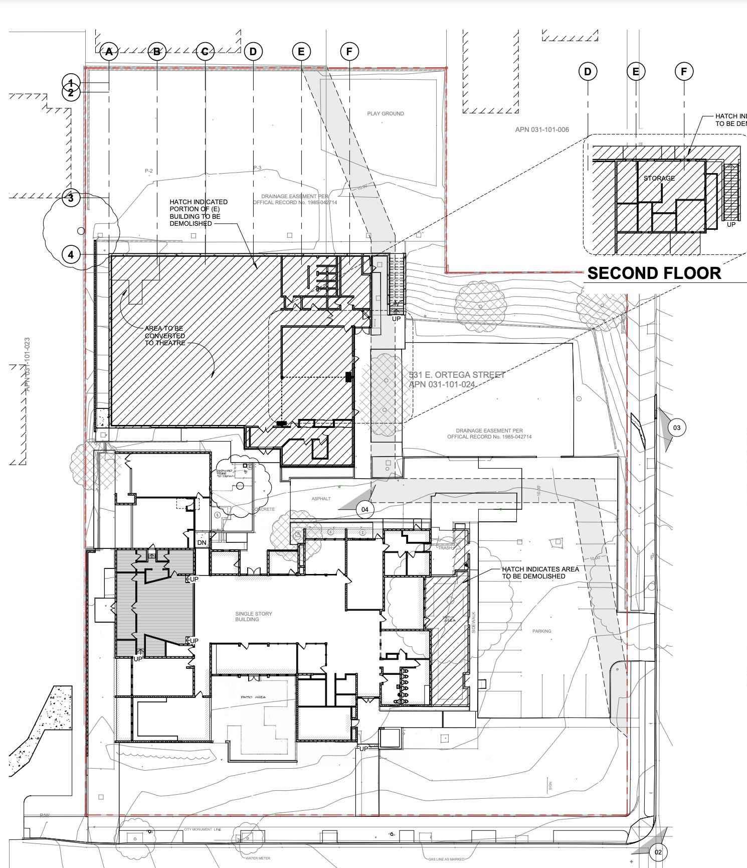
••• The Historic Landmarks Commission’s October 11 agenda includes info on Providence School‘s plan for the former Girls Inc. building at 531 E. Ortega Street (at Salsipuedes). Looks pretty handsome to me.
Listed on the Historic Resources Inventory, designed in 1964 by Robert Ingle Hoyt in the Midcentury Modern style. Proposal to redevelop the existing site to accommodate a Junior/High School campus for Providence School. The project involves additions and alterations to the existing single-story main building, demolition of the existing gymnasium and construction of a new 10,500-square-foot gymnasium, a new 4,969-square-foot two-story building comprised of a theatre, library and chapel, and a new 4,244-square-foot two-story building comprised of additional classroom and office administration space. The project includes alterations to the existing surface parking lot to accommodate a total of 40 uncovered vehicle spaces, new bicycle parking, grading, and landscape/hardscape improvements throughout the site.

••• On October 13, ARM Studio will host three dance performances at its space on De La Guerra Plaza. It will “feature the works and process of Natalie Oleinik (France), Chloe Roberts (New York), and Brandon Whited (Santa Barbara) who will stage live excerpts of their upcoming dance works, followed by a lively post-performance discussion. Refreshments will be included.”
••• Mad Fitness’s hiatus appears to be permanent; the studio is for lease.
••• Here’s my annual plea for you not to use fake spider webs as decoration outside your house. Birds get trapped in it. [Update 10/15: The homeowner whose house was in the photo said he’d relocate the webs and asked if I’d take down the photo, which seemed like a fair trade.]
················
Sign up for the Siteline email newsletter and you’ll never miss a post.


















The Milpas trees are beautiful, and I do find it odd that the plan must involve removing the trees?? I guess I assumed that engineers and designers know how to work with / around trees?
you might want to avoid wineries during the times grapes are on the vine- they net the vineyards and small song birds to hawks & eagles are routinely caught and fight to their demise to get free.
They are also allowed to kill any animals eating their fruit- doe with fawn, bear, you name it- look up depredation permit. CHEERS!
What’s your source of birds being trapped? I’ve never seen a local story about birds trapped in this webbing.
Edhat has covered this – and it’s easy to find credible sources on the subject using google or your preferred search engine.
https://www.edhat.com/news/fake-spiderwebs-can-entangle-wildlife/#:~:text=Wild%20animals%2C%20especially%20small%2C%20fast,that%20could%20snag%20wild%20animals.
I seriously can’t believe you cited Edhat. . . .
My own eyes Dan. I lived on the eastside of the SYV for 22 yrs- Camp Four, Brander, Happy Canyon all within 5-10 minutes of my mailbox. I’ve seen birds tangled and rolling – and the best you can do is call the winery and hope for the best
Maybe you weren’t talking to me- sorry if not.
I have my spider webs up- across my front window- no birds yet and it looks BITCHEN! Love the kids walking to and from school think so too!
If Edhat isn’t a good source, a California post ( not hyper local) on the Santa Clara Audubon society might be.
https://scvas.org/get-informed/a-bird-friendly-halloween#:~:text=Are%20your%20Halloween%20decorations%20safe,for%20a%20wildlife%2Dfriendly%20holiday.
This is so great. I was the one who painted the top piano with the creatures on it with the stump. It was such a great opportunity to paint with several artists and even better to have them all out on State Street and being played.!!! I hope I can do it again sometime!!!