••• According to the agenda for Thursday’s meeting of the Historic Landmarks Commission, the plan for a big apartment complex at 410 State Street (at Gutierrez) has been updated to include an outpost of The Pad, a 24-hour climbing gym with locations in San Luis Obispo (pictured above) and Henderson, Nevada.
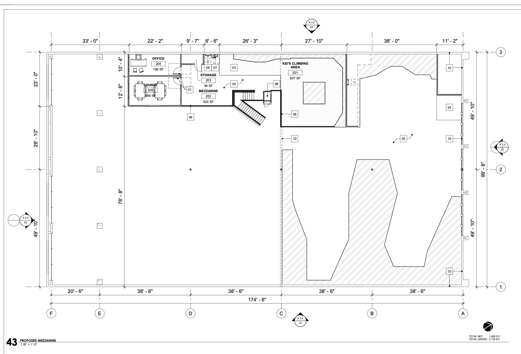
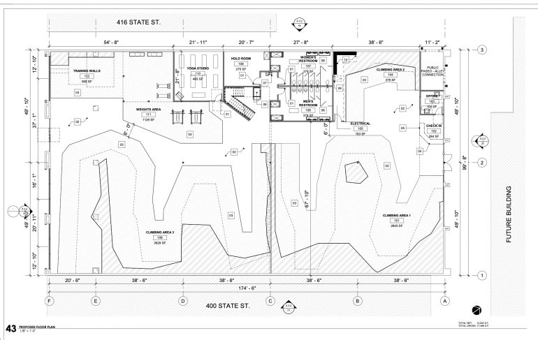
Proposal for an upper story addition at a non-historic structure in El Pueblo Viejo Landmark District to accommodate a new climbing gym. The project consists of the removal and lift of 7,734 square feet of the existing roof and framing structure to construct a new 1,856 square foot mezzanine.
Last August, the News-Press described the plans for the complex: “This new development involves retaining and modifying the approximately 17,150 square-foot building at 410 State St. and retaining the approximately 6,800 square-foot building at 409 Anacapa St., a voluntary lot merger to combine the three parcels, and construction of a new 84-unit, four-story Priority Housing project over the east parking lot.” The climbing gym will be in the building where the Staples store used to be (and Reality Church has a one-year lease). It certainly makes for interesting floor plans.
••• This Saturday, April 17, the Montecito Trails Foundation is selling merch outside the Montecito Bank & Trust on Coast Village Road.
••• Last week’s Where in Santa Barbara…? post (right) proved to be a stumper, so I updated it with the answer.
••• On Saturday, April 24, from 11 a.m. to 4 p.m., Folly on Santa Claus Lane is hosting an open-air pop-up market with a bunch of vendors. Ten percent of all sales go to the effort to stop development in the San Marcos Foothills.
••• Warnings that look like parking tickets have started being placed on cars on Riven Rock Road, near the Hot Springs trailhead.
••• M. spotted an amusing Montecito rental opportunity posted on Craigslist. Well, it’s amusing to those of us who aren’t looking for a rental.
Never miss a post: sign up for the Siteline email newsletter.



















Comment: