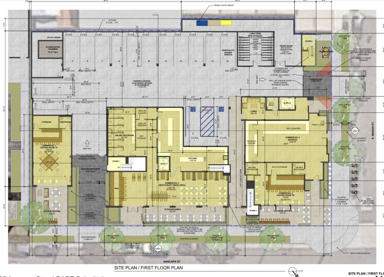
••• The big mixed-use development at 35 Anacapa in the Funk Zone—different from the one involving the block with the Dart Coffee Garden—is back in front of the city’s Architectural Board of Review today (March 20). While the design has been tweaked since the project first appeared in the fall of 2021, the scope is not substantially different. I don’t understand the two-hotel part; in this iteration, they share a lobby and other amenities, but there are two manager’s units. (And just six rooms each?) In any event, I boldfaced a few items of note, and bear in mind that while the hotel(s) require parking, the other uses (in this instance) do not.
A new three-story building (27,386 SF) on a 0.51-acre vacant lot located at the southwest corner of Anacapa Street and E. Mason Street in the OC zone. The project will include 15,741 SF of non-residential area, including 12,175 SF of commercial area and 3,566 SF of hotel area. A total of 14,993 SF of demolition credit is available on the project site. The proposed building includes two 6-room small hotels (total of 12 hotel rooms, +/- 300 SF each), hotel lobby/amenities/back-of-house, and other commercial services including: corner market/bodega, restaurant, and tasting rooms. A total of two residential manager’s units (+/- 600 SF each) will be provided for the two hotels. The project proposes a total of 15 parking spaces, including 2 ADA spaces, for the required 12 spaces for the hotel rooms, pursuant to State of California State AB2097, with no minimum requirements for parking on commercial uses within 1/2 mile from a Major Transit Stops.
••• The Coral Casino was on the agenda for last Wednesday’s meeting of the Montecito Planning Commission (which was postponed because of the weather the day before). The agenda didn’t say what exactly the discussion would be about, so I looked into it. As expected, Biltmore guests will no longer be allowed access to the club, and the restaurant, Tydes, will be opened to the general public. Moreover, the number of members of reciprocal clubs (at least 75 miles away) to be allowed in will be cut in half, from 120 to 60. And across the street, the Biltmore will be reduced to 192 hotel rooms (the hotel is currently allowed to have 229, but apparently only has 206), to be “accomplished with interior alterations only to combine adjacent separate guestrooms into singular, larger guestrooms (including suites and junior suites).”
••• Hozier plays the Santa Barbara Bowl on October 28.
••• The folks at the Santa Barbara Botanic Garden invited me over for a chat, and afterward we explored the Backcountry area for kids that debuted last June. It was pretty cool! There are boulders and logs to walk on, ropes to clamber up the hillside, a hedge maze, sculptural structures like the one below, and more.
••• Presale memberships to The Pad climbing gym, opening in Magnolia Center in May, go on sale this week: “You’ll be among the first members and get a sweet gift card—a big one. We’re talking triple digits here, folks!”)
••• The third-annual Santa Barbara Surf Film Festival is June 9 and 10 at the Lobero Theatre: “Our festival will showcase captivating surf cinema from incredible film directors, creatives, and surfers to feature a fantastic lineup of classic and cutting-edge feature films. A highlight of our 2023 event will be the outdoor Surf Film Festival Block Party which will host a variety of surf exhibitors, local artisans, all-day live music, bomb food and artisanal drinks.”
••• No one guessed last week’s Where in Santa Barbara…?, so here’s the answer: it’s the Adult Store on State (Gutierrez/Haley), which I’m sure you didn’t even know existed.
Sign up for the Siteline email newsletter and you’ll never miss a post.



















Anyone local knows The Adult Store! It’s been there to walk past since my actual childhood. I can still remember being a kid and it feeling a little creepy. Now that I’m an adult it doesn’t bother me what other adults find entertaining and I barely notice it, but I can imagine it’s probably still noticeable to kids; at least the storefront is toned since the ‘70s. It indirectly features on the Jeff Shelton walking tour (which I just took relatives on) because if you start at the Pistachio House and it’s storefronts, and then continue up State to Ablitt, you walk right past it (as my 93-year-old FIL pointed out). It’s now one of the oldest businesses on State St if not the oldest now that Thrifty (Rite Aid) is closed
My college friend opened up Moped City in the mid 1970’s next door to the adult bookstore. Yep, it’s been there forever. I guess Joe’s is another longstanding State st business although they were in a different location on State back then.
I’m so sick and tired of all these FoxNews-watching republitards thinking they can come in here an build whatever they want in order to fatten their wallets. We cannot take any more greenhouse gas emissions from these projects or the world will ceese to exist as we know it, but the moronnic right wingers our to stupid to know this.
Wow, take it easy on the MSM Kool-Aid. You should get out more and talk to real people rather than listen to whatever sensationalism is being spewed on TV for the sole purpose of inciting you so you keep watching/clicking and make them more money. Amazing how in the same sentence you can say “we cannot take any more greenhouse gas emissions…. or the world will cease to existing as we know it” and “moronic right wingers to stupid to know this”. Truly amazing.
Amazing hostility. Seek help and turn off your TV.
Regarding the two on one hotel project, wonder how the housekeeping staff will reply when asked in a common area for something by a guest and it is the “wrong” staff. % of potential rentable area for a manager is curious. Unsure if the building style will age well, the effect on surrounding future construction in acceptable style will be a let down for the zone.
The building style will absolutely not age well.
The adult book store on state and Gutierrez is where I went to Jr high!
It was the “Free School “ in the 70’s – a school without walls – a time of Peace ☮️ marches , banana bread and transcendental meditation ????
Anyone remember this random fact ?
Ahh yes, back when being anti-war, pro-free speech and supporting individual freedoms was a very liberal position, fast forward to today and now it’s a very right-wing (or “republitard” as SB Democrat puts it) position. Crazy how times have changed.
So much for consistency of the SB city architecture. The new hotel building style looks out of place and gentrified. Not saying it’s a bad design but it surely doesn’t fit in with SB.
Nancy, I agree! Why are developers/architects so intent on chipping away at the SB “look”? If they want to build random buildings that could be Anywhere USA go to Ventura or Oxnard or really any other town in California. This hotel design does not belong in SB.
Nancy – agreed. I’m curious what the ABR said in the meeting about how “un-SB” looks.
And a pool on site? Give me a break… the ocean is literally steps away.
I agree with you, Nancy. They could build it in one of several styles that are different to the everywhere-already-nouveau-“Spanish” without deviating from what’s local and fitting with the area. There are historic loft type buildings in the area as well as interestingly textured industrial buildings that could serve as inspiration. Instead they’ve gone for a cheap and no-relation look to SB, ultra 2010s, and which everyone will want to tear down a few years from now. It looks like crap and that’s me being nice.
Hi maybe I missed it but what are all those story poles for on Garden Street right before the railroad tracks starting on Yanonali. Looks like the shipping containers are finally giving way to something….but what?
They’re for the 250-room hotel at 101 Garden Street (on the west side of Garden, between E. Yanonali Street and the railroad tracks), as described at https://www.sitelinesb.com/the-250-room-funk-zone-hotel-is-taking-shape/.
Go poke around Funk Zone between Garden & 100 blk SB st…it’s all wetlands. Doesn’t Dario own 112 SB street? Is this project a Wright Family Project, a follow-up to the rejected aquarium idea?