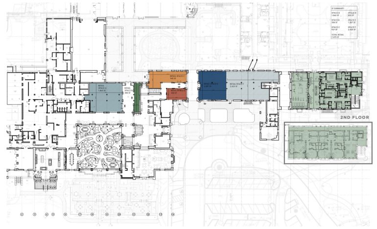
••• Thank you to the reader who sent over marketing materials for the retail leasing at the Four Seasons Biltmore. Perhaps inspired by the Rosewood Miramar Beach, the plans show seven spaces, including the two-level, 10,200-square-foot spa. (I only remember three from the previous incarnation, one of which was space A, which is getting enlarged.) No word yet on which store will be tasked with carrying Beanie Babies. P.S. Note the all-booth layout for the restaurant interior, in the lower left; I think the booths might be surrounded by planters. And there’s a large terrace grayed out below that. P.P.S. The brochure says that “upon reopening, the Biltmore enjoys a five star rating from Forbes Travel Guide, and is currently the highest priced hotel in Montecito, with a starting room rate of $2,500 per night.” Even assuming that’s a rack rate (i.e., no one pays it), it would certainly be ambitious. According to the hotel’s website, the property is “expected to reopen in fall 2024.”
••• And have you seen what the Biltmore has been doing to the land between the main building and the ocean? It’s a massive project. Any guesses what’s being built in the second photo (taken from across from the Coral Casino)? Water feature? UPDATE: “They are building a family pool with a lazy river in the front of the Biltmore,” says a reader. “The initial idea was to get the kid pool noise away from the spa, and now they are also trying to compete with the Miramar kid amenities is my guess.”
••• From November 18 to January 7, MOXI will have a “sock-skating rink” on the roof. I’d pay extra for an adults-only option.
••• Athleta has closed its State Street store, as expected; surprisingly, Vuori moved one block south into the space. The “for lease” sign on the building is old (and not for Banana Republic next door).
••• Highline Adventures, the new zipline park in the Santa Ynez Valley, has started its protea garden tours. They’re two hours long and cost $45.
••• Gregory Alan Isakov plays the Arlington Theatre on March 8.
••• D. asked why the Rosewood Miramar Beach resort is flying an Italian flag. According to an Independent article about the 2019 opening, the idea was to fly a Rosewood flag, but a law prohibited it. (Probably this county law.) So, says a resort rep, developer Rick Caruso decided to honor his Italian heritage.
Sign up for the Siteline email newsletter and you’ll never miss a post.



















I heard they’re adding a “lazy river” to the four seasons property and that the Bella Vista restaurant is being built out with a “jungle” theme.. here’s to hoping we can at least see some exotic animals on display?
Are you serious?
a one night stay – $2500? wowzee wow wows.
I would rather sleep on the beach than give Ty Warner$ 2,500
You might still get a $2500 bill since the billionaires around here think they also own the beach
Hey Eric!
You may already have an answer for this…. Why is it taking months to fix the escalator at SB airport… and when will it be fixed? I use the stairs regardless…. But big inconvenience for a lot of folks who can’t use stairs.
Hope all is well! Dean
Have you mentioned the small restaurant that opened on the corner of Turnpike and Calle Real. It is in the same building as Starbucks. The owner is not advertising and the menu is not for all but would hate to see it go under.
If you mean Pokewaves, yes, I’ve mentioned it a couple of times, most recently Noozhawk’s orofile in August.