••• “The Chick-fil-A restaurant on upper State Street in Santa Barbara [has closed] for 8-10 weeks […] to reconfigure a portion of its entrance and exit to reduce the possibility of cars backing out onto the street. […] A second Chick-fil-A restaurant is set to open on Calle Real near Starbucks in the Eastern Goleta Valley, at the previous IHOP site, but that project is still working its way through the planning process.” —Noozhawk
••• Crush Bar has closed.
••• Rodeo Room is now open Mondays and Tuesday nights—i.e., seven days a week.
••• New York City’s famed Eleven Madison Park will take over Caruso’s at the Rosewood Miramar Beach resort on June 30 and July 1 for an entirely plant-based menu; the price is $395 per person, plus tip and tax. And Caruso’s will return the favor in New York sometime this fall.
••• Bossie’s Kitchen is no longer passing along the 3 percent credit card fee to customers.
••• UCSB’s Daily Nexus has a long profile of Kin Bakeshop, hopefully opening soon in Noleta’s Turnpike Center.
••• Edible Santa Barbara‘s latest issue includes profiles of Motley Crew Ranch, which is doing its best to raise animals humanely, and La Super-Rica. If you’ve ever wondered how the latter does so much in such a small space, “seven years ago, [owner Isidoro Gonzalez] acquired more commercial kitchen space in a building near the restaurant.”
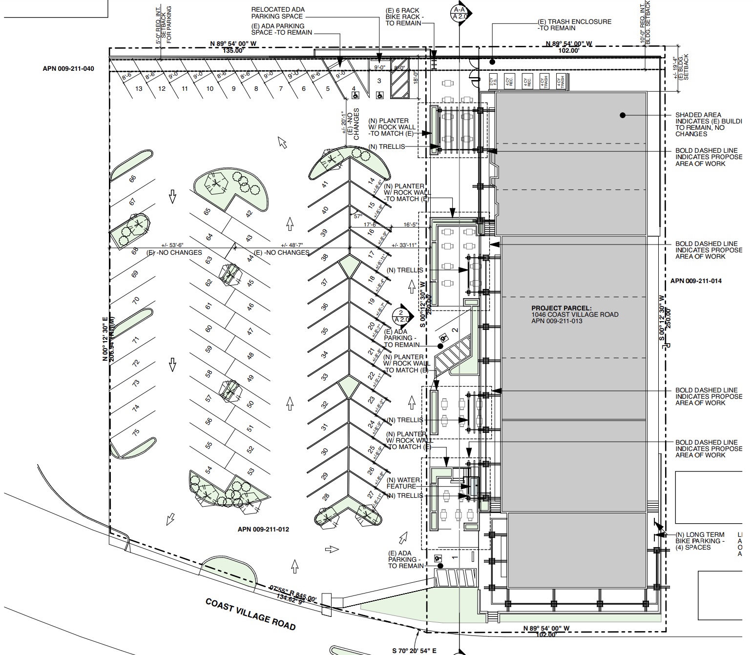
••• According to the Architectural Board of Review’s May 22 consent agenda, the Coast Village Walk strip mall is adding a bunch of outdoor seating, which will certainly benefit the restaurants (Starbucks, Sakana, Blenders in the Grass). It comes, however, at the expense of the row of parking directly in front of the building, which will put more stress on a lot that’s often close to full.
················
Sign up for the Siteline email newsletter for the freshest food news in town.


















Wow…first of all, could they have chose a worse restaurant to come here lol. Honestly, it got horrific review from Pete Wells and the last time it has any popularity prices in Montecito were less than $1,000/foot. Bring me Marea, TFL, or even a McNalley spot….but a vegan spot stuck in the past….and let’s be serious, no one in New York wakes up and says “man I wish I could eat at Carusos tonight”
It looks like it is only coming for 2 days…
According to some studies, eating a vegan diet can put you at reduced risk for some common diseases and illnesses, such as diabetes, hypertension, and heart disease. With all the meat you must eat, shocked you are even alive to see Montecito prices over $1000/sqft.
Personally, I will be eating at the Eleven Madison Park pop up for lunch and dinner both days. Chef Humm has transformed what it means to eat. His taste buds are far more complex than your tainted red meat eating ‘buds. He has been dubbed the Swiss Army knife due to his skills for cutting up plants and transforming them into life altering masterpieces. Since you likely can’t afford the hefty price tag, I’d be happy to have you as my guest for the pop-up. Let’s meet on the Great Miramar Lawn at say 7pm on July 1st?
This might be one of the silliest and most insecure comments I’ve ever read. Well done!
I’ll accept your challenge. I’ll see you on the lawn.
Santa Maria Chik busy as ever- passed a week ago at lunch- 4 cars wide and stacked! Nicest order takers, polite staff- great fried chicken.
Chik Fil A has great food; it’s really unfortunate that their corporate policy is anti LGBTQ+ and anti inclusion of all sorts. Makes it hard to enjoy the food and support the company.
Not true. OLD news dating back to 2017. Keep up with the times.