Noteworthy new listings….
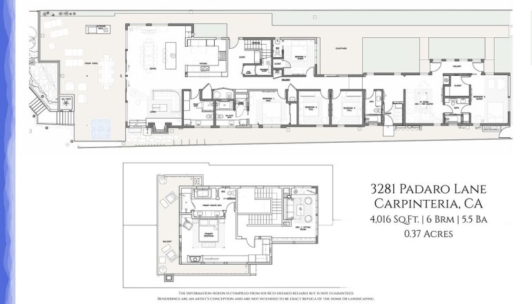
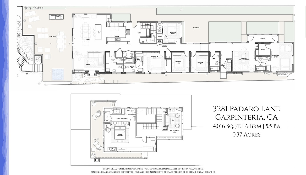
From the outside, 3281 Padaro Lane ($19.5 million) looks like it might be another 1970s Padaro house in need of an update. But inside is sharp, especially the primary bedroom upstairs, with its own deck. (Keep focused on the ocean and you can ignore the red roof next door.) Using all six bedrooms as such is unlikely—only three of the guest rooms are en suite, and another has a half bath—but with the addition of a pocket door, you could easily convert the back of the house into a separate apartment. P.S. Love the custom wallpaper in one bathroom, with family photos and mementoes. Might be weird to keep it, though.
2401 Medcliff Road ($8.4 million) is one of the 1970s West Mesa houses that were originally part of Mike Love’s compound, before they got sold off in the early 1980s. It cuts a striking figure, to be sure, and the Mesa Lane Steps to the beach are down the block. But it needs a thorough redo—take the bedroom accessed via the garage or that terrifying soffit-like thing above one of the beds—not to mention landscaping that involves plants. P.S. Is this staged?
The listing for 1020 Via Tranquila ($7.995 million) says it has been “tastefully remodeled by the current owners,” who bought the 1972 Hope Ranch house for $4 million in February 2021. While it’s refreshing to see nice non-staging furniture, the bathrooms are unconvincing. The property is 2.24 acres and includes a guest house.
I neglected to include 1965 San Leandro Lane ($7.995 million) two weeks ago for reasons not worth going into, so here it is now. The idea of a compound in the Hedgerow is appealing, even if it’s at the far end of the neighborhood, but there’s no cohesion between the small 1912 main house, the midcentury-style pool house, and the nondescript outbuilding by the entrance. P.S. There’s a hot tub inside the little brown structure at left in the first photo.
The 1973 house at 1821 Gibraltar Road ($4.495 million) in Cielito has an indisputable coolness: it’s off the street, embedded amid oaks, with photogenic rooms at every turn. The best views are in the dining room—the least-used room in most houses—and a guest room, while the kitchen and primary bedroom are in the rear. Still, there’s wow all over the place. Keep some money in the budget for window treatments or sleep masks.
While 1122 Camino Viejo ($5.2 million) can come off a bit like a millwork showroom, the rooms have gracious proportions and the backyard goes on forever. Change out the surfaces—did the primary bath only get half redone?—and you’ll have a nice spread.
A handsome Mediterranean built in 2018, 935 Coyote Road ($4.795 million) has terrific views and six bedrooms, including a mega primary. The one-acre lot is mostly hillside, however, with a neighbor rather close to the south and a vacant lot to the north.
Speaking of views, the spec reno at 2929 Selwyn Circle ($3.695 million) in Mission Canyon—the seller paid $1.8 million in November 2023—has a killer one that appears dramatically as you descend from street level. The neighbor to the south is almost close enough to touch, as you can see in the guest room photo. P.S. Least comfortable banquette ever?
Judging from the activity at the broker’s open, and despite all those stairs, 45 Rubio Road ($1.649 million) in the Lower Riviera will be snapped up quickly. It’s very cute, a two-bedroom cottage with a studio apartment above the garage.
And a few others worth checking out:
••• 18 Calle Alamo ($3.449 million): Pretty little Plunkett & Edwards house in San Roque that sold as a spec reno last July for $3.3 million; did living on an alley chafe?
••• 917 Cheltenham Road ($2.695 million): 1978 Mission Canyon four-bedroom with dual primary baths and closets, rare for that period.
••• 318 Loma Vista Avenue ($1.495 million): Adorable 1915 cottage with a mini ADU but calling the attic usable for anything besides storage is a stretch (below).
••• 4101 Mariposa Drive ($4.495 million): 1.4-acre lot in Hope Ranch; the seller paid $3.125 million in June 2021, and the listing mentions “existing plans” but not permits.
Love real estate? Sign up for the Siteline email newsletter.
















































































Is the Medcliff Rd listing price a part of a listing trend? Like the one that seems to be picking up of not citing in the homes sq footage in listings. Is this done so that ads and agents get more views? Pricing something so outrageously high that people look due to confusion and wonder? Seems like an odd marketing strategy…
Regardless, the price is obscene and the house, as well as the lot are, for lack of a better word, Fugly. With a capital F.
Personally, I love the Cielito house. It does need a little updating but like you said, it’s got the cool factor. The redwood interior is spectacular. Unless there is something hiding, it will sell quick. I really hope that the new owners dont paint over that old growth redwood. It’s next to impossible to find such high quality wood these days.
I agree about the square footage not listed trend…what is the rationale?
It’s possible that there are unpermitted/illegal additions, and so they are not listing the square footage for that reason.
To add – Yeah it’s listed as 3 bedrooms, but a portion of the garage has clearly been converted – likely not legally – to a fourth bedroom. They probably don’t want to call out the original square footage of living space, since it’s effectively larger, but also don’t want to state the square footage as including the garage, because this could cause issues down the road for either the realtor or the seller.
The medcliff landscaping is truly bizarre…. Strange people
I feel like the surest sign of a professionally staged house these days is the “mirror leaning against the wall, but not mounted to the wall” thing that seems to be everywhere, so I’m going out on a limb and saying Medcliff is not staged, or at least, not professionally staged.
The asking price on Medcliff is ridiculously high. I don’t believe it’s a strategy…feels more like a mistake.