Noteworthy new listings….
The 1925 four-bedroom at 1420 Alameda Padre Serra ($7.795 million) has plenty of old-house charm in the layout, which is single-level with the exception of the media/wine room downstairs. The home was renovated in 2020 and is in excellent condition; personally, I would’ve preferred surfaces that are less contemporary and more in keeping with the Spanish Colonial architecture. The ocean view from the living room and dining room is swell, but the main outdoor space is behind the house, away from the street noise.
And there’s even more old-house charm inside 407 E. Padre Street ($4.25 million), a 1928 two-bedroom (both upstairs) by architect A. B. Harmer. As is often the case with old Spanish Colonial Revival, light was not a priority—removing shutters and weeding out some decor would help a lot. And anyway, you’re likely to spend most of the time in the blown-out kitchen, which is much brighter. The garage in back has been turned into a guest studio; the dramatic porte cochère isn’t fully enclosed, but it’s way more fun. P.S. Is that rogue artwork in the bathroom covering a hole or something?
Bursting with curb appeal, 1808 Loma Street ($3.099 million) on the Lower Riviera was built in 1925 and is configured as a duplex, with an apartment taking up the lower level. Interiors are clean and simple, if heavy on the beige, and there’s an ocean glimpse from upstairs. What it lacks is outdoor space, besides a strip of lawn in front.
The living room at 2720 Clinton Terrace ($2.375 million), built in 1932 in Samarkand, is catnip to those of us who love character, and I just could pinch the cheeks of the breakfast nook. The bigger concern is that the two bedrooms on the main level share a hallway bath. I’d use a pocket door to convert one bedroom a true primary and send guests to the ADU-like downstairs. No one is hanging out in the xeriscaped front yard, but you could hedge off the back terrace to further distinguish it from the driveway.
1766 Prospect Avenue ($1.99 million) is an adorable 1921 cottage with two bedrooms but probably ideal for one person, given the squeeze of a kitchen. In the rear, by the single-car garage, is a guest studio. The neighbors are a bit raffish. but that’s the Lower Riviera for you.
And a few others worth checking out:
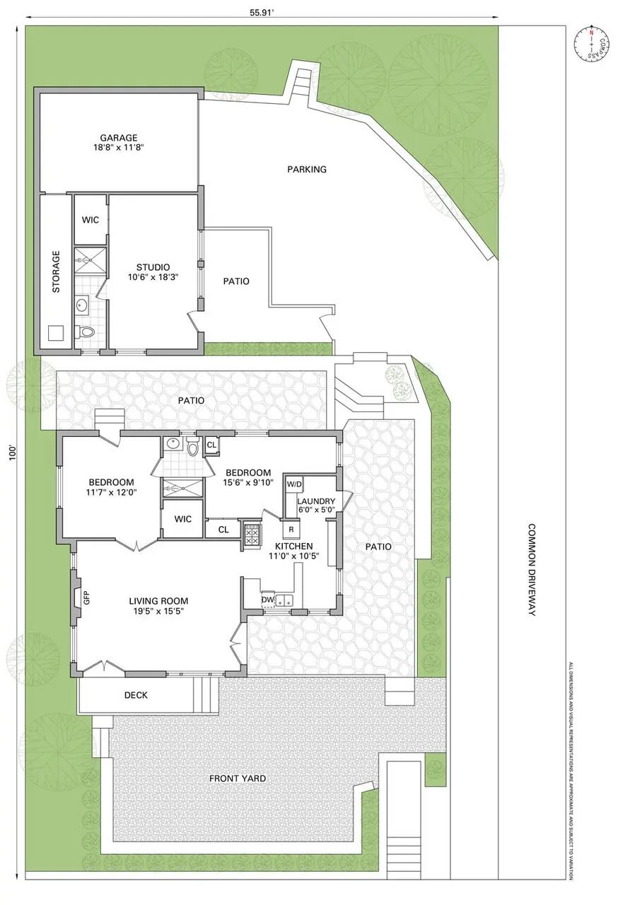
••• 1624 Shoreline Drive ($4.2 million): 1958 five-bedroom vacation rental in need of updating (below); the pass-through between the kitchen sink and the living room is fascinating.
••• 315 Calle Elegante ($5.25 million): 1988 three-bedroom along Barker Pass Road that hasn’t changed much since it sold for $4.019 million a few years ago.
••• 5139 Cathedral Oaks Road ($3.575 million): 2006 five-bedroom on a private lane that abuts Foothill Elementary School.
••• 3919 Via Laguna ($2.55 million): 2.68-acre vacant lot on the north side of a bluff and overlooking Modoc Road.
••• 2316 Edgewater Way ($2.295 million): West Mesa fixer-teardown that’s already in escrow.
••• 320 Canon Drive ($2.195 million): Floops of a 1936 fixer cottage on a great San Roque street—listed for $55,000 less than it sold for in March 2024.
Love real estate? Sign up for the Siteline email newsletter.

















































Okay, as the reader who originated the “floops” moniker I have to admit I am very flattered that you have adopted it. It’s as if I got an A+ for real estate euphemisms. Erik, I so enjoy your website and your perceptive and snarky voice- thank you!
Calling the Lower Riviera raffish?!
I will take the lower Riv over snotty Montecito any day!
Really! Whatever!
I enjoy your comments.