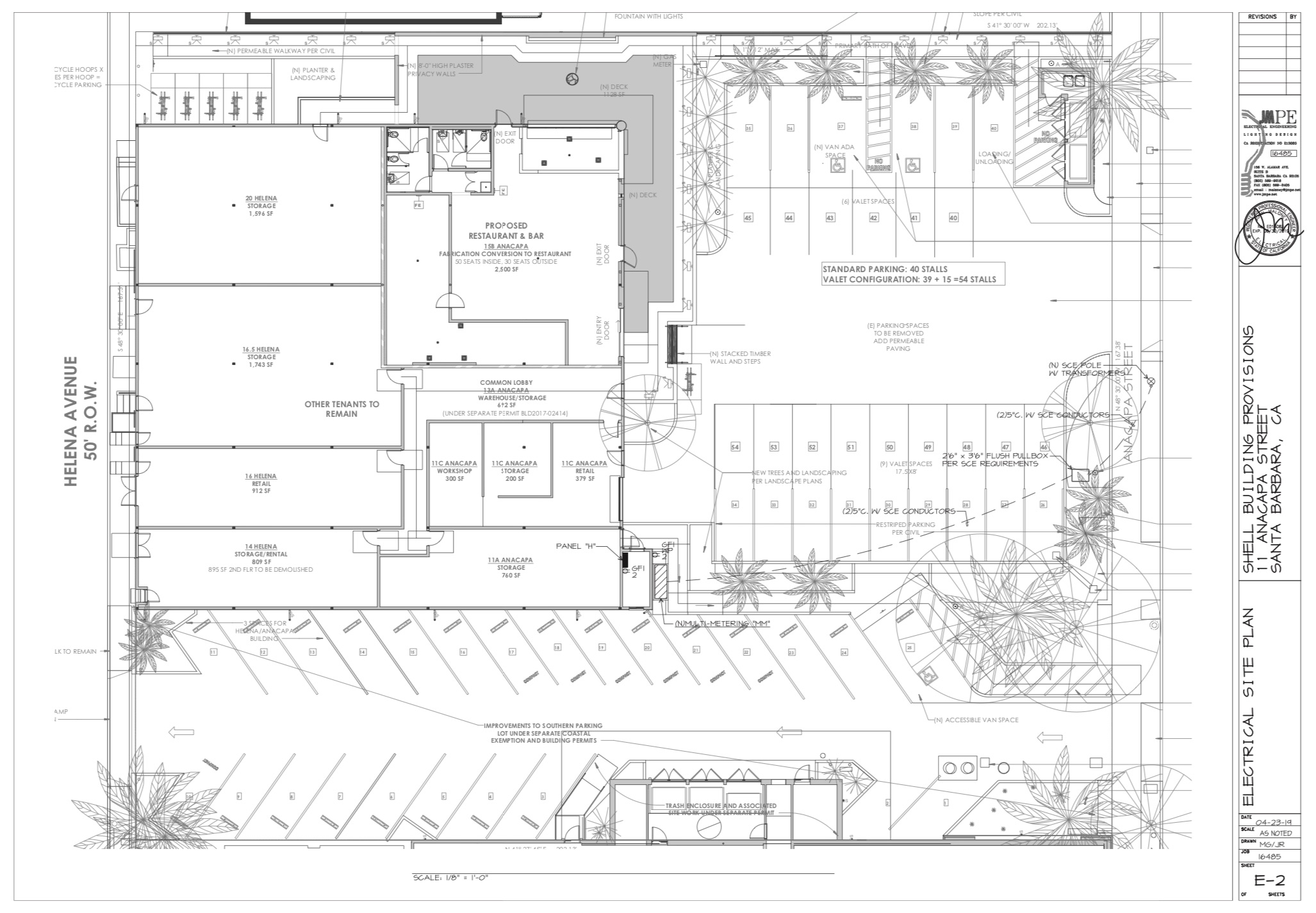
••• The conversion of part of the 11,201-square-foot warehouse at 11 Anacapa (the Helena Avenue side is pictured above) into a restaurant was in the news because of the proposed parking situation, but I don’t think we ever saw drawings of what the finished building will look like. The east and north elevations below come from the agenda for yesterday’s meeting of the city’s Board of Architectural Review, and the “Bier Garten” signage may or may not be indicative of the plan for the establishment. “The project includes conversion of 2,500 net square feet to a restaurant use with 1,834 square-foot outdoor dining patio, conversion of 1,291 net square feet to retail, demolition of 1,310 net square feet of second floor area, a parking lot reconfiguration and accessibility improvements, and a new trash enclosure and transformer.” And the floor plan shows where the restaurant is (the northeast corner, facing the parking lot) vis-à-vis the rest of the building.
••• The agenda for Thursday’s meeting of the Montecito Board of Architectural Review includes three new houses that require the demolition of existing ones: 148 Santa Isabel Lane, 1635 Posilipo Lane, and 950 Chelham Way. The owner of 938 Hot Springs Road, meanwhile, wants to build a “virtual barn.”
••• According to an email from the broker, the owner of the fabulous 1929 mansion at 165 Middle Road in Montecito is willing to sell just the lot with the house on it (and not the vacant lot to the south) for a reduced price. Below: the entry hall.
••• An announcement from the Santa Barbara International Film Festival: “Brad Pitt has been selected to receive the Maltin Modern Master Award on January 22, 2020.” He joins Renée Zellweger, Scarlett Johansson, Adam Driver, Awkwafina, Taron Egerton, Florence Pugh, and Taylor Russell as this year’s honorees.
••• From Caltrans: “Caltrans plans to replace the existing northbound and southbound San Jose Creek Bridges on US Highway 101 in the City of Goleta. These structures contain reactive aggregate which could compromise their integrity over time. The initial study can be reviewed on the Caltrans District 5 webpage. Public comments or a request for a public hearing can be emailed to Matt Fowler at [email protected].”
••• And a press release from the county: “The public is invited to attend an informational community meeting with County of Santa Barbara public safety and flood control officials and the U.S. Forest Service Burn Area Emergency Response team at 5:30 p.m. Thursday, December 19 at 6100 Wallace Becknell Road, Santa Barbara (Direct Relief International). Experts will update the public on the Cave Fire burn area, mitigation, preparations and decision-making processes in advance of the winter storm season; and engage the public in their resiliency through this and future storm seasons.” The timing is good, because we appear to be getting a lot of rain starting this weekend.


















Comment: