••• The Planning Commission’s December 21 agenda includes the widening of Highway 101 from Olive Mill Road to Salinas Street. I don’t think the plans show anything new, but if you haven’t been paying attention, they warrant a look. Of particular note: the roundabout coming to the north side of the Cabrillo Boulevard/Hot Springs interchange.
The plans also include reintroducing a southbound onramp at Cabrillo/Hot Springs…
…but the northbound onramp at Cabrillo/Hot Springs will merge into an existing lane, as opposed to being a dedicated lane of its own, the way it is now. And the Los Patos Way offramp will be removed.
••• In other Highway 101 news, the latest construction update says that the northbound San Ysidro Road off-ramp will reopen by Christmas, unless the rain pushes it back a week.
••• The Drybar coming to Coast Village Road pushed its debut back to mid-January. Presale is happening now.
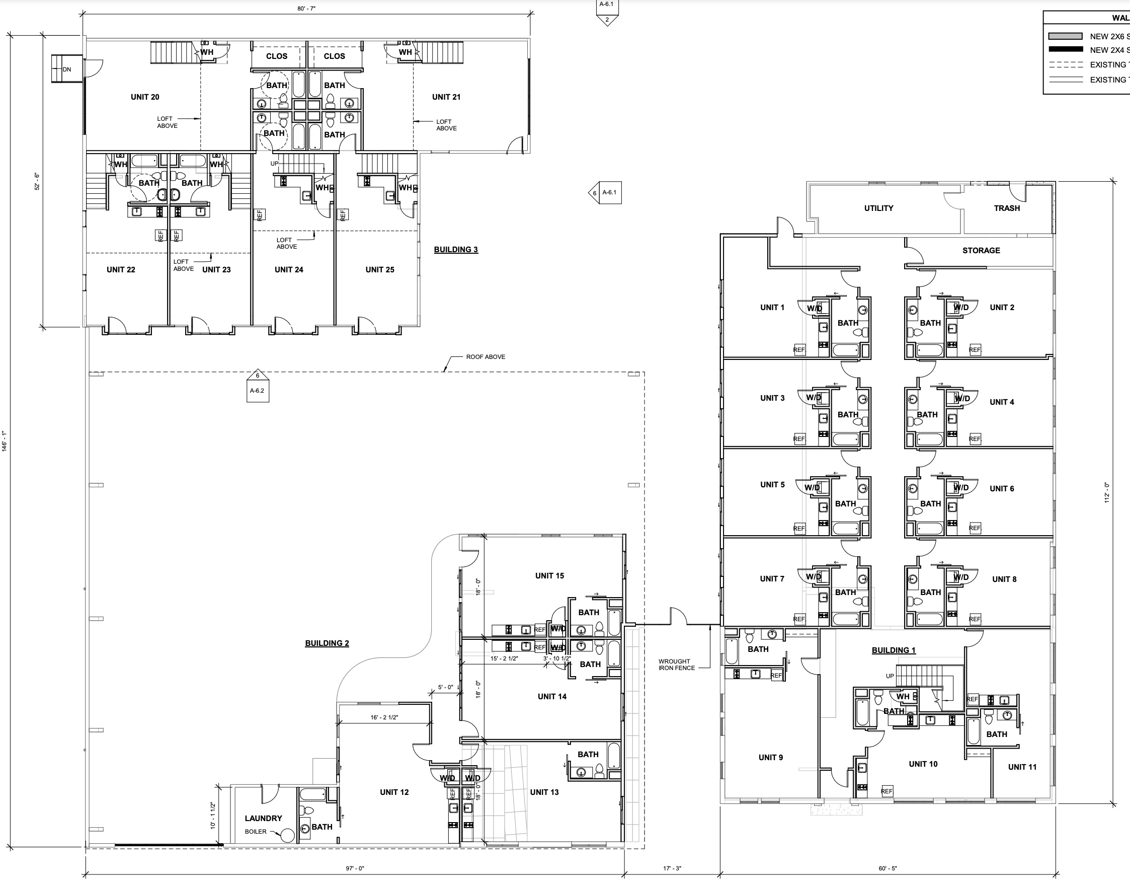
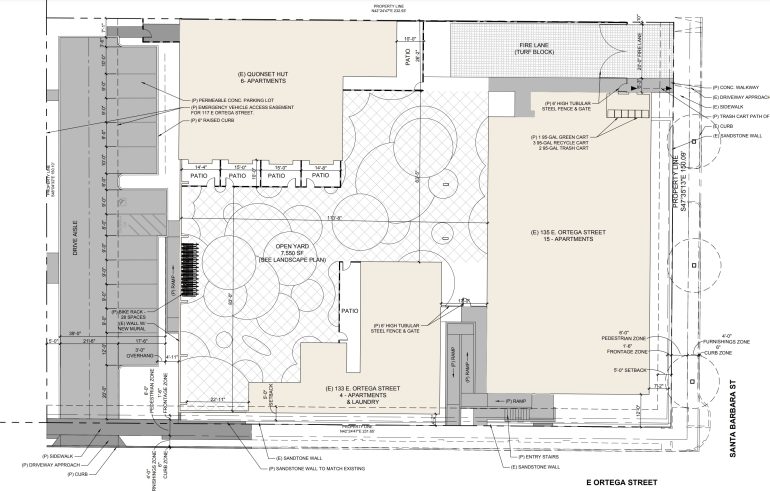
••• The multi-family development at 135 E. Ortega Street (at Santa Barbara Street) is on the Historic Landmarks Commission’s December 20 agenda: “Proposal for adaptive re-use of an existing site developed with three commercial buildings and a parking area. The project involves conversion of the existing structures to a 25-unit residential development […] with an average unit size of 523 square feet.” I love adaptive reuse but I could’ve let 133 E. Ortega (directly below) go—or at least it would’ve been nice if the plan gave the building some life at street level. As you can see in the proposed south elevation, the facade is barely being touched. Also worth noting: six apartments slated for the Quonset hut at the rear of the property.



••• According to the HLC’s consent agenda, Island View Preschool is opening in the 2020 Alameda Padre Serra building at Riviera Park, the complex across from El Encanto (and home to the Riviera Theatre). I’ll say it again: Imagine if a restaurant were there….
••• Cannabis chain Megan’s Organic Market (“our friends call us MOM”) is open at the corner of Hollister Avenue and N. Fairview Road.
••• As much as I loathe the idea of another social media account, particularly under the Meta umbrella, I signed up for Threads, because I would like to see Twitter/X die. So follow if you want. I’m still on Twitter/X, for now, because hardly any of the media/municipal accounts I follow have made the leap to Threads. And if you only keep up with Siteline via Instagram, please consider subscribing to the email newsletter, because it’s the only way to ensure you’ll see everything.
················
Sign up for the Siteline email newsletter and you’ll never miss a post.


















Whoa! The freeway work at Cabrillo and Coast Village/Hot Springs is gonna be an absolute mess — wonder how long they expect construction to happen. Also what happens when all that is closed to rebuild? Beyond all that future uggggh… the proposed double roundabout in a relative close distance to each other feels like a bit of a mess, considering the existing one backs up (often unnecessarily). I hope they have done their homework and figure out the flow. I gotta say, the on and off ramps to Cabrillo finally will make more sense (versus the Los Patos exit which never made any sense to me), but I will deeply miss the northbound Carbillo/Hot Springs “zoom” lane to the 101. Its had a good run and has been insanely useful when late to the airport, or annoyed by middle lane-huggers driving 50mph.
Why the hostility towards X?
“because I would like to see Twitter/X die” wow, sounds like you have some issues you need to work on.
Really? Not sure how anyone could have missed it, but Google Elon Musk and watch some clips from the last 2 months. It will be obvious.
Yeah, I totally trust the MSM, X’s direct competitor, to accurately represent what Elon said / did, they definitely wouldn’t selective edit something and manipulate the context. Can you provide a link to just 1 example?
Exactly!
his own comments at the dealbook summit are a decent starting point.
What comment in particular did you not like?
I would absolutely love to live in a Quonset hut. Hope others around town are similarly preserved.