Noteworthy new listings….
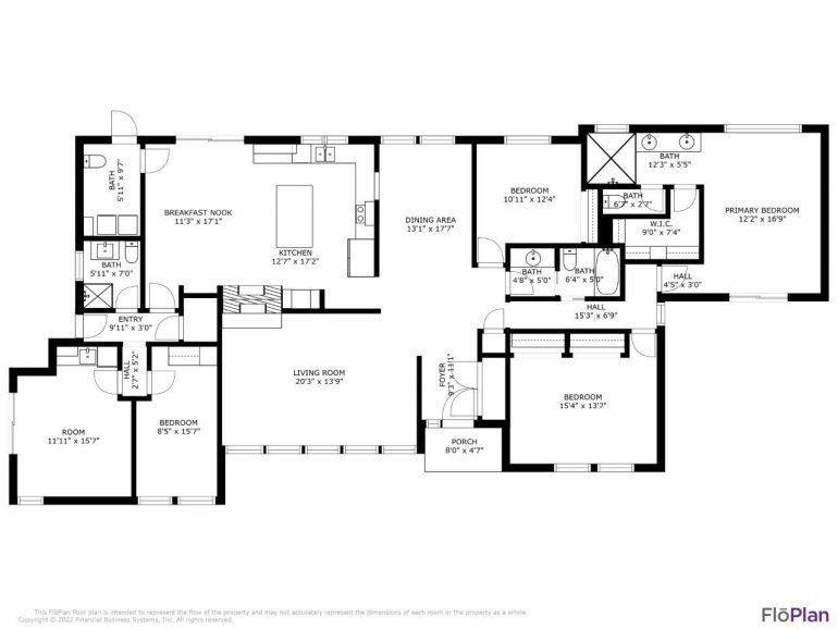
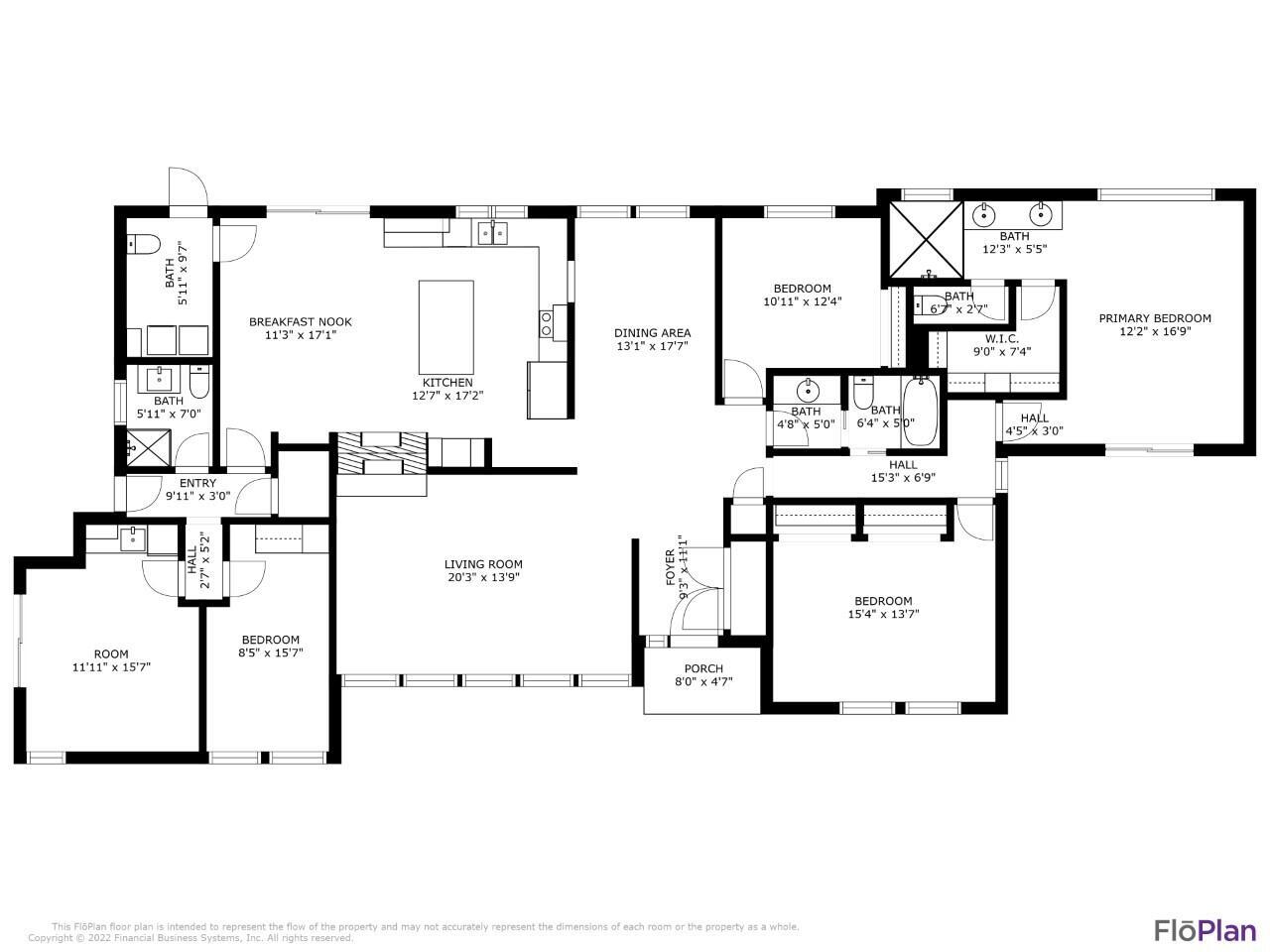
Fans of midcentury architecture will be drawn to 4539 Via Huerto ($4.699 million), designed by Carl Maston and built in 1956. The Hope Ranch house has suave lines, and it’s been maintained well. (Note the redwood paneling.) The kitchen and bathrooms have to be updated, however, and the floor plan hasn’t aged well, with the two guest rooms right off the primary bedroom (and sharing a hallway bath). The question is whether someone will buy it and preserve it or expand it to better suit how people live today. Either way, the 1.3-acre lot is pretty juicy. P.S. That’s a water feature, not a pool.
On the west side of More Mesa, 5292 Louisiana Place ($3.45 million) is a sorta-flip, the seller having bought it in late 2019 for $1.155 million. While there’s an appealing crispness, the open shelves in the kitchen imply value engineering, the backyard lawn is in grim shape, and none of the guest rooms have an en-suite bath. (The design in the pool is fun, though.) The lot abuts 5295 Shoreline Drive, a vacant lot that has been on and off the market and is presumably ripe for development.
The turnkey 1930 Spanish-style house at 3020 Puesta del Sol ($2.695 million) in San Roque will likely prove a hot commodity. The seller paid $1.925 million in June 2021.
The listing for 3217 Calle Mariposa ($3.795 million), also in San Roque, has no description and the lone photo does the property no favors, highlighting the 1977 house’s awkward shape. While inside has been done with less panache that 3020 Puesta Del Sol, the property earns its high-for-the-neighborhood price by virtue of its family-friendly size: it’s 3,100 square feet, with an ADU above the garage in the backyard (along with a covered entertaining area by the pool). Personally, I would have preferred hardscaping to the vast swaths of fake turf.
················
And a few others worth checking out:
••• 118 Coronada Circle ($2.495 million): Two-bedroom in Villa Coronada.
••• 105 Coronada Circle ($2.75 million): Three-bedroom in Villa Coronada; bigger than 118, but more dated and it abuts Eucalyptus Hill Road.
••• 2721 Verde Vista Drive ($1.395 million): Cute 1938 cottage in San Roque but it needs updating.
••• 409 Wyola Road ($2.295 million): Flip attempt of a 1929 Spanish two-bedroom in Samarkand (below); the seller paid $1.1 million in August 2021.
••• 66 Olive Mill Road ($2.599 million): Three-bedroom townhome walkable to Butterfly Beach but close to the train tracks.
Love real estate? Sign up for the Siteline email newsletter.










































Comment: