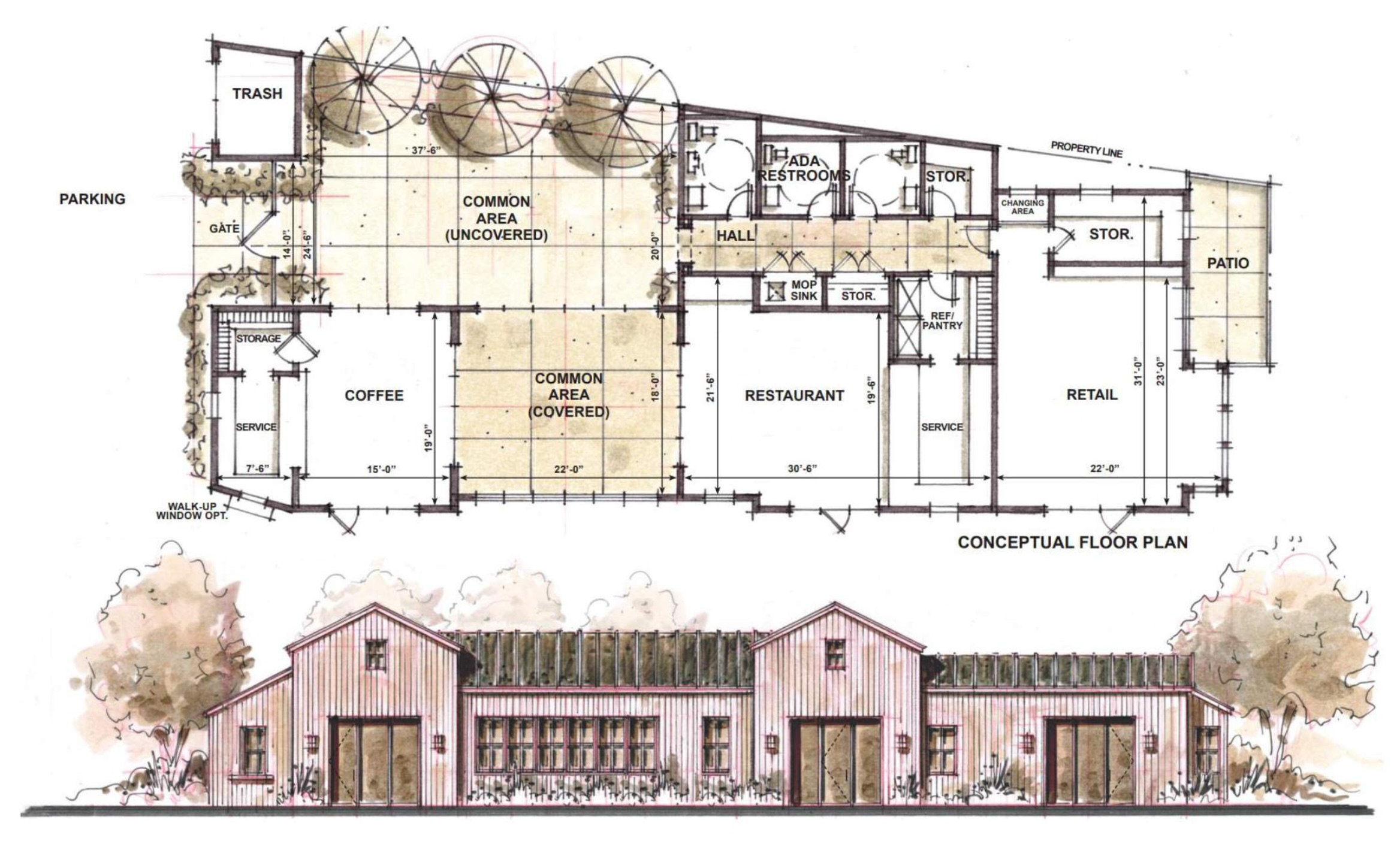
••• “What’s happening to the Bikini Factory strip in Summerland?” emailed S. “I heard The Mill folks bought it and kicked everyone out by year’s end.” Darrell and Kirsten Becker did indeed buy 2275 Ortega Hill Road a while back; in May, the county’s South Board of Architectural Review held a concept review for the “renovation of existing building shell, ADA upgrades, renovation of coffee, bar, restaurant, and retail shop, new trash area, a 734-square-foot addition to the existing structure, new patio and trellis, and landscaping.” Now, the tenants—Tinker’s, Red Kettle Coffee, Bikini Factory, and Indian Summers—are all under the impression that only Bikini Factory will be included in the next iteration of the building. And while the plans (below) show a multi-tenant complex with communal areas, not unlike the Mill, there’s room for only three businesses (café, restaurant, and retail shop), so someone’s not making the cut. But Darrell Becker says that nothing has been decided about who will be there. The project still has a lot of red tape to navigate, which will likely take years. “We need to figure out the cost, then decide when we’re going to do the work, and then we’ll decide on rents,” he says. “And then we’ll talk to the tenants. I have no interest in kicking anyone out, but it’s possible. There’s no crystal ball. The businesses that make sense should stay there, and the business that don’t make sense, shouldn’t.” P.S. For what it’s worth, the owner of Tinker’s has been telling folks that he’s planning on retiring anyway.
••• There’s a new “secret underground theater” in downtown Santa Barbara called The Black Box. On September 21-22 and October 12-13, it will host a production of Ventura playwright Kieron Barry’s Spy for Spy, “a romantic comedy with a difference; a drama performed like a playlist with the scenes shuffled into a random sequence by the audience each night.” And October 3-6 brings When the Lights Go Out, a “90-minute multimedia production integrates sultry strong dancers, incredible dynamic aerial acts, live theater and film to an underground rock and electronic soundtrack.”
••• From UCSB: “Known for its immersive sound and visual experiences, the AlloSphere Research Facility at the California NanoSystems Institute is hosting a series of public screenings of ‘Sketches of Sensorium,’ inspired by the late environmental artist and founder of the ecological art movement Newton Harrison’s long-term project, ‘Sensorium for the World Ocean.'”
••• I hear that local leaders are getting a look at what UC Investments, which manages the University of California’s investment funds, plans to do with the former QAD campus between Summerland and Montecito. (It bought the 28-acre property in mid-2002 for $104 million.) I think we’d all like to know more…. Anonymity is guaranteed: [email protected], 917-209-6473.
••• A. asked whether construction crews are allowed to fill water-tank trucks from hydrants, and the answer, according to the Montecito Water District, is yes—as long as they’ve requested permission, in which case a meter gets installed on the hydrant.
••• An update on the Route 192 closure: after announcing that it would extend from Alamar Avenue to Highway 144, Caltrans came to its senses and decided to close the road only from Orizaba Road to Parma Park.
••• Thee Sacred Souls play the Arlington Theatre on January 28.
················
Sign up for the Siteline email newsletter and you’ll never miss a post.


















I think the proposed improvements to the Tinkers building look great and is very good for Summerland and their continued growth and beautification. Hoping someone will purchase and renovate the building across the street with the dumpy liquor store.
I’ve lived and worked in Summerland for 30 years. I like the town the way it is. We don’t need to be another Montecito. I like the liquor store the way it is. The people that own are very, very nice.
Ditto!
Hey C, I first visited Summerland in 1977 when I went to the Big Yellow House with some friends that were attending Westmont. Sorry, but as dumpy as you think the liquor store is, I think it’s a gem from days gone by. And I LOVE the size, bulk and scale of the lighted “LIQUOR” sign that is visible from the 101.
Tinker is not retiring any time soon. We are a family owned business and we hope to continue serving our community providing great food and excellent service. We started on December 27, 1987 and it has been a pleasure to serve our community.