••• The Abercromie & Fitch store at Paseo Nuevo will close after this Saturday, and reopen as a Hollister store in March. (Thanks to T. for the tip.) From Wikipedia: “Hollister Co. does not bill itself as a hardcore surf line. According to Abercrombie & Fitch spokesperson Hampton Carney, ‘We’re not going after the core surfing market. It’s more about the lifestyle and inspiration, rather than the actual activity.’ Although Hollister Co. was founded in 2000, Abercrombie & Fitch has created a fictional history surrounding its founder. According to this history, John Hollister, Sr. emigrated from New York City to the Dutch East Indies, and established the company bearing his name upon returning to the United States and settling in California in 1922. In actuality, the company was founded in Ohio in 2000.”
••• The Game Stop store at La Cumbre Plaza is closing on January 24. There’s another one in Paseo Nuevo.
••• When I saw that a store called Aquatic Jewels is opening in the Montecito Village shopping centers I naturally assume it would be a jewelry store (Montecito being Montecito). But it’s actually being opened by Marc Amescua of Aquarium Artworks, and it’ll sell aquariums and fish.
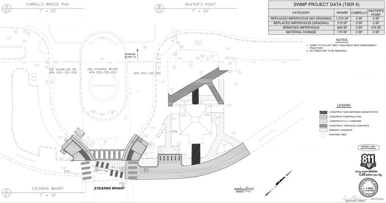
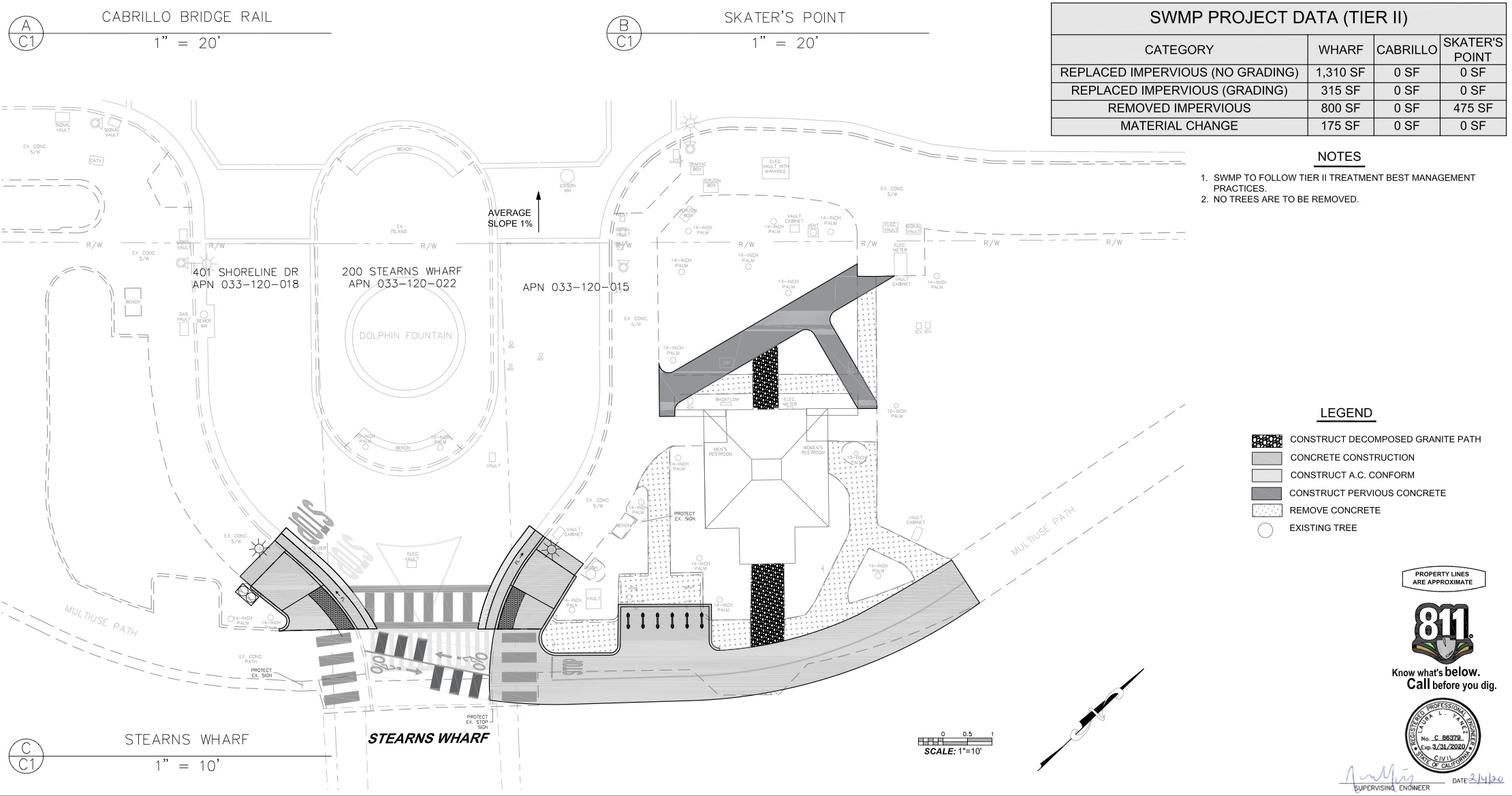
••• The city of Santa Barbara announced a plan to make the area around Stearns Wharf safer for pedestrians and bicyclists: “The Project involves pedestrian and bicyclist safety improvements from the Beachway at Skater’s Point off Cabrillo Boulevard west along the Beachway to the entrance to Stearns Wharf. The goal of the Project is to keep pedestrians and cyclists separated and to reduce conflict points by encouraging pedestrian use of the Cabrillo sidewalk and cyclist use of the Beachway. The project is anticipated to be complete in early February 2021. The project includes reconstruction of the sidewalks and Beachway around the Stearns Wharf restroom, and reorienting the Beachway toward the ocean by six feet on the northeast side of the Stearns Wharf crosswalk. A second, pedestrian-only crosswalk will be installed northwest of the existing shared crosswalk, and green bicycle stenciling will be painted on the Beachway. A pervious sidewalk will be constructed at an angle connecting the Stearns Wharf sidewalk to Cabrillo Boulevard’s sidewalk so that pedestrians do not damage the Chase Palm Park grass, and the pervious concrete will have a perpendicular path connecting to the restroom in the area. The project also involves new signage, the addition of bicycle racks for beachgoers, and landscape improvements, including removal of two concrete connections between the skate park’s perimeter sidewalk and the Beachway that will be replaced with turf. The sidewalk and Beachway will be separated by a wrought iron rail, matching the existing rail, further defining the separation of the paths.” There are more plans here.
••• The bridge between the San Ysidro Trailhead and San Ysidro Ranch—connecting San Ysidro Lane and E. Mountain Drive—is just about done, noted the Montecito Trails Foundation in an Instagram story. Here’s a photo from Lael Wageneck of the county Public Works Department, which says that “approach roads are expected to be built in the upcoming weeks, and the bridge is scheduled to open this February.”
Sign up for the Siteline email newsletter and you’ll never miss a post.



















Comment: