••• “Is Knapp’s Castle finished?” asked R., so I went and looked—taking the hard way, up Snyder Trail from Paradise Road. (A fantastic hike, but do it early in the day or once cooler weather arrives.) As you can see above, the house certainly looks done, and quite handsome, to boot. Although it used to be a ruin that the public could explore, that’s no longer the case. P.S. I later mailed the owner a note all but begging for an invitation. If anyone out there knows him, please put in a good word for me….
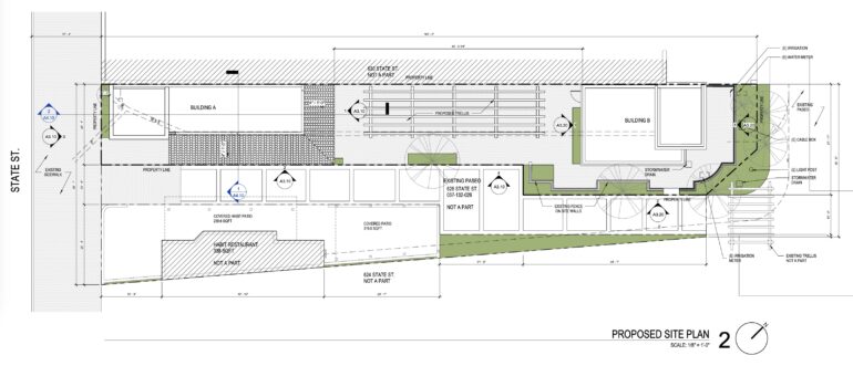
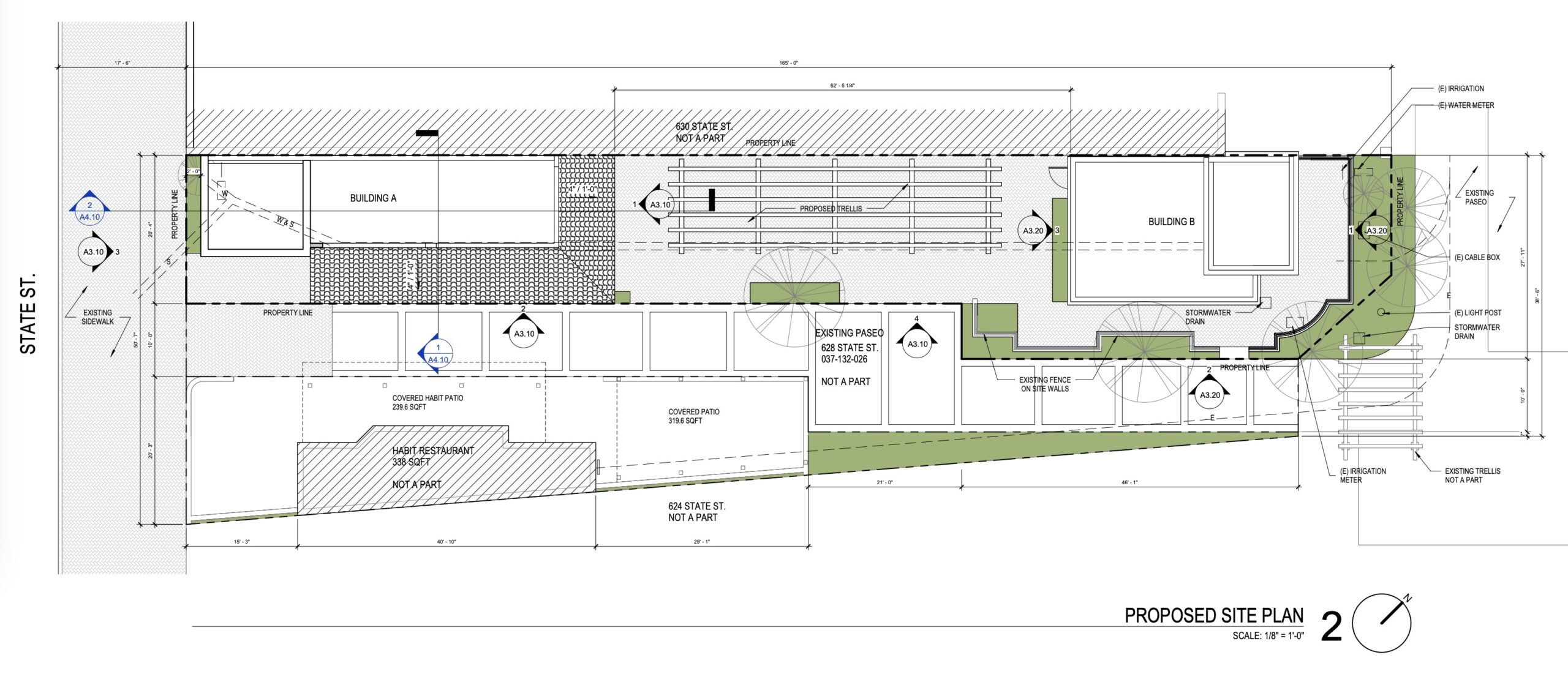
••• Today’s Historic Landmarks Commission agenda includes the first glimpse of the plan for 628 State Street (Cota/Ortega): “Proposal to construct one 520-square foot-building, one 480-square-foot building, a trellis, and an outdoor dining area. Project includes the demolition of existing trellises, site walls, fencing, palm trees, and landscaping.” The State Street building will be a restaurant—the plans call it Del Sol Restaurant, but that may be a placeholder—and the other building is an office and restrooms. The paseo to the south (with Habit Burger across the way) will remain.

••• Rickie Lee Jones plays the Lobero Theatre on February 1. I can’t hear her voice without thinking of the Orb’s “Little Fluffy Clouds,” which Jones was not a fan of, but it has given me much joy over the years.
••• From the city: “The Street Tree Advisory Committee, a City advisory group composed of appointed community members with horticultural and arboricultural experience, recommended changing the current street tree designation for the 300 to 800 blocks of E. Anapamu Street from the Italian stone pine to the California native coast live oak. A block’s street tree designation determines what trees will be planted and maintained alongside that particular portion of street. This proposal follows many years of tree decline and failures along the street as well as a comprehensive safety assessment completed earlier this year. No existing trees will be affected by this process. The Parks and Recreation Commission is scheduled to consider this recommendation on Wednesday, October 23.” This is a shame. Part of what I love about Santa Barbara is the breadth of plant life—especially how certain streets are devoted to certain trees. “Members of the public are welcome to submit comments to the Parks and Recreation Commission in person, in writing, or by email at [email protected]. Written comments should be received by 12 p.m. on October 22.”
••• The Baske California has left 1268 Coast Village Road, and Belrose Estate Jewelers (formerly Bella Rosa Galleries) is moving there from State Street.
••• A sign at Noorsher Furniture & Rugs (1014 State Street, between Carrillo and Figueroa) says the store will be closing.
••• The Ojai Studio Artists tour is October 12-14, and if you’ve never been, I recommend it. You get to see parts of Ojai that you wouldn’t normally be able to—as well as chat with artists and admire their work. The tour is self-guided, and tickets cost $20, with the money going to a good cause. And it’s a great excuse to have lunch at one of Ojai’s many worthwhile restaurants—Rori’s Other Place, Pinyon, Ojai Rotie, Hip Vegan, the Dutchess, Sama Sama at Topa Topa, the Ojai Valley Inn, the Summit Drive-In….
••• Two for dance fans: the California Star Ball National Ballroom Competition is being held at the Hilton Santa Barbara from November 29 through December 1, and “Dancing With the Stars: Live!” waltzes into the Arlington Theatre on April 3.
••• It’s time for my annual plea that you not use fake spider webbing, particularly on shrubs, because birds and insects can get caught in it.
Sign up for the Siteline email newsletter and you’ll never miss a post.



















I completely agree with you regarding the trees on Anapamu and elsewhere in town. A diversity of plant life has always been a hallmark of Santa Barbara in my mind. There has been an unfortunate conflation in the minds of many that non-native = invasive or dangerous, and we’re trending toward near monoculture with the fixation on planting only California live oaks or sycamores. It’s become a moral crusade for many, with constant virtue signaling about “non-native” plants as if every non-native is a threat. I understand many of our old growth trees are unfortunately afflicted by disease, or may just be reaching the end of their life cycle, but preserving some of our distinctive botanical identity and flair seems as essential to me as preserving our historic architecture when it comes to protecting the character of Santa Barbara.
Well said, completely agree!
Bravo! Could not agree more.
Monoculture can be a real mistake. St.Paul Minnesota used to be called “The city of elms”, then Dutch elm disease hit and the whole urban forest died in a few years.
Thanks for making your plea re: that tacky-looking webbing material that appears each October. Who knows what it is made of (probably not degradable.) m
Most users just blanket it on their yard or house with the misguided thought that it looks like actual spider webs. I say, “Stick to pumpkins.”
The Doremus Italian Stone Pines of Anapamu Street, from the 300 to 800 blocks, comprise a designated City Historic Landmark, established by City Council in 1997. It is curious that an advisory committee can override the actions of elected officials, and that the Historic Landmark Commission has been so left out of this process of, in effect, de-landmarking a beloved iconic feature of the community. But these days, Parks and Rec (some call it Wreck) has a lot of power that seems to supersede the interests of historical preservation. One would think they would prioritize and take extra special care of retaining the health, safety, and conditions of those important trees. But that has not been the case for more than a decade.
Thank you for continuing to mention the fake spider webbing being a hazard to birds! It’s so sad. And I love your newsletters!
In the 80s and 90s we had wonderful parties at Knapp Castle. It should also be noted that Lotte Lehmann owned the property and it was under her ownership that it burned. Somehow I always wanted it to stay as a ruin for people to enjoy. We have so few these days.