••• The Head and the Heart and Dawes play the Santa Barbara Bowl on August 18.
••• And Disclosure’s rescheduled show at the Bowl, with DJ Boring as the opener, is April 20.
••• Speaking of the Bowl…. In advance of yesterday’s meeting, the city’s Architectural Board of Review released more info about the proposed solar array above the Santa Barbara Bowl: “Proposal for ground mounted solar panel installation behind the Santa Barbara Bowl. Project proposes to install 201 solar panels and 4 solar inverters.”
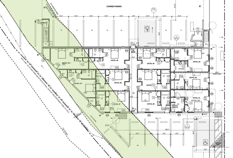
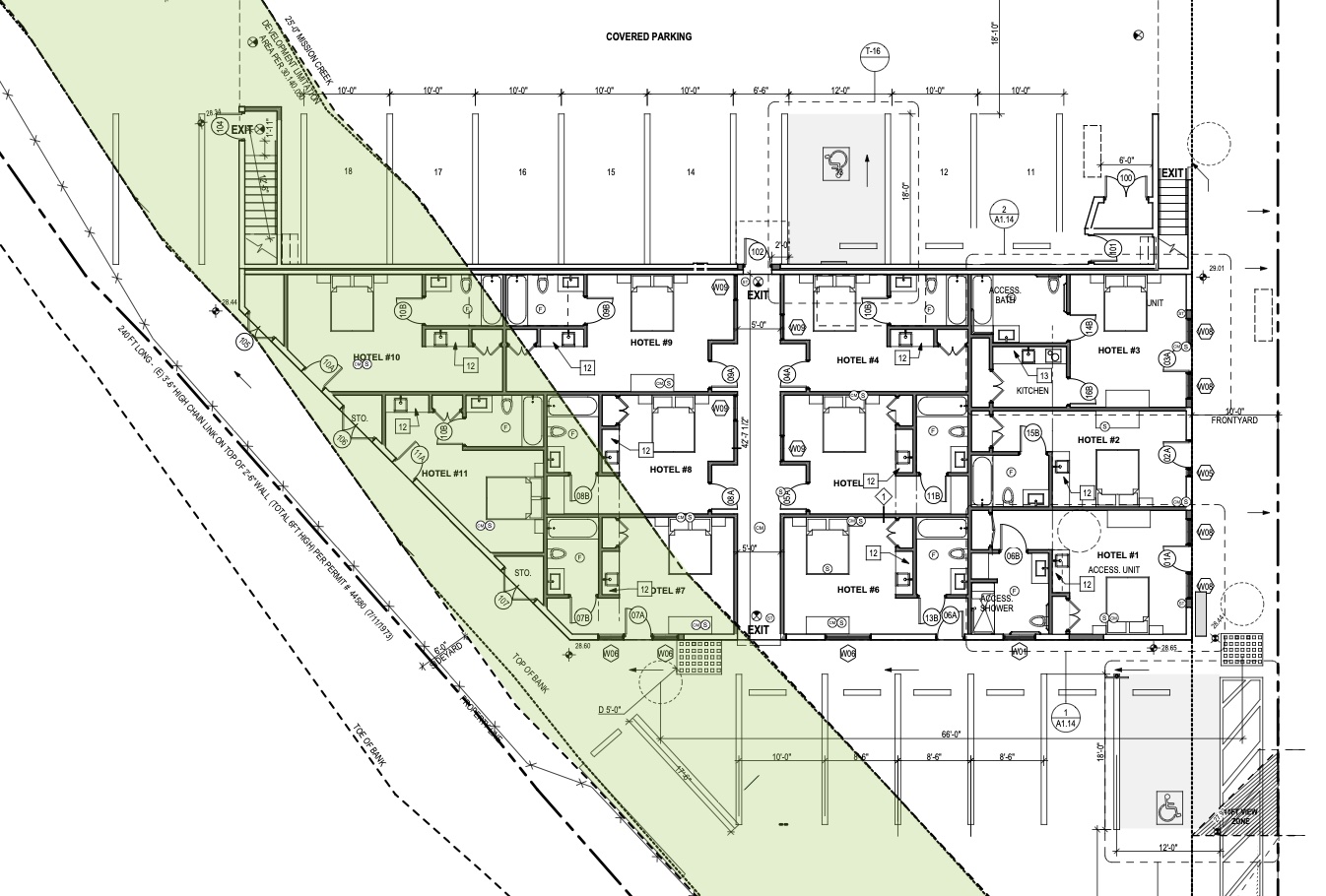
••• And on the ABR’s consent agenda: a new hotel at 513 and 517 De La Vina (Cota/Haley). “Proposal to convert an existing 8,065 square foot commercial building to 15 hotel units including 11 hotel units with kitchenettes and 4 with full kitchens. The project includes exterior alterations with door and window replacements and balcony additions.” Too bad the exterior isn’t changing more.
••• Meanwhile, the Drift hotel under construction at 524 State Street, as seen from the Anacapa/Haley parking lot, is coming together. The website says it’ll open in the spring….
••• Some highlights from the most recent Highway 101 construction update:
—Northbound on-ramp at Sheffield Drive, closed January 11 for up to six months, anticipated reopening July 13.
—Southbound on-ramp at Sheffield Drive, anticipated reopening June 12.
—Southbound off-ramp at Evans Ave, closing January 23 for up to nine months, anticipated reopening October 24.
••• Press release: “The Santa Barbara Zoo is pleased to share that the Masai giraffe Adia gave birth to a male calf named Raymie at 1:55 a.m. on January 19, and the two are now bonding behind the scenes in the giraffe barn. […] At his first medical exam on Thursday, January 20, he weighed 71.4 kg and measured approximately 5 feet 9 inches tall.” There’s lots of cuteness on Instagram.
Sign up for the Siteline email newsletter and you’ll never miss a post.




















Comment: