Noteworthy new listings….
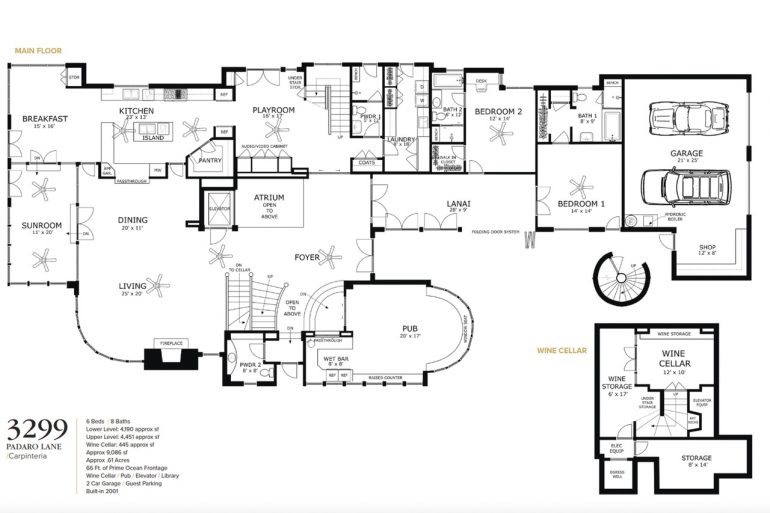
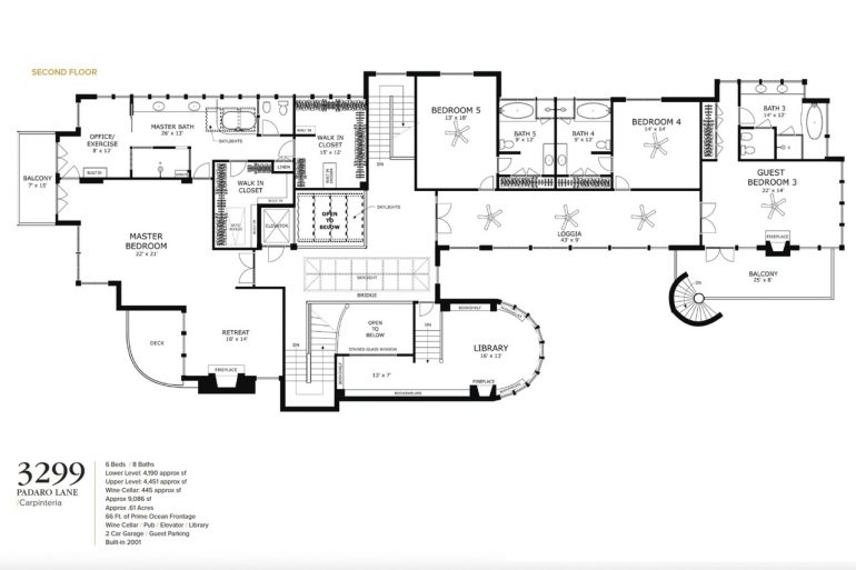
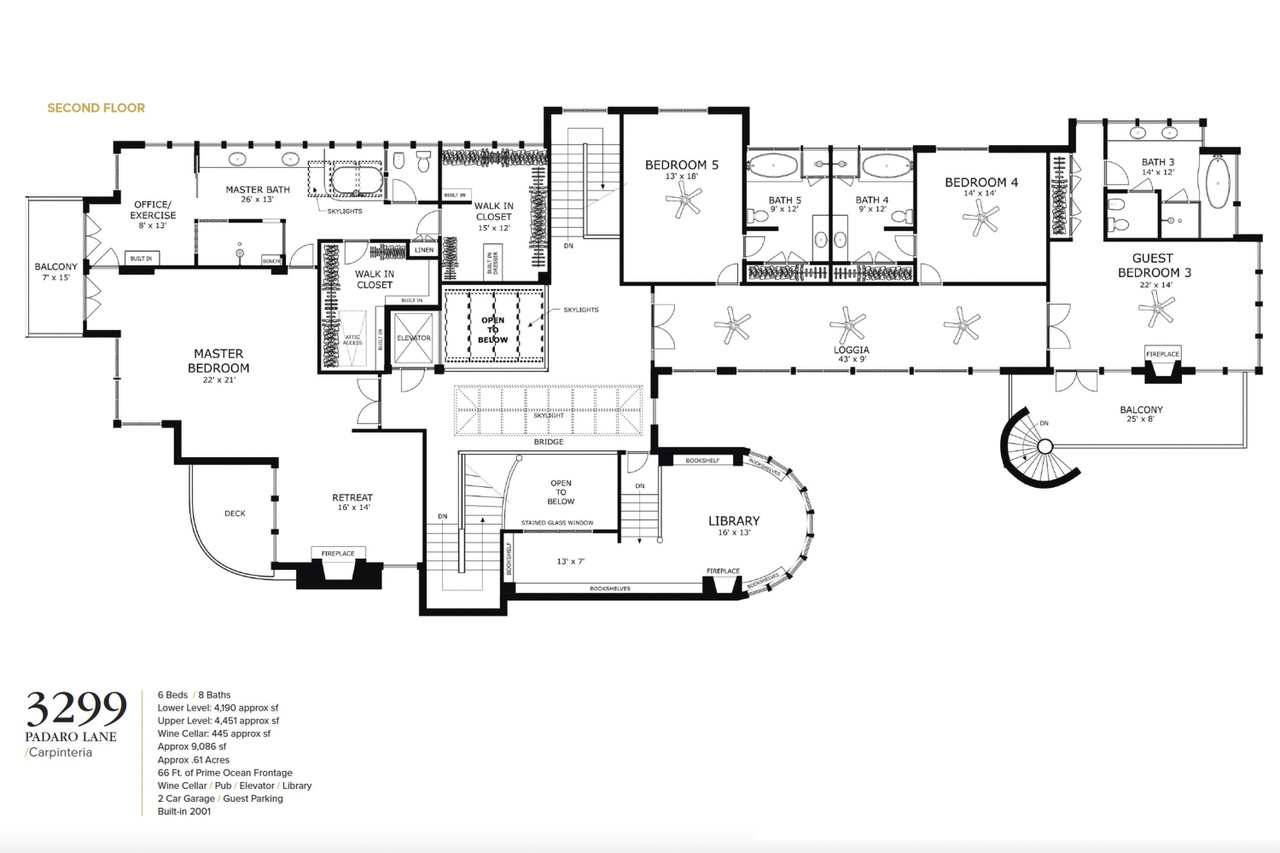
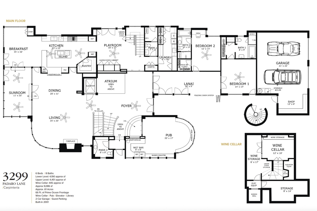
This week’s headliner is 3299 Padaro Lane ($36.5 million), “the longtime home of the late California home builder Paul Griffin Jr., who died last year, and his wife, Gloria Griffin,” according to the Wall Street Journal. “The Griffins, who lived primarily in Los Angeles, bought the property in the 1980s for about $1 million and built the house in the early 2000s.” The location—up above the beach—is ideal (check out the oceanfront hot tub!), and the fact that a builder built it for himself pretty much guarantees quality. That said, the architecture hasn’t aged super gracefully and surfaces throughout the 9,086-square-foot house want updating. Of special note to sports fans: “The pub/game room features […] the Pauley Pavilion gymnasium floor on which the UCLA Bruins were coached to 10 NCAA championships under coach John Wooden—a gift from UCLA to the current owners.” See it for yourself: the property will be open today (Saturday) 11 a.m. to 2 p.m.
Something similar is going on at 368 Lambert Road ($18 million), west of Toro Canyon: the architecture is not the best of the 1990s, and the interiors could use a refresh throughout. But the land—nearly 10 acres—is prime, with a sexy pool, a three-bedroom guest house, and “numerous horse stalls, pastures, barns, and separate living quarters for on-site workers.” And I’m already on the record as loving the curvy allée leading to the motor court.
Speaking of 1990s architecture, 11 Hunt Drive ($13.75 million), on Ortega Ridge, has all sorts of wacky angles—if you squint, the exterior almost looks like a smaller, less shiny version of Frank Gehry’s Guggenheim Bilbao. (Or maybe I just woke up on the right side of the bed.) I haven’t seen the house in person, but I’d wager that the best move would be to gut it and start over in a more North African, Studio KO–esque direction. As with 368 Lambert, the grounds—five acres, with a sweet pool and equestrian facilities—are likely to be the main draw.
The photos of 1181 Glenview Road ($7.25 million) don’t give much of an impression of the place, other than a skylight that looks like it belongs at 11 Hunt Drive. An acre and a half on Pepper Hill is sure to be appealing, but will the house survive?
The faux-European stylings of 1333 Santa Teresita Drive ($4.995 million) feel mismatched with the Upper San Roque location, but the 2003 house feels solid, like real care went into it. There’s not much usable land in the 1.76 acres; instead, you get excellent western views and a terrific covered terrace that’s ripe for entertaining.
2258 Stanwood Drive ($3.549 million) is another one that needs to be redone. There’s plenty to work with, though: the house is tucked away off the road, and the back terrace looks out over a small ravine. While people with kids might prefer the pool to be off the living room rather than the primary bedroom, the door from the bathroom makes a quick skinny dip in the hot tub much easier.
There’s a low-key, old Montecito charm to 1071 E. Mountain Drive ($3.85 million), where the two-bedroom main house could use updating, but the one-bedroom guest house appears to be in decent shape. Not that it matters, because I think this will be seen as an opportunity to build new on a 1.3-acre lot.
Likewise, despite the rustic quaintness of the 1900 house, 565 El Bosque Road ($3.195 million) is unlikely to be viewed as a fixer.
Period details have been removed from the inside of 1417 Bath Street ($3.545 million) over the years, but the exterior is charming. Besides the six-bedroom house, there are “three attached 3BD/2BA townhouse-style units nestled on the rear of the site.”
And a few others worth checking out:
••• 1837.5 El Camino De La Luz: ($1.875 million): .55-acre oceanfront lot on the West Mesa that may prove hard to build on (above).
••• 0 Romero Canyon Road ($6 million): 3.58-acre vacant lot in east Montecito.
••• 860 Ladera Lane ($4.375 million): Little outdoor space and the property overlooks Hidden Valley Lane; on the plus side, the upstairs rooms are spacious.
••• 303 Palisades Drive ($2 million): West Mesa teardown with a pile of junk in the yard.
••• 508 Brinkerhoff Avenue ($1.495 million): Duplex with two-bedroom house and one-bedroom cottage.
••• 1633 La Coronilla Drive ($2.6 million): Alta Mesa house that feels like a spec reno; the seller paid $1.12 million in January 2020. You could land as helicopter in the front yard (below).
Love real estate? Sign up for the Siteline email newsletter.




























































































Comment: