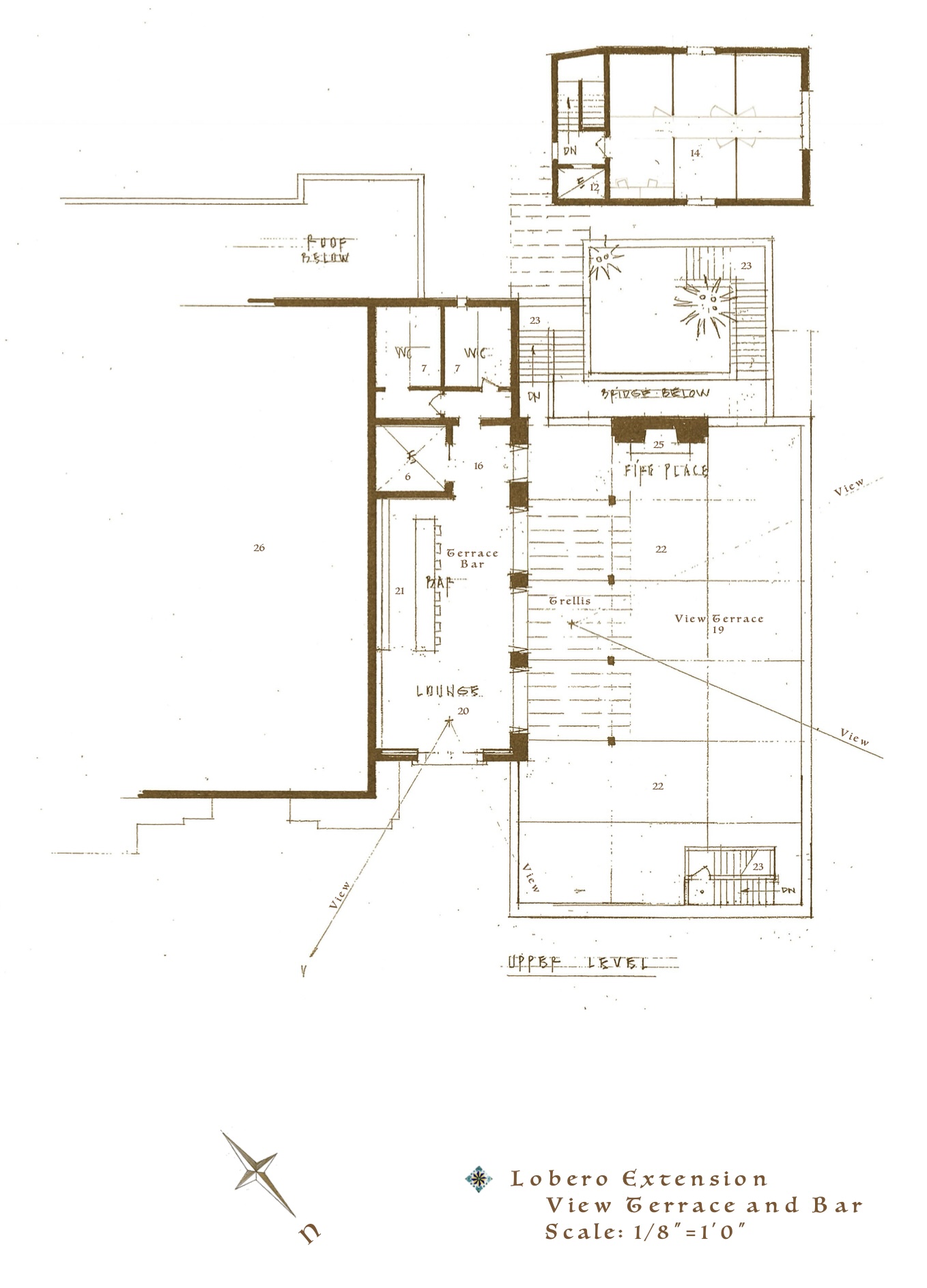
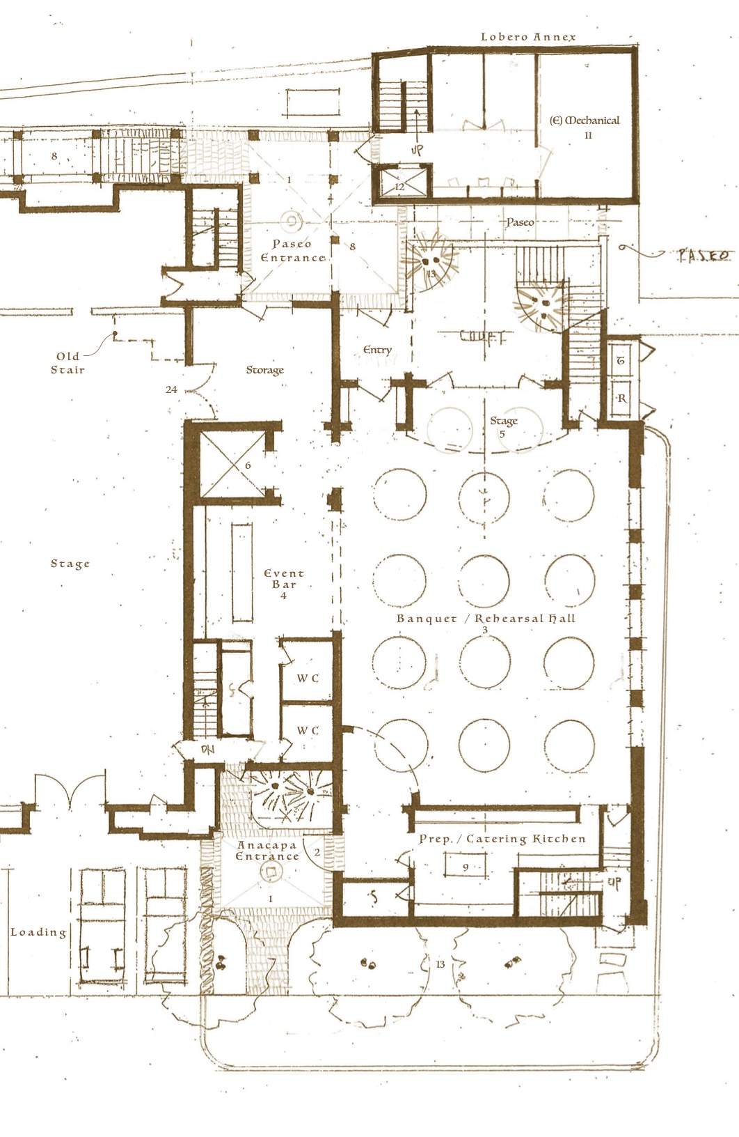
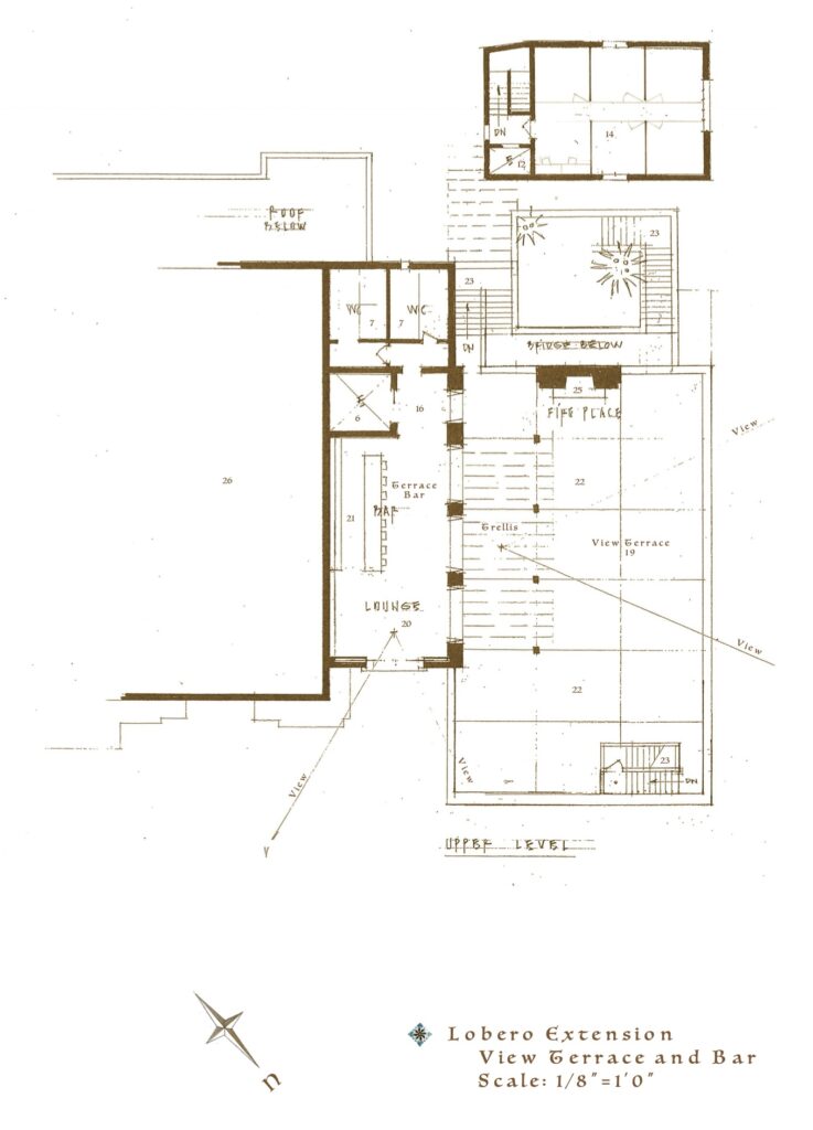
••• The Lobero Theatre, a state and city landmark, is proposing “approximately 10,000 square feet of addition to the theater, 900 square feet of addition to the Scene shop, and a new courtyard off the Lobero Paseo,” to the Historic Landmarks Commission‘s agenda. The plans describe an “event bar,” “banquet/rehearsal hall,” and catering kitchen on the ground floor, and a “terrace bar” and “view terrace” above. Below: the building as it looks now from Anacapa Street; what it would look like from Anacapa and the north; and the ground-floor and upper-level floor plans.

••• The bookstore-and-more coming to the former Garde space in Summerland has a name: Godmothers. As many folks saw during a sneak peek at yesterday’s Summerland Block Party, it looks amazing. The opening is in early September.* Plus: there’s hope it’ll one day have a café component. *UPDATE 7/30: While the grand opening is in early September, the store was open today, so I think we can assume it’s soft-open in the interim.
••• The new roundabout at Los Patos Way, Cabrillo Boulevard, and Channel Drive is essentially open, albeit with stop signs at each entrance. One possibly unforeseen effect: cars exiting the freeway at Los Patos to try and beat the traffic have the right-of-way in the roundabout, and they jam it up, which can leave people heading north on Cabrillo stuck waiting forever. (The Los Patos exit will be closed for good one day.) Related: this summer’s traffic in Montecito has been far worse than I ever remember.
••• Midcentury design specialist The Salmon Trader is coming to the former Mi Salon space in Victoria Court. UPDATE 8/5: Mi Salon is still there; The Salmon Trader would be in the small space behind the salon, a storage room that currently has a Mi Salon sign.
••• Now open at 4175 State Street (next to Good Land Wine Shop): Sew Santa Barbara, a sewing shop that sells Bernina machines and offers “classes and get-togethers for up cycling, knitting, embroidery… anything within the intersection of textiles and art.”
••• Add the Pistachio House on lower State Street to the list of Jeff Shelton properties you can rent by the night (via Edible Santa Barbara).
Sign up for the Siteline email newsletter and you’ll never miss a post.






















Great news about the Lobero. It’s a fantastic venue but really needs updating. I’ve always felt that the giant exterior wall(s) could use a colorful mural to brighten up its dull facade. I doubt that the “everything is historical!” crowd that controls SB would allow such a thing though. The old folks here seem to prefer to stare at the same thing year after year, decade after decade. To these people, nostalgia = historically significant.
It’s calling for an oversized banner that can be switched up from time to time. I agree with your viewpoint. Progress is good. Things should pay homage but doesn’t mean things can’ t evolve and adapt.