Noteworthy new listings….
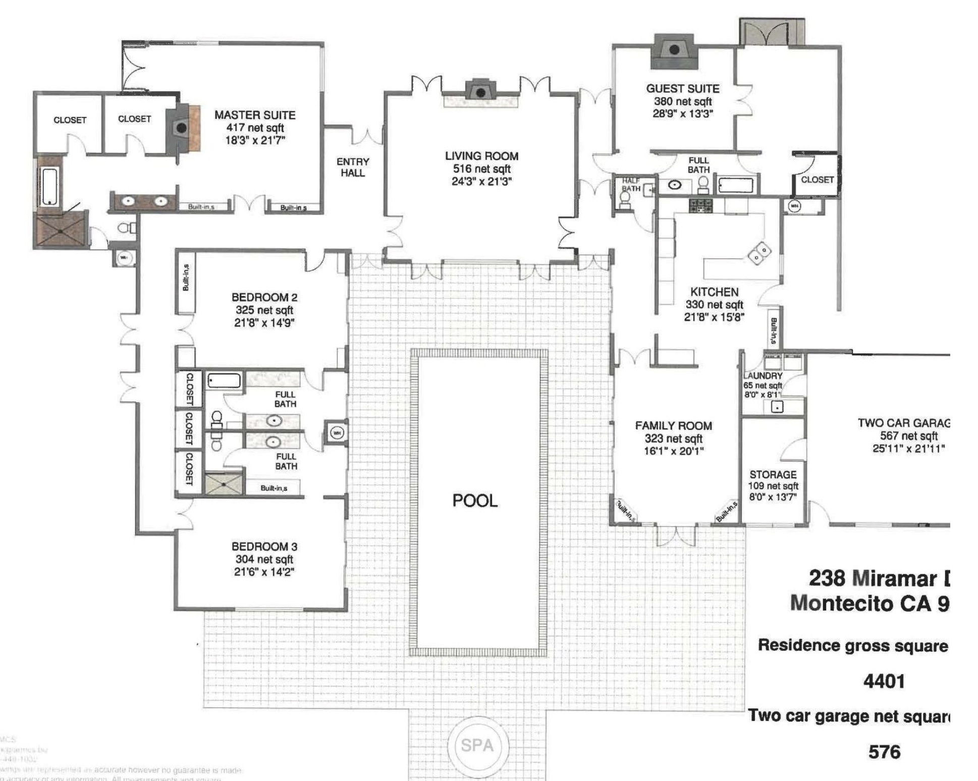
At the end of a pretty, private cul-de-sac in the Hedgerow, 238 Miramar Avenue ($14.895 million) is a 1964 Jack Warner house that looks like it was airlifted in from the Coachella Valley. It’s U-shaped, with nearly every room facing the pool that takes up most of the courtyard. When the house last sold—for $2.9 million at the start of 2020—it was a project and a half. The floor plan at the time wanted ironing out (unless your guests are into adjoining bathrooms), and the heat was radiant, but from the ceilings. The house was not open this week, so I haven’t seen this iteration, but whoever bought it clearly did a lot of work gussying it up, and the architecture photographs quite well. For all of its quirky interior choices—the parquet floors, the pistachio kitchen, the mini split A/C units embedded in the ceilings—the most interesting thing about the property might be its price. Will someone pay nearly $15 million for .72 acre with no guest house? The assumption must be that the combination of midcentury and Hedgerow earns quite a premium. P.S. What’s up with the two four-tops in the kitchen?
Much of 680 Cowles Road ($8.495 million), built in 1991, has been renovated since it sold in early 2021 for $3.24 million, but there’s still work to be done here and there (kitchen, some bathrooms), and there are still classic 90s touches (the zig-zag wall in the main stairwell, for instance). And of the four guest rooms, the lone en-suite one is only accessible from the garage or outside. But the house has a sweet setting, with ocean views in one direction and mountain views in every other direction, and a luscious pool.
275 Toro Canyon Road ($7.995 million), built in 1992, also has 1990s moments—the double-height living room, the upstairs hallway open to below, the massive primary bedroom…. But it’s a lot of house (6,294 square feet), and more important, it’s a lot of lot (4.5 acres), with a pool, guest house, and a great swath of open space. That open space is no longer green and it comes with restrictions due to historical use by the Chumash. Apparently you can utilize it for, say, horses, but you can’t dig without a lot of red tape. Still, looking out at nothing but space—and the ocean in the distance—has a strong appeal. P.S. It’s in escrow.
The seller of 1164 Camino Del Rio ($4.995 million) paid $2.97 million in July 2021 and gave the 1993 architecture a contemporary makeover inside. The emphasis is on the common rooms; the 4,426-square-foot house has just three bedrooms and two and a half baths. I hope the split-ductless air conditioners can keep up with the light coming through all the south-facing windows. P.S. Glad to see the diving board survived!
We haven’t seen an auction in a while: 5325 Plunkett Lane, a 4,300-square-foot three-bedroom off N. Patterson Avenue, goes under the hammer starting September 7, with bids starting at $3,5 million, unless a preemptive offer is accepted.
Built in 1890, 1534 Garden Street ($2.995 million) has been configured into a triplex, with a three-bedroom residence and two one-bedroom apartments. The Craftsman style is timeless, but you enter the house via the dining room (which is bigger than the living room), and the outdoor space is all in the front yard.
And a few others worth checking out:
••• 1062 Via Los Padres ($4.1 million): Terrific Park Highlands views and 1.2 acres, but neither of the two guest rooms is en suite and the interiors want updating. (P.S. Two microwaves?!)
••• 1049 Via Los Padres ($1.295 million): .59-acre vacant lot practically across the street.
••• 1540 San Antonio Creek Road ($3.75 million): Five-bedroom house on 1.5 acres with a shared driveway.
••• 930 W. Mountain Drive ($2.495 million): 5.13-acre vacant lot with two building envelopes in Cielito.
••• 5630 W. Camino Cielo ($1.695 million): 1985 three-bedroom on six acres; big views.
••• 1011 Camino del Retiro ($2.896 million): 1992 three-bedroom in need of updating; the valances in the bedroom have got me thinking about bloomers.
Love real estate? Sign up for the Siteline email newsletter.




























































I always wonder about these extremely overpriced houses. Is this a tactic by some agent to get attention? There is no sq footage in the listing(another tactic?), but the records show it’s somewhere in the 4400 range. Which is approx. $3400 per ft for less than an acre, with no ocean or mountain views and a fairly small lot. It’s so extremely overpriced that it’s almost a joke. Maybe there is a person who will pay 2x the market value, but they’ll have to be color blind for that kitchen is in the running for the ugliest remodel I’ve ever seen.
It would be a cool article to run though all the extremely overpriced houses in the area that sit on the market for years – like that modern one up on Spyglass, or the burnt out Neumann shell… Is it the agent? The owner? Its def not the market…
What house sold in the last 3 years isn’t overpriced? I’m not an expert however I think there is a premium for turn key properties in the Hedgerow.
We looked at Camino del Rio in 2021 and nicknamed it “The Municipal Airport.” Glad to see a remodel has brought it out of the 90s.